Historischer Charme im Ortskern von Apen!
Das im Jahre 1910 errichtete Bauernhaus mit Vorderhaus (Wohnbereich) und Wirtschaftsteil (Stallungen) wurde nach mehreren baulichen Veränderungen im Jahr 2013 in seiner heutigen Form umgestaltet.
Die Wohnung wurde grundlegend modernisiert und ist modern ausgestattet.
Die ehemaligen Stallungen wurden zu einem Ladenlokal mit modernen sanitären Anlagen umgebaut
Mit diesen Baumaßnahmen wurde das Gebäude in weiten Teilen renoviert und modernisiert, u.a.:
- Erneuerung der Fußböden
- Maler- und Tapezierarbeiten
- Installation neuer Bäder
- Austausch aller Fenster und Türen
- Erneuerung der Heizungsanlage
- teilweise Neueindeckung des Daches
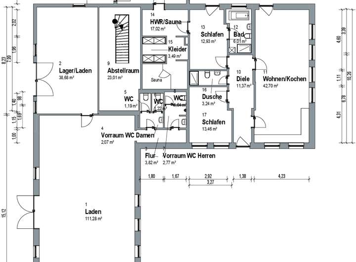
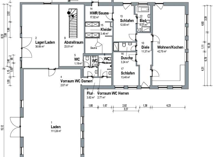
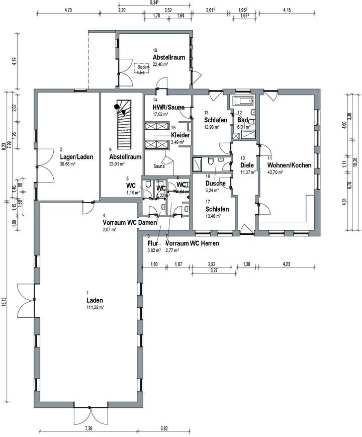
Gliederung der Räumlichkeiten:
1) Gewerbe
großzügige Ladenfläche, Lager, Vorraum sowie zwei Damen und ein Herren WC.
Die Nutzfläche beträgt 162,67 m².
2) Wohnung
Eingangsdiele, Küche mit Essbereich, Wohnzimmer, Schlafzimmer mit Bad en Suite, weiteres Schlafzimmer, Duschbad, Hauswirtschaftsraum, Ankleide und Sauna.
Die Wohnfläche beträgt ca. 110,23 m².
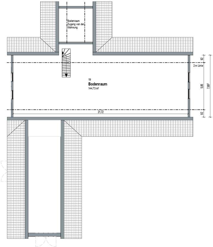
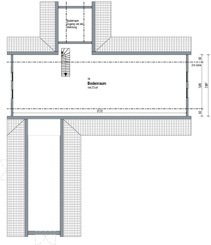
Die gesamte Nutzfläche mit weiteren Abstellräumen sowie zwei Bodenräumen beträgt ca. 352,82 m².
Auf dem Grundstück stehen insgesamt sieben Pkw-Stellplätze zur Verfügung.
Zur der Wahrung der Privatsphäre der Mieter haben wir auf weitere Innenaufnahmen verzichtet. Die Abbildungen zeigen die Wohnung vor der Vermietung.
Die Gewerbeeinheit ist auf unbestimmte Zeit vermietet.
Die Wohnung ist ab dem 01.08.2025 miet- und bezugsfrei!
Die Übergabe erfolgt nach Vereinbarung.
Ehemaliges Bauernhaus mit sanierter Wohnung und Ladenlokal (in der Diele) in Ortskernlage von Apen!
26689 Apen
Die vollständige Adresse der Immobilie erhalten Sie vom Anbieter.
Auf Karte anzeigen
Die vollständige Adresse der Immobilie erhalten Sie vom Anbieter.
Finanzierungszertifikat
In nur zwei Minuten zu Ihrem persönlichen Finanzierungszertifkat.
Infos
| Wohnfläche ca. | 110 m2 |
|---|---|
| Nutzfläche | 352,82 m2 |
| Grundstücksfläche | 1.456 m2 |
| Bezugsfrei ab | nach Vereinbarung |
| Zimmer | 3 |
| Schlafzimmer | 2 |
| Badezimmer | 2 |
| Garage/Stellplatz | Außenstellplatz |
| Anzahl Garage/Stellplatz | 7 |
Kosten
| Kaufpreis |
369.000 € |
|---|---|
| Provision |
Die Käuferprovision beträgt 3,57 % inkl. 19 % MwSt. vom beurkundeten Kaufpreis. |
Finanzierungsrechner:
Kaufpreis:
600.000 €
Eigenkapital:
600.000 €
Monatliche Rate
0 €
Effektiver Jahreszins
0 %
Sollzinsbindung
10 Jahre
Bausubstanz & Energieausweis
| Baujahr | 1870 |
|---|---|
| Letzte Sanierung | 2013 |
| Objektzustand | Gepflegt |
| Heizungsart | Zentralheizung |
| Wesentliche Energieträger | Gas |
| Energieausweis | liegt vor |
| Energieausweistyp | Bedarfsausweis |
| Energieverbrauchskennwert | 102,9 kWh/(m²*a) |
| Energieeffizienzklasse | D |
102,9
kWh/(m²*a)
Energieeffizienzklasse D
- A+
- A
- B
- C
- D
- E
- F
- G
- H
- 0
- 25
- 50
- 75
- 100
- 125
- 150
- 175
- 200
- 225
- >250
Beschreibung des Objekts
Lage
Sämtliche Versorgungseinrichtungen für den täglichen Bedarf sind wie auch die medizinische Grundversorgung (Allgemeinmediziner, Zahnärzte, Apotheke), Kindergarten und Grundschule am Ort.
Weitere Versorgungseinrichtungen befinden sich neben der Haupt- und Realschule im Nachbarort Augustfehn (ca. 3 km) oder in der Kreisstadt Westerstede (ca. 10 km). In Westerstede befinden sich u.a. die Ammerland-Klinik, Fachärzte, sämtliche Kreisbehörden und das Gymnasium als weiterführende Schule.
Apen verfügt über gute Verkehrsanbindungen an die BAB 28. Die Anschlussstelle Nr. 4 ist nur ca. 5 km entfernt.
Der Bahnhof Augustfehn liegt an der Bahnstrecke Oldenburg - Leer und ist nur ca. 3 km entfernt. Von hier fahren Züge im stündlichen Wechsel in beide Richtungen. Der bekannte Kurort Bad Zwischenahn ist in ca. 15 Autominuten zu erreichen, die Oberzentren Oldenburg und Bremen sind in ca. ½ bzw. 1 Auto- bzw. Bahnstunde.
Sonstige Angaben
Zu diesem Objekt liegt ein ausführliches Exposé mit weiteren Detailinformationen vor, das Sie gerne bei uns anfordern können.
Telefonische Erreichbarkeit:
Montag - Freitag: 8.00 Uhr - 12.30 Uhr und 14.00 Uhr bis 17.30 Uhr
Samstag: 9.00 Uhr -12.00 Uhr
Sie möchten Ihre Immobilie verkaufen.....
..... und suchen den passenden Käufer?
Unabhängig davon, ob Sie aktuell oder erst in unbestimmter Zeit Ihre Immobilie verkaufen möchten, ist eine fundierte Beratung bares Geld wert. Wir wissen, worauf es beim professionellen Verkauf Ihrer Immobilie ankommt.
Über 60 Jahre Marktpräsenz und tausende Vermittlungen sprechen für sich.
Für ein kostenfreies und informatives Beratungsgespräch stehen wir Ihnen jederzeit gerne zur Verfügung.
Grundriss
Grundriss Erdgeschoss
>
>
Grundiss Dachgeschoss
>
>
Adresse
26689 Apen
Interessante Orte
Preis- und Lageinformationen
Preistrend für Bestandsimmobilien in Apen