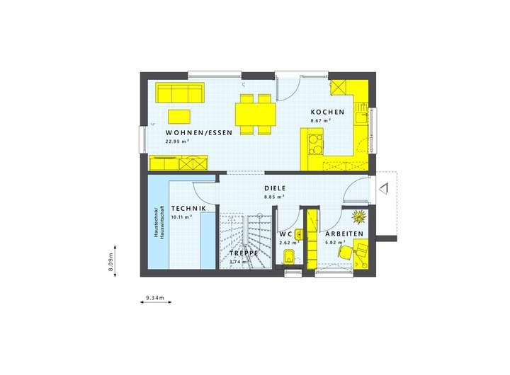
Das Living Haus Sunshine 144 V2 in Wassenberg wird nach deinen individuellen Vorstellungen und Wünschen gestaltet und bietet dir das ultimative Eigenheim-Feeling. Mit einer Wohnfläche von 144m² auf zwei Etagen und einer Grundstücksgröße von 361 m² erwartet dich ein harmonisches Raumkonzept mit vier Zimmern, darunter drei Schlafzimmer und ein geräumiges Badezimmer. Die Architektur besticht durch moderne Erker, die sowohl von außen als auch von innen Stil und zusätzlichen Platz schaffen. Bodentiefe Fenster sorgen für eine lichtdurchflutete Atmosphäre, während das klassische Satteldach mit einer Neigung von 38 Grad den traditionellen Charme unterstreicht.
Living Haus bietet zahlreiche zusätzliche Leistungen, um dein Bauvorhaben perfekt abzurunden. Deine Traumküche wird individuell auf deinen Grundriss abgestimmt und kommt mit modernster Technik sowie cleveren Stauraumlösungen direkt zum Einzug. Das Living Haus Bau-Cockpit ermöglicht es dir, jederzeit den Überblick über dein Bauprojekt zu behalten - digital und stressfrei. Dank I-KON - Intelligentes Bauen wird dein Zuhause nicht nur energieeffizienter, sondern auch umweltfreundlicher gestaltet. Dein Effizienzhaus 55 benötigt nur 55 % der Energie eines Standardhauses.
Mit dem exklusiven Zuhause-Darlehen kannst du bis zu 250.000 Euro zu besonders günstigen Konditionen finanzieren und von staatlichen Förderprogrammen profitieren. Das Zuhause-Paket sorgt für eine hochwertige Grundausstattung deines Hauses mit modernen Böden, edlen Türen und stilvollen Sanitäranlagen. Zudem unterstützt dich das DIY-Ausbau-Coaching dabei, den Innenausbau selbst in die Hand zu nehmen - praxisnah und professionell begleitet.
Dein LivingHaus: Maßgeschneiderte Träume in Wassenberg
41849 Wassenberg
Die vollständige Adresse der Immobilie erhalten Sie vom Anbieter.
Auf Karte anzeigen
Die vollständige Adresse der Immobilie erhalten Sie vom Anbieter.
Finanzierungszertifikat
In nur zwei Minuten zu Ihrem persönlichen Finanzierungszertifkat.
Infos
| Haustyp | Einfamilienhaus |
|---|---|
| Etagenzahl | 2 |
| Wohnfläche ca. | 144 m2 |
| Nutzfläche | 144 m2 |
| Grundstücksfläche | 361 m2 |
| Zimmer | 4 |
| Schlafzimmer | 3 |
| Badezimmer | 1 |
| Garage/Stellplatz | Garage |
| Anzahl Garage/Stellplatz | 1 |
Kosten
| Kaufpreis |
448.922 € |
|---|---|
| Provision | Nein |
Finanzierungsrechner:
Kaufpreis:
600.000 €
Eigenkapital:
600.000 €
Monatliche Rate
0 €
Effektiver Jahreszins
0 %
Sollzinsbindung
10 Jahre
Bausubstanz & Energieausweis
| Baujahr | unbekannt |
|---|---|
| Bauphase | Haus in Planung (projektiert) |
| Qualität der Austattung | Gehoben |
| Heizungsart | Wärmepumpe |
Beschreibung des Objekts
Ausstattung
In deinem zukünftigen LivingHaus genießt du die Sicherheit unserer Safety-First-Garantien mit einer 18-monatigen Festpreisgarantie ab Auftragsbestätigung. Dein Preis bleibt stabil oder sinkt sogar bei fallendem Baupreisindex. Essenzielle Bauversicherungen wie Bauherrenhaftpflicht, Bauleistungs-, Wohngebäude- und Bauhelfer-Unfallversicherung sowie Baufinanzierungsschutz sind inklusive.
Für deine Finanzierung steht dir unser Zuhause-Darlehen zur Verfügung, oft zu einem Zins unter Marktniveau. Mit der Living Haus Bauherren-App hast du direkten Kontakt zu Ansprechpartnern, Einsicht in alle Unterlagen sowie eine Inspirationspinnwand zur Verfügung.
Dank DGNB-Serienzertifizierung in Gold sowie QDF-Zertifizierung baust du auf höchste Standards hinsichtlich Ökologie, Ökonomie und Technik. Wir bieten eine 30-jährige Garantie auf die Grundkonstruktion deines Gebäudes und fünf Jahre Gewährleistung nach BGB für alle übrigen Leistungen.
Im Leistungspaket enthalten sind Ausstattungsberatung in der Haus-Statterei, komplette Bauantragsplanung durch erfahrene Architekten sowie ein Bodengutachten für die ideale Gründung. Baustelleneinrichtung mit Abfallcontainer, Baustellen-WC, Montagekran und Montagegerüst ist ebenfalls geregelt.
Profitiere zudem von KFN- und QNG-Förderkrediten bei klimafreundlichem Neubau samt Baubegleitung durch eigene Sachverständige. Eine vorkonfigurierte I-KON-Lösung ermöglicht mittels PV-Anlage mit Speicherbatterie einen Großteil deiner Stromversorgung selbst zu erzeugen.
Moderne Wärmepumpentechnik mit Komfortlüftung sorgt für effizientes Heizen und angenehmes Raumklima. Im Zuhause-Paket erhältst du sämtliche Innenausbaumaterialien inklusive Fliesen im Erdgeschoss und bodengleicher Duschen mit Echtglasabtrennung.
Ergänzt wird alles durch das DIY-Ausbau-Coaching für den Innenausbau sowie ein hohes Maß an Vorfertigung zur Effizienzsteigerung des Bauprozesses - Dein »Wie ich es will Fertighaus«.
Lage
Wassenberg bietet dir eine hervorragende Lage mit umfassenden Annehmlichkeiten direkt vor der Haustür. Für Familien ist bestens gesorgt: Verschiedene Kindergärten und Schulen sind schnell erreichbar, darunter die GGS Am Burgberg sowie die Betty-Reis-Gesamtschule - beide bekannt für ihre engagierten Lehrkräfte und vielfältigen Bildungsangebote.
Auch Einkaufsmöglichkeiten sind reichlich vorhanden: In Wassenberg findest du Supermärkte wie Edeka oder Aldi für deinen täglichen Bedarf. Für weiterführende Shoppingtouren bieten sich die nahgelegenen Städte Mönchengladbach oder Aachen an.
Die medizinische Versorgung ist durch Arztpraxen verschiedenster Fachrichtungen gesichert; das Städtische Krankenhaus Heinsberg liegt ebenfalls nicht weit entfernt und bietet umfassende medizinische Dienstleistungen.
Freizeitmöglichkeiten gibt es zahlreich: Der Naturpark Maas-Schwalm-Nette lädt zu ausgedehnten Spaziergängen oder Radtouren ein - ideal für Naturliebhaber! Zudem bietet der Lago Laprello zahlreiche Wassersportmöglichkeiten oder einfach einen entspannten Tag am Wasser.
Pendler profitieren von einer guten Verkehrsanbindung über die B221 zur A46 Richtung Düsseldorf oder Aachen sowie einem gut ausgebauten öffentlichen Nahverkehrsnetz. So erreichst du alle umliegenden Städte bequem innerhalb kurzer Zeit.
Sonstige Angaben
Der Grundstückspreis ist im Anzeigenpreis bereits enthalten.
Dieses teilerschlossene Grundstück erwerben Sie direkt vom Eigentümer über einen Makler.
Ein Träumchen an Grundstück. :-)
Heimkommen - ankommen - herunterkommen - wohlfühlen.
Vereinbaren Sie gleich Ihren persönlichen Beratungstermin und sichern Sie sich Ihrer Familie ein geniales Bauland für Ihr neues Zuhause mit Living Haus.
Jedoch bitte ich zu berücksichtigen:
Ich baue mit sehr viel Herz und Kompetenz Häuser. Im Interesse der jeweiligen Grundstückseigentümer sowie meiner Bauherren werde ich ohne ein persönliches Gespräch zum Thema Hausbau nie irgendwelche Grundstücksdaten weiterleiten. Keine Ausnahmen an dieser Stelle.
Und... natürlich ist es mir selbst mit bestem Willen nicht möglich, eine dauerhafte Verfügbarkeit der Grundstücke zu garantieren. Es gibt jedes Grundstück halt nur einmal - Leider.
Kennen Sie schon den Living Haus Beratungsservice? Nein? Dann rufen Sie uns an und wir stimmen einen kostenlosen persönlichen Termin ab. Ihr Wohl liegt uns am Herzen.
Die Architektenleistungen sind bereits enthalten.
Für die gesamte Bauphase und darüber hinaus ist Ihr Projekt versichert, diese Leistungen sind im Preis bereits inbegriffen. Fragen Sie Ihren Berater.
Das Grundstück wird über einen anderen Anbieter verkauft. Keine Gewähr auf Angaben. Der Preis versteht sich zzgl. Erwerbs und Baunebenkosten. Änderungen des Preises oder der Ausstattungen sowie Irrtümer oder Zwischenverkauf sind vorbehalten. Abbildungen und Grundrisse können Extras zeigen, die nicht im Angebot enthalten sind. Alle Angaben nach bestem Wissen und Gewissen, jedoch ohne Gewähr.
Finanzierungsberater stehen bei uns kostenlos zu Ihrer persönlichen Beratung bereit.
Wir laden Sie gerne zu einem persönlichen Gespräch in unser Büro und unsere Musterausstellung nach Bedburg ein. Nur vollständig ausgefüllte Anfragen können auch beantwortet werden. Vereinbaren Sie noch heute einen Termin mit uns und kommen Sie Ihrem Traum von den eigenen 4 Wänden ein Stück näher.
Kirsten Hilgers +49-160-3606749 oder per Mail: kirsten.hilgers@livinghaus.de
Auf Living Haus können Sie vertrauen!
Wir freuen uns auf Sie! :-)
Grundriss
Grundriss Erdgeschoss
>
>
Grundriss Obergeschoss
>
>
Adresse
41849 Wassenberg
Interessante Orte
Preis- und Lageinformationen
Preistrend für Bestandsimmobilien in Wassenberg