Platz für die Großfamilie oder Generationswohnen – dies trifft für beide Objekte zu.
Das straßenbegleitende Haus 1 ist ein 2-Familienfachwerkhaus mit Holzbalkendecken und Teilunterkellerung. Das Erdgeschoss ist unrenoviert. Hier könnte eine 2-Raumwohnung mit Wohnküche und separatem Esszimmer entstehen. Das Obergeschoss wurde 2005 renoviert und ist als 3-Raumwohnung mit Wohnküche und Tageslichtbad nutzbar. 2005 erhielt das Haus neue Isolierglasfenster, im EG aus Holz, im OG in Kunststoff. Die Elektrik im OG wurde ca. 2009 erneuert. Das Haus wird mit einer Vissmann-Ölheizung aus 1991 beheizt. Die Kunststofftanks haben ein Fassungsvermögen von ca. 3000 l.
Das Fachwerkhaus ist mit ausgemauerten Gefachen in Lehmstein und mit Lehmputz errichtet. Die obere Geschossdecke ist mit Dämmschlacke versehen, darauf ein zusätzlicher Betonboden gegossen. Somit ist der Dachboden gut begehbar und könnte ebenfalls noch ausgebaut werden. Das Dach wurde ca. 2008 erneuert und mit Tonziegeln belegt.
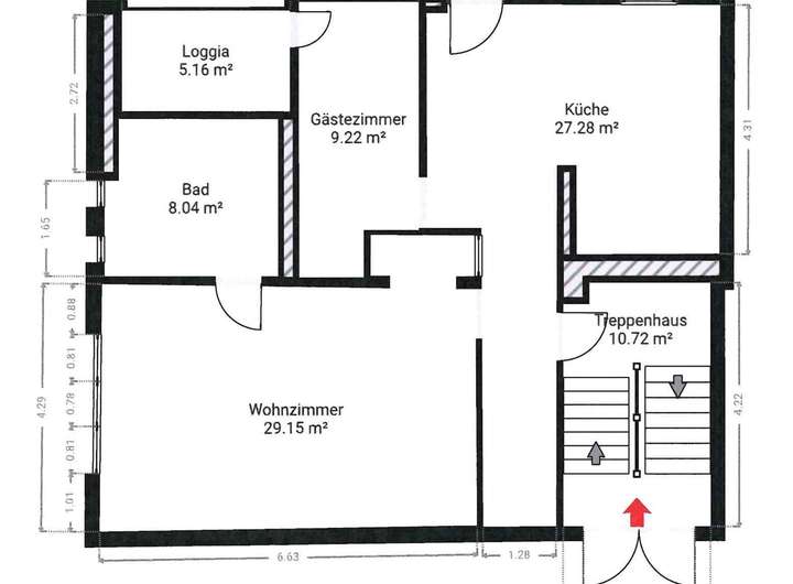
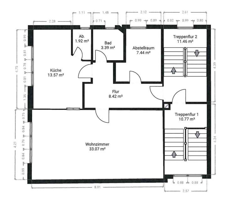
Angrenzend steht das zweite Haus – es ist ebenfalls ein 2-Familienhaus, mit eigener Geschichte. Dieses ist komplett massiv errichtet. Das Untergeschoss aus dem Jahre 1989 wurde zwischen 1994 bis 1998 aufgestockt, so dass man 1998 einziehen konnte, somit ist ein Neubau entstanden. Die obere Maisonettewohnung verfügt über vier Zimmer, Wohnküche mit EBK von 1998, zwei Bäder und großen HWR, ganz oben genießt man eine Loggia. Küche und Bäder sind mit Fußbodenheizung versehen. Die Wohnräume mit Teppichbelag ausgestattet. Alle Wände in diesem Haus sind verputzt. Die Kunststoffisolierglasfenster aus 1997 verfügen über mech. Außenjalousien (bis auf drei Räume). Die Fensterbänke in Marmor ausgeführt. Das Dach ist gedämmt mit Mineral-wolle gedämmt und ebenfalls mit Tonziegeln eingedeckt. Es existiert nur ein kleiner Spitzboden. Die 2-Raumwohnung im EG wurde 2016 saniert, incl. neuer Heizung, Elektrik, Tageslichtbad und Fußböden. In der Wohnküche verbleibt die hochwertige Einbauküche (Wert ca. 24.000,00 €), ein extra Designheizkörper angebracht. Die Fußböden mit Designbelag ausgestattet. Hier erfolgt das Heizen über eine Gaszentralheizung (1997) mit Flüssiggas. Der Gaskessel ist 2008 erneuert worden.
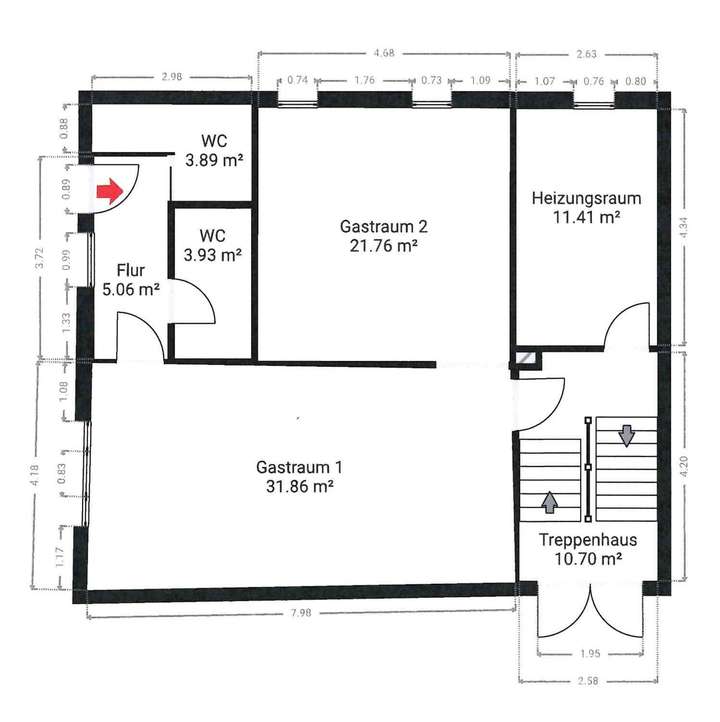
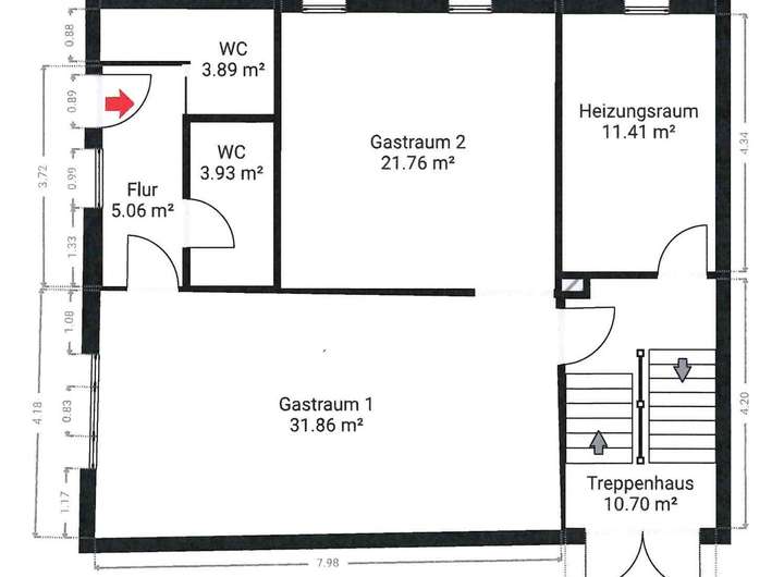
Im UG befindet sich neben der Heizung ein ehemaliges Café mit zwei großen Räumen, vorhandener Bestuhlung, Tresen und separatem Eingang, alles in gutem Zustand und komplett gefliest.
Die Familie unter einem Dach - zwei Häuser mit Swimmingpool auf einem Grundstück
99826 Berka vor dem Hainich
Die vollständige Adresse der Immobilie erhalten Sie vom Anbieter.
Auf Karte anzeigen
Die vollständige Adresse der Immobilie erhalten Sie vom Anbieter.
Finanzierungszertifikat
In nur zwei Minuten zu Ihrem persönlichen Finanzierungszertifkat.
Infos
| Haustyp | Einfamilienhaus |
|---|---|
| Etagenzahl | 3 |
| Wohnfläche ca. | 398 m2 |
| Grundstücksfläche | 654 m2 |
| Bezugsfrei ab | sofort |
| Zimmer | 12 |
| Schlafzimmer | 7 |
| Badezimmer | 3 |
| Garage/Stellplatz | Garage |
| Anzahl Garage/Stellplatz | 3 |
Kosten
| Kaufpreis |
345.000 € |
|---|---|
| Provision |
3,57 % inkl. MwSt. |
Finanzierungsrechner:
Kaufpreis:
600.000 €
Eigenkapital:
600.000 €
Monatliche Rate
0 €
Effektiver Jahreszins
0 %
Sollzinsbindung
10 Jahre
Bausubstanz & Energieausweis
| Baujahr | 1878 |
|---|---|
| Letzte Sanierung | 2016 |
| Objektzustand | Modernisiert |
| Qualität der Austattung | Normal |
| Heizungsart | Zentralheizung |
| Wesentliche Energieträger | Gas |
| Energieausweis | liegt zur Besichtigung vor |
Beschreibung des Objekts
Ausstattung
Ein besonderes Highlight ist der in 2011 errichtete Pool mit Schwalldusche und seinen Abmaßen von 4 x 6 m sowie einer Tiefe von ca. 1,55 m. Er befindet sich in neuwertigem Zustand. Das Wasser wird über eine Filteranlage gereinigt, zusätzlich gibt es einen Wasserstaubsauger. 2014 wurde der Hof gepflastert und es entstand eine schöne Terrassenfläche. Des Weiteren gibt es einen Gartenteich, einen Rasengarten, ein Nebengebäude für zum Beispiel Kaninchenhaltung. Ein ca. 11 m tiefer und 1970 gebauter Brunnen kann den Pool bewässern und auch den Garten. Entwässert werden die Häuser über die Klärgrube. Das Fassungsvermögen beträgt ca. 10.000 Liter und wurde im Jahre 1989 errichtet.
Lage
Einkaufsmöglichkeiten gibt es im benachbarten Hötzelsroda oder Mihla. Busverbindung ist vorhanden. Bis zur Autobahn A 4 fährt man ca. 20 min.
Grundriss
UG L 2
>
>
EG L 2
>
>
1.OG L 2
>
>
DG L 2
>
>
EG H 5
>
>
OG H 5
>
>
Adresse
99826 Berka vor dem Hainich
Interessante Orte
Preis- und Lageinformationen
Preistrend für Bestandsimmobilien in Berka vor dem Hainich