Zum Hauptinhalt springen
1/4
2/4
3/4
4/4

BAUPLATZ ZU VERKAUFEN!!!

71642 Ludwigsburg
Die vollständige Adresse der Immobilie erhalten Sie vom Anbieter.
Auf Karte anzeigen
Logo ImmoScout24 Logo ImmoScout24
PDF Finanzierungszertifikat

Finanzierungszertifikat

In nur zwei Minuten zu Ihrem persönlichen Finanzierungszertifkat.

  • Zur Vorlage beim Makler oder Verkäufer
  • Vorteile gegenüber anderen Kaufinteressenten
  • Kostenlos und unverbindlich
Finanzierungszertifikat anfragen

Infos

Vermarktungsart Kaufen
Grundstücksfläche 179 m2
Erschließung Erschlossen
Empfohlene Nutzung Einfamilienhaus
Verfügbar ab sofort

Kosten

Miete pro Jahr 180.000 €
Provision 4,76 % inkl. ges. MwSt.
Die Maklercourtage für den Käufer beträgt 4 % aus dem Kaufpreis zuzüglich der gesetzlichen MwSt., somit gesamt 4,76 %.

Finanzierungsrechner:

Kaufpreis: 600.000 €

Eigenkapital: 600.000 €
Monatliche Rate 0 €
Effektiver Jahreszins 0 %
Sollzinsbindung 10 Jahre

Beschreibung des Objekts

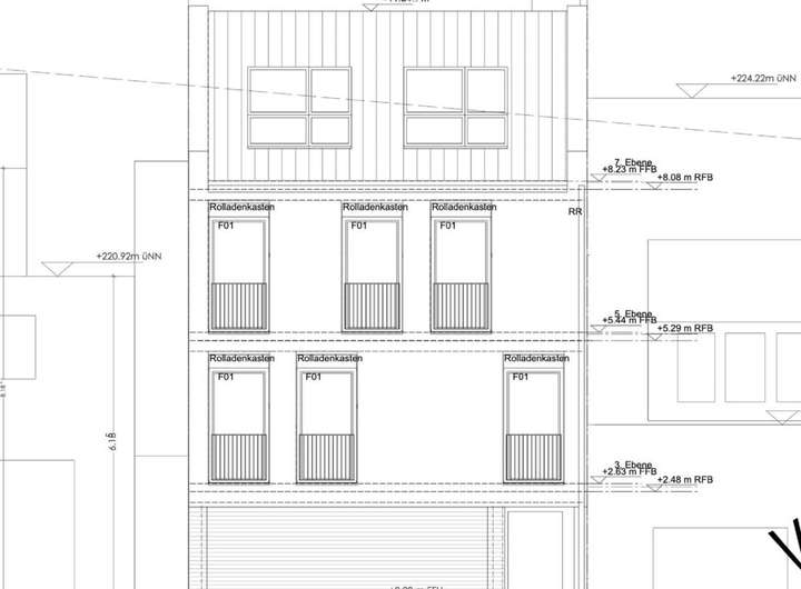
                - Der Bauplatz ist vorbereitet.

- Der Hang ist gesichert.

- Die Baugenehmigung ist erteilt.

- Eine Planung ist vorhanden, dies muss aber nicht übernommen werden.

- Ein- bis Zweifamilienhaus möglich.
            

Adresse

71642 Ludwigsburg

Interessante Orte

Bäckereien
Schulen
Ärzte

Ansprechpartner