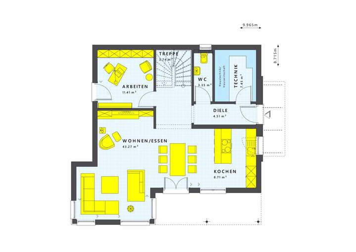
Willkommen in deinem individuell gestaltbaren Living Haus Fertighaus in der malerischen Stadt Linnich. Mit insgesamt 145 Quadratmetern Wohnfläche und einer Grundstücksgröße von 375 Quadratmetern, bietet dieses zweistöckige Haus ausreichend Platz für fünf Zimmer, darunter ein großes Wohnzimmer mit integriertem Übereckerker, das den Raum im Erdgeschoss auf über 43 Quadratmeter erweitert. Das coole Walmdach sorgt nicht nur für ein modernes Erscheinungsbild, sondern ermöglicht auch eine volle Deckenhöhe im Obergeschoss, wo du Zugang zu einem großzügigen Balkon hast. Dieser dient zugleich als Überdachung für den darunter liegenden Freisitz, der perfekte Ort zum Entspannen und für gemütliche Stunden im Freien.
Bei LivingHaus wird dein Haus genau nach deinen Wünschen projektiert und ausgestattet - angefangen bei der Traumküche, die genau auf deinen Grundriss abgestimmt ist und mit modernster Technik ausgestattet wird. Mit dem Living Haus Bau-Cockpit behältst du stets den Überblick über dein Bauprojekt digital und stressfrei. I-KON sorgt dafür, dass dein Haus energieeffizient und umweltfreundlich gebaut wird. Für die Finanzierung steht dir das exklusive Zuhause-Darlehen zur Verfügung, das dir besondere Konditionen bietet.
Das Zuhause-Paket beinhaltet eine hochwertige Grundausstattung mit modernen Böden aus Fliesen und Laminat sowie stilvollen Sanitäranlagen. Dank des DIY-Ausbau-Coachings wirst du selbst zum Profi und kannst den Innenausbau deines Hauses eigenständig meistern.
Zwischen Feldern und Freundlichkeit - Zuhause in Tetz
52441 Linnich
Die vollständige Adresse der Immobilie erhalten Sie vom Anbieter.
Auf Karte anzeigen
Die vollständige Adresse der Immobilie erhalten Sie vom Anbieter.
Finanzierungszertifikat
In nur zwei Minuten zu Ihrem persönlichen Finanzierungszertifkat.
Infos
| Haustyp | Einfamilienhaus |
|---|---|
| Etagenzahl | 2 |
| Wohnfläche ca. | 145 m2 |
| Nutzfläche | 145 m2 |
| Grundstücksfläche | 375 m2 |
| Zimmer | 5 |
| Schlafzimmer | 5 |
| Badezimmer | 1 |
| Garage/Stellplatz | Garage |
| Anzahl Garage/Stellplatz | 1 |
Kosten
| Kaufpreis |
452.721 € |
|---|---|
| Provision | Nein |
Finanzierungsrechner:
Kaufpreis:
600.000 €
Eigenkapital:
600.000 €
Monatliche Rate
0 €
Effektiver Jahreszins
0 %
Sollzinsbindung
10 Jahre
Bausubstanz & Energieausweis
| Baujahr | unbekannt |
|---|---|
| Bauphase | Haus in Planung (projektiert) |
| Qualität der Austattung | Gehoben |
| Heizungsart | Wärmepumpe |
Beschreibung des Objekts
Ausstattung
Die Ausstattung deines LivingHaus Hauses bietet dir maximale Sicherheit und Flexibilität. Schon ab dem Tag deiner Auftragsbestätigung profitierst du von einer 18-monatigen Festpreisgarantie, die dich vor Preissteigerungen schützt. Sollten die Baukosten dennoch sinken, wird auch dein Preis entsprechend angepasst. Im Paket sind essenzielle Bauversicherungen enthalten - von der Bauherrenhaftpflicht bis zur Bauhelfer-Unfallversicherung - damit du jederzeit abgesichert bist.
Finanziell unterstützt dich das Zuhause-Darlehen mit bis zu 250.000 Euro zu attraktiven Zinsen unter dem Marktniveau. Das Living Haus Bauherren-Cockpit bietet dir digitalen Zugriff auf relevante Dokumente und einen direkten Draht zu allen Ansprechpartnern.
Ökologie spielt bei LivingHaus eine große Rolle: Dein zukünftiges Heim erhält sowohl DGNB- als auch QDF-Zertifizierungen inklusive einer digitalen Hausbauakte. Eine vorkonfigurierte I-KON-Lösung ermöglicht dir, deinen Strombedarf größtenteils selbst zu decken durch eine integrierte PV-Anlage samt Speicherbatterie.
Für das Heizen sorgen moderne Wärmepumpentechnik mit Komfortlüftung und Wärmerückgewinnung. Aluminiumgeschäumte Rollläden bieten Schutz vor sommerlicher Hitze und verbessern die Wärmedämmung im Winter.
Das Zuhause-Paket rundet alles ab mit hochwertigen Innenausbaumaterialien, wie Fliesen im gesamten Erdgeschoss und bodengleichen Duschen mit Echtglasabtrennung. Die individuell geplante Küche ist bereits inkludiert ohne zusätzliche Kostenfallen.
Besonders hervorzuheben ist das DIY-Ausbau-Coaching: Innerhalb von drei Tagen lernst du praxisnah alle notwendigen Handgriffe für den Innenausbau - perfekt betreut durch Experten direkt vor Ort.
Dein »Wie ich es will Fertighaus«.
Lage
Tetz ist ein ländlich geprägter Ortsteil der Stadt Linnich im Kreis Düren, eingebettet in die reizvolle Landschaft des Jülicher Landes. Der Ort bietet eine angenehme Mischung aus dörflichem Charme, naturnaher Umgebung und guter Erreichbarkeit der umliegenden Städte.
Die gewachsene Dorfgemeinschaft sorgt für ein familiäres, ruhiges Wohnumfeld mit hoher Lebensqualität. Felder, Wiesen und kleine Wälder prägen das Bild und laden zu Spaziergängen, Radtouren oder einfach zum Entspannen in der Natur ein. Auch für Familien ist Tetz attraktiv: Kindergärten und Schulen befinden sich in der näheren Umgebung, ebenso wie Einkaufsmöglichkeiten, Ärzte und weitere Einrichtungen des täglichen Bedarfs - viele davon im benachbarten Linnich oder im nahen Jülich.
Verkehrstechnisch ist Tetz gut angebunden. Über die nahegelegenen Bundesstraßen sind sowohl die Autobahn A44 als auch A4 schnell erreichbar, wodurch auch Pendler von der zentralen Lage zwischen Aachen, Köln und Düsseldorf profitieren.
Tetz verbindet naturnahes Wohnen mit einer ruhigen, freundlichen Nachbarschaft - ein idealer Ort für alle, die es gerne etwas ruhiger und dennoch gut angebunden mögen.
Sonstige Angaben
Dieses erschlossene Baugrundstück wird provisionsfrei angeboten und ist bereits im Kaufpreis enthalten. Es handelt sich um ein sehr schönes Grundstück in ruhiger Lage- eine einmalige Gelegenheit, sich den Traum vom eigenen Zuhause zu erfüllen!
Stell dir vor, nach Hause zu kommen und dich rundum wohlzufühlen - genau das könnte hier Wirklichkeit werden! Nutze die Gelegenheit und sichere dir für dich und deine Familie ein wundervolles Bauland für euer neues Zuhause mit Living Haus.
Bitte beachte: Ich baue mit viel Herz und Fachkompetenz Häuser. Im Interesse der Grundstückseigentümer sowie meiner Bauherren gebe ich ohne ein persönliches Gespräch zum Thema Hausbau grundsätzlich keine Grundstücksdaten weiter - hierfür gibt es keine Ausnahmen. Ebenso kann ich die dauerhafte Verfügbarkeit der Grundstücke nicht garantieren, denn jedes gibt es nur ein einziges Mal.
Gerne lade ich dich zu einem persönlichen Gespräch in unser Büro nach Bedburg ein oder besuche dich bequem bei dir zu Hause. Nur vollständig ausgefüllte Anfragen können bearbeitet werden. Vereinbare noch heute einen Termin und komme deinem Traum von den eigenen vier Wänden ein Stück näher.
Kirsten Hilgers
📞 +49-160-3606749
📩 kirsten.hilgers@livinghaus.de
Auf Living Haus kannst du vertrauen - wir freuen uns auf dich!
Grundriss
Grundriss Erdgeschoss
>
>
Grundriss Obergeschoss
>
>
Adresse
52441 Linnich
Interessante Orte
Preis- und Lageinformationen
Preistrend für Bestandsimmobilien in Linnich