Mehrfamilienhaus mit 4 Wohneinheiten, 2 Garagen, 2 Carports und großem Grundstück
Zum Verkauf steht ein gepflegtes 4-Familienhaus mit einer Gesamtwohnfläche von ca. 395 m² auf einem großzügigen Grundstück von ca. 1.007 m². Die Immobilie wurde ursprünglich im Jahr 1900 als Einfamilienhaus erbaut und 1990 um einen Anbau erweitert und zu einem Zweifamilienhaus ausgebaut. 2013 wurde der Dachboden in zwei zusätzliche Wohnungen ausgebaut. Somit sind insgesamt 4 Wohnungen vorhanden.
Die Beheizung erfolgt über eine Ölheizung (Bj. 2004), während die Warmwasserversorgung umweltfreundlich über eine Solaranlage (Bj. 2021) läuft.
Wohnungsaufteilung:
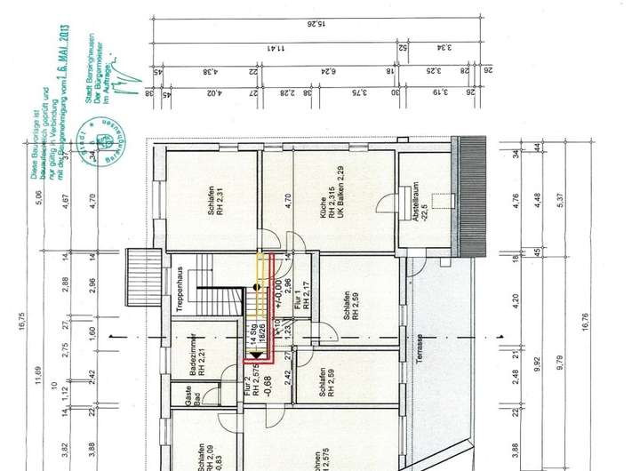
✅ Whg. 1: Erdgeschoss (ca. 213 m²)
- 4 Zimmer, großes Wohnzimmer
- Badezimmer mit Badewanne und Dusche
- Gäste-WC mit zusätzlicher Dusche
- Große, überdachte Terrasse
- Moderne 3-fach verglaste Fenster (Bj. 2016)
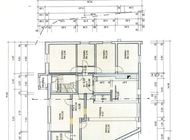
✅ Whg. 2: 1. Obergeschoss (ca. 152 m², vermietet seit 2024 für 1.200 € inkl. Heizung & Strom)
- 4 Zimmer, geräumige Wohnfläche
- 2-fach verglaste Fenster (Bj. 2016)
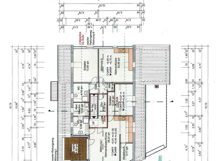
✅Whg. 3: Dachgeschoss (ca. 81 m², vermietet ab 01.05.2025 für 900 € + Strom
- 3 Zimmer
- Badezimmer mit Badewanne und Dusche
- Balkon
✅ Whg. 4: Dachgeschoss (ca. 41 m², vermietet für 350 €
- 2 Zimmer
- Badezimmer mit Dusche
- Fenster aus 2014
Zusätzliche Highlights:
✔ 2 Garagen
✔ Großzügiges Grundstück mit 1.007 m² Fläche
✔ Attraktive Mieteinnahmen durch bestehende Vermietung
✔ Ruhige Lage mit guter Anbindung
Das Haus eignet sich ideal als Kapitalanlage oder für Eigennutzer mit Vermietungspotenzial.
gepflegtes Mehrfamilienhaus als Kapitalanlage oder zur Selbstnutzung
30890 Barsinghausen
Die vollständige Adresse der Immobilie erhalten Sie vom Anbieter.
Auf Karte anzeigen
Die vollständige Adresse der Immobilie erhalten Sie vom Anbieter.
Finanzierungszertifikat
In nur zwei Minuten zu Ihrem persönlichen Finanzierungszertifkat.
Infos
| Haustyp | Einfamilienhaus |
|---|---|
| Etagenzahl | 3 |
| Wohnfläche ca. | 488 m2 |
| Grundstücksfläche | 1.007 m2 |
| Bezugsfrei ab | nach Absprache |
| Zimmer | 13 |
| Schlafzimmer | 9 |
| Badezimmer | 5 |
| Garage/Stellplatz | Carport |
| Anzahl Garage/Stellplatz | 2 |
Kosten
| Kaufpreis |
659.000 € |
|---|---|
| Provision |
23.526,30€ |
Finanzierungsrechner:
Kaufpreis:
600.000 €
Eigenkapital:
600.000 €
Monatliche Rate
0 €
Effektiver Jahreszins
0 %
Sollzinsbindung
10 Jahre
Bausubstanz & Energieausweis
| Heizungsart | Öl-Heizung |
|---|---|
| Wesentliche Energieträger | Solarheizung, Öl |
Beschreibung des Objekts
Ausstattung
Allgemein:
✔ 4-Familienhaus mit ca. 488 m² Wohnfläche
✔ Großes Grundstück ca. 1.007 m²
✔ Baujahr 1900, Anbau 1980, Ausbau DG Wohnungen 2013
✔ Ölheizung (Bj. 2004)
✔ PV-Anlage 16 kWh Module und 12 KW Speicher (Bj. 2021)
✔ 2 Garagen und 2 Carports
✔ Mieteinnahmen mtl. ab dem 01.05.2025 = ca. 2.500 €
Wohnungen:
Erdgeschoss (ca. 213 m²)
4 Zimmer
Bad mit Badewanne & Dusche
Gäste-WC mit zusätzlicher Dusche
Überdachte Terrasse
3-fach verglaste Fenster (Bj. 2016)
1. Obergeschoss (ca. 152 m², vermietet für 1.200 € inkl. Heizung & Strom)
4 Zimmer
2-fach verglaste Fenster (Bj. 2016)
2. Obergeschoss (ca. 81 m², ab 01.05.2025 für 900 € + Strom vermietet)
3 Zimmer
Bad mit Badewanne & Dusche
Balkon
Dachgeschoss (ca. 40 m²)
2 Zimmer
Badezimmer mit Dusche
Fenster (Bj. 2014)
Lage
Lagebeschreibung:
Das angebotene Mehrfamilienhaus befindet sich in Eckerde, einem charmanten Ortsteil der Stadt Barsinghausen in Niedersachsen. Eckerde zeichnet sich durch eine lebendige Dorfgemeinschaft aus, die das kulturelle Leben aktiv gestaltet.
- Umgebung und Infrastruktur:
Verkehrsanbindung: Durch die Nähe zur Barsinghäuser Straße (K 239) ist Eckerde gut an das regionale Verkehrsnetz angebunden. Die Straße verfügt abschnittsweise über Gehwege und ist asphaltiert.
- Öffentliche Verkehrsmittel:
Eine Bushaltestelle befindet sich in unmittelbarer Nähe, was den Anschluss an den öffentlichen Nahverkehr erleichtert.
- Einrichtungen des täglichen Bedarfs:
In der Umgebung sind diverse Einrichtungen wie Supermärkte, Bäckereien und Apotheken vorhanden, die eine gute Versorgung sicherstellen.
- Bildungseinrichtungen:
Kindergärten und Schulen sind in den umliegenden Ortsteilen von Barsinghausen leicht erreichbar.
- Freizeit und Kultur:
Eckerde bietet durch seine aktive Dorfgemeinschaft zahlreiche kulturelle Veranstaltungen und Freizeitmöglichkeiten, die das Leben in diesem Ortsteil bereichern.
Insgesamt überzeugt die Lage durch eine harmonische Kombination aus ländlicher Idylle und guter Anbindung an städtische Infrastrukturen, was sie sowohl für Familien als auch für Pendler attraktiv macht.
Sonstige Angaben
Die Käufer-Provision beträgt 3 % vom Kaufpreis zzgl. der
gesetzlichen MwSt. Die Käufer-Provision ist verdient und fällig mit
notarieller Beurkundung. Der Immobilienmakler hat einen provisionspflichtigen Maklervertrag in gleicher Höhe mit dem Verkäufer abgeschlossen.
**********************************
Termine für Besichtigungen sind ausschließlich vorher mit unserem Büro bzw. mir abzustimmen.
**********************************
Bitte lassen Sie mir vorher Ihre Anfrage mit Ihren vollständigen Daten zukommen.
**********************************
Sie haben auch ein Haus oder eine Wohnung in dieser Lage zu verkaufen? Genau für Ihre Immobilie haben wir den passenden Käufer.
**********************************
Gern beraten wir Sie zum Thema Finanzierung und erstellen Ihnen ein individuelles Kreditangebot. Wir arbeiten mit vielen renommierten Banken zusammen.
Grundriss
Grundrisse EG
>
>
Grundrisse OG
>
>
Grundrisse DG
>
>
Adresse
30890 Barsinghausen
Interessante Orte
Preis- und Lageinformationen
Preistrend für Bestandsimmobilien in Barsinghausen