Zum Hauptinhalt springen
1/23
2/23
3/23
4/23
5/23
6/23
7/23
8/23
9/23
10/23
11/23
12/23
13/23
14/23
15/23
16/23
17/23
18/23
19/23
20/23
21/23
22/23
23/23

*SELBSTNUTZER AUFGEPASST*SEHR SCHÖNE WOHNUNG IM GEPFLEGTEM MFH-BALKON-AUFZUG-TIEFGARAGENSTELLPLATZ*

Philippstr. 8, 09130 Chemnitz
Auf Karte anzeigen
Logo ImmoScout24 Logo ImmoScout24
PDF Finanzierungszertifikat

Finanzierungszertifikat

In nur zwei Minuten zu Ihrem persönlichen Finanzierungszertifkat.

  • Zur Vorlage beim Makler oder Verkäufer
  • Vorteile gegenüber anderen Kaufinteressenten
  • Kostenlos und unverbindlich
Finanzierungszertifikat anfragen

Infos

Wohnungskategorie Etagenwohnung
Etage 3 von 5
Wohnfläche ca. 56 m2
Bezugsfrei ab sofort
Zimmer 2
Schlafzimmer 1
Badezimmer 1
Garage/Stellplatz Tiefgarage

Kosten

Kaufpreis 62.000 €
Hausgeld 210 €
Provision 3500 inkl. MwSt.

Finanzierungsrechner:

Kaufpreis: 600.000 €

Eigenkapital: 600.000 €
Monatliche Rate 0 €
Effektiver Jahreszins 0 %
Sollzinsbindung 10 Jahre

Bausubstanz & Energieausweis

Baujahr 1996
Objektzustand Vollständig Renoviert
Heizungsart Zentralheizung
Wesentliche Energieträger Fernwärme
Energieausweis liegt vor
Energieausweistyp Verbrauchsausweis
Energie­ver­brauchs­kennwert 57,4 kWh/(m²*a)

Beschreibung des Objekts

                MFH in ruhiger Lage.
            

Ausstattung

                -helle Wohnräume mit vielen Gestaltungsmöglichkeiten
-geräumige Wohnküche mit Zugang zum 
 Balkon  
-schönes Wohnzimmer mit Zugang zum 
 sonnigen Balkon
-Bad mit Wanne und Fenster 
 Waschmaschinenanschluß im Bad
-nette Nachbarn
-Fahrradraum
-Trockenraum
-Dachkammer
-Tiefgarage
               

Sonstige Angaben

                Kaufpreis VB.
           

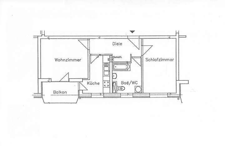
Grundriss

Grundriss Grundriss >

Adresse

Philippstr. 8, 09130 Chemnitz

Interessante Orte

Bäckereien
Schulen
Ärzte

Preis- und Lageinformationen

Preistrend für Bestandsimmobilien in Sonnenberg
Sept. 2022 Sept. 2023 Sept. 2024 Sept. 2025 1.330,71 €/m² 1.228,54 €/m² -7,68 % -0,51 %

Dieser Zeitraum ist nur für eingeloggte User sichtbar.

Jetzt einloggen

Ansprechpartner