***Provisionsfreies Angebot für den Käufer***
Im schönen Altenheim erwartet Sie hier eine äußerst interessante Immobilie. Sie suchen ein Zuhause um gemütlich zu Wohnen? Und auch zu arbeiten? Dann habe ich genau das Richtige für Sie.
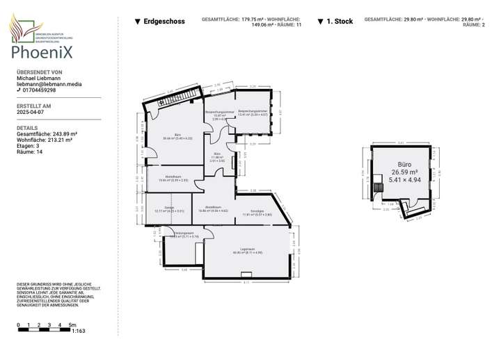
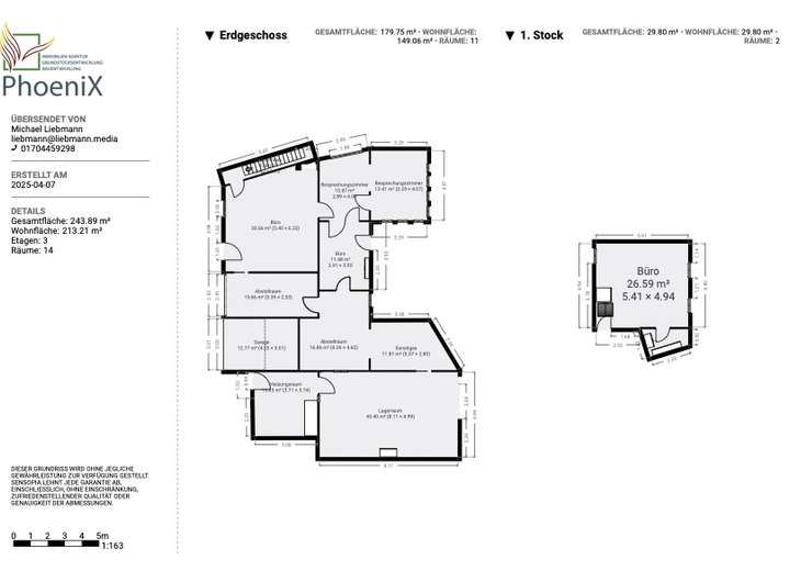
Dieses Angebot ist aufgeteilt, in einen gewerblichen Bereich, der mit wenig Umbau auch zu Wohnzwecken dienen kann.
Angeschlossen ist ein wunderbarer Garten im Außenbereich.
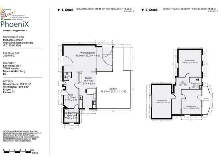
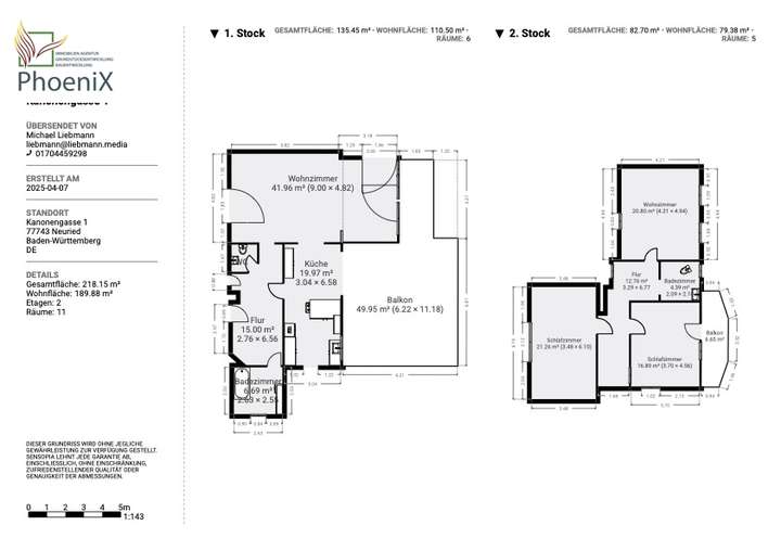
Im 1. Obergeschoss und Dachgeschoss, befindet sich eine wunderschöne Wohnung mit viel Platz und einer traumhaften Aussicht.
Die aktuellen Eigentümer haben viel Liebe und Einsatz in das Haus gesteckt und immer wieder angebaut, saniert und modernisiert. Das Haus ist sehr sparsam und umweltfreundlich.
Aktuell wird die Garage und der Außenbereich als Stellplatz für Wohnmobilie gewerblich genutzt. Es ist unglaublich viel Platz vorhanden. Ideal für einen Gewerbetreibenden oder auch um seinen Hobby nachzugehen.
Die beiden Häuser sind nach WEG geteilt.
Konnte ich Ihr Interesse wecken? Gerne stehe ich Ihnen für weitere Fragen zur Verfügung.
Auf Wunsch hin, informiert Sie unser Team gerne auch über Finanzierungs- und Fördermöglichkeiten beim Erwerb.
- Startseite
- ...
- Immobilienportal
- Wohnen und Arbeiten - die ideale Kombination!
Wohnen und Arbeiten - die ideale Kombination!
77743 Neuried
Die vollständige Adresse der Immobilie erhalten Sie vom Anbieter.
Auf Karte anzeigen
Die vollständige Adresse der Immobilie erhalten Sie vom Anbieter.
Finanzierungszertifikat
In nur zwei Minuten zu Ihrem persönlichen Finanzierungszertifkat.
- Zur Vorlage beim Makler oder Verkäufer
- Vorteile gegenüber anderen Kaufinteressenten
- Kostenlos und unverbindlich
Infos
| Haustyp | Doppelhaushaelfte |
|---|---|
| Wohnfläche ca. | 210 m2 |
| Nutzfläche | 100 m2 |
| Grundstücksfläche | 1.158 m2 |
| Bezugsfrei ab | per sofort |
| Zimmer | 7 |
| Schlafzimmer | 3 |
| Badezimmer | 1 |
Kosten
| Kaufpreis |
495.000 € |
|---|---|
| Provision |
keine zus. Käuferprovision |
Finanzierungsrechner:
Kaufpreis:
600.000 €
Eigenkapital:
600.000 €
Monatliche Rate
0 €
Effektiver Jahreszins
0 %
Sollzinsbindung
10 Jahre
Bausubstanz & Energieausweis
| Baujahr | 1973 |
|---|---|
| Objektzustand | Gepflegt |
| Wesentliche Energieträger | Strom |
| Energieausweis | liegt vor |
| Energieausweistyp | Bedarfsausweis |
| Energieverbrauchskennwert | 87,1 kWh/(m²*a) |
| Energieeffizienzklasse | C |
87,1
kWh/(m²*a)
Energieeffizienzklasse C
- A+
- A
- B
- C
- D
- E
- F
- G
- H
- 0
- 25
- 50
- 75
- 100
- 125
- 150
- 175
- 200
- 225
- >250
Beschreibung des Objekts
Lage
Das Haus befindet sich in ruhiger Lage von Altenheim (Gemeinde Neuried).
Sonstige Angaben
Sie haben eine Immobilie zu verkaufen oder suchen eine Immobilie? Gerne beraten wir Sie über die Möglichkeiten der Vermittlung über Phoenix Immobilien - Agentur. Vertrauen Sie den Immobilienprofis von Phoenix Immobilien - Agentur. Jetzt attraktive Finanzierungskonditionen sichern! Die Spezialisten der Finanzberatung erstellen Ihnen gern ein maßgeschneidertes Angebot. Sprechen Sie uns an.
Grundriss
Grundriss Gewerbe
>
>
Wohnung Neuried Kanonengasse 1
>
>
Adresse
77743 Neuried
Interessante Orte
Bäckereien
Schulen
Ärzte
Preis- und Lageinformationen
Preistrend für Bestandsimmobilien in Neuried
Dieser Zeitraum ist nur für eingeloggte User sichtbar.
Jetzt einloggen