Diese helle 1-Zimmer-Wohnung befindet sich im Hochparterre eines Mehrfamilienhauses in zentrumsnaher Lage an einem Strandübergang.
Lassen Sie sich vor Ort von den Vorzügen dieser Lage überzeugen!
Strand und Stadt so nah
25980 Sylt (Gemeinde)
Die vollständige Adresse der Immobilie erhalten Sie vom Anbieter.
Auf Karte anzeigen
Die vollständige Adresse der Immobilie erhalten Sie vom Anbieter.
Finanzierungszertifikat
In nur zwei Minuten zu Ihrem persönlichen Finanzierungszertifkat.
Infos
| Wohnungskategorie | Hochparterre |
|---|---|
| Wohnfläche ca. | 31 m2 |
| Bezugsfrei ab | nach Vereinbarung |
| Zimmer | 1 |
| Badezimmer | 1 |
Kosten
| Kaufpreis |
298.000 € |
|---|---|
| Provision |
3,57 % inkl. MwSt. |
Finanzierungsrechner:
Kaufpreis:
600.000 €
Eigenkapital:
600.000 €
Monatliche Rate
0 €
Effektiver Jahreszins
0 %
Sollzinsbindung
10 Jahre
Bausubstanz & Energieausweis
| Baujahr | 1965 |
|---|---|
| Objektzustand | Gepflegt |
| Wesentliche Energieträger | Gas |
| Energieausweis | liegt vor |
| Energieausweistyp | Bedarfsausweis |
| Energieverbrauchskennwert | 153,0 kWh/(m²*a) |
| Energieeffizienzklasse | E |
153,0
kWh/(m²*a)
Energieeffizienzklasse E
- A+
- A
- B
- C
- D
- E
- F
- G
- H
- 0
- 25
- 50
- 75
- 100
- 125
- 150
- 175
- 200
- 225
- >250
Beschreibung des Objekts
Ausstattung
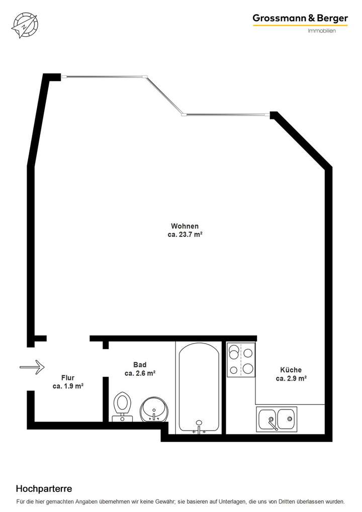
Über einen kleinen Flur gelangen Sie in den hellen Wohn- und Schlafbereich der Immobilie.
Eine voll ausgestattete und neuwertige Küche lädt zum Kochen ein. Ein großer Einbauschrank bietet ausreichend Stauraum und Platz für ein Schrankbett.
Das innenliegende Vollbad komplettiert diese charmante Wohnung.
Gern zeigen wir Ihnen alle Details bei einem persönlichen Termin vor Ort!
Lage
Direkt an der Westküste gelegen, gehört das Nordseeheilbad Westerland durch sein ganzjähriges, reichhaltiges Angebot zu einer der begehrtesten Wohnlagen auf Sylt.
Der Hauptort der Insel bietet eine unschlagbare Vielfalt, von dem dörflichen Charakter Alt Westerlands über die unterschiedlichsten Einkaufsmöglichkeiten bis hin zu den verschiedensten gastronomischen Angeboten.
Wellness und Gesundheit im Day Spa Syltness Center und Badespaß für die ganze Familie - im Sommer in der Nordsee und an kalten Tagen in der Sylter Welle - runden jeden Sylt Aufenthalt perfekt ab.
Grundriss
Grundriss
>
>
Adresse
25980 Sylt (Gemeinde)
Interessante Orte
Preis- und Lageinformationen
Preistrend für Bestandsimmobilien in Sylt