Willkommen in Ihrem neuen Zuhause! Dieses attraktive Reihenhaus überzeugt mit einer Wohnfläche von ca. 110 m² und eine zusätzliche Nutzfläche von ca. 98 m². Mit einer durchdachten Raumaufteilung, einem schönen Garten und zusätzlichem Außenstellplatz bietet es viel Platz für die ganze Familie.
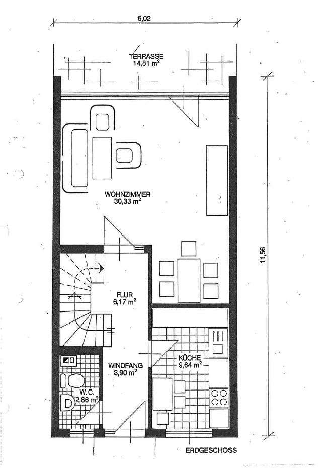
Im Erdgeschoss erwartet Sie ein großzügiger Wohn- und Essbereich, der durch seine Helligkeit und Offenheit besticht. Angrenzend befindet sich die Küche, die ausreichend Platz für kulinarische Kreationen bietet. Ein praktisches Gäste-WC rundet das Raumangebot auf dieser Etage ab.
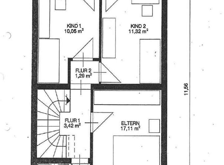
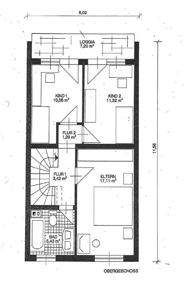
Im Obergeschoss befinden sich drei gut geschnittene Schlafzimmer, die flexibel als Eltern-, Kinder- oder Arbeitszimmer genutzt werden können. Das Badezimmer sorgt für Komfort und Entspannung im Alltag.
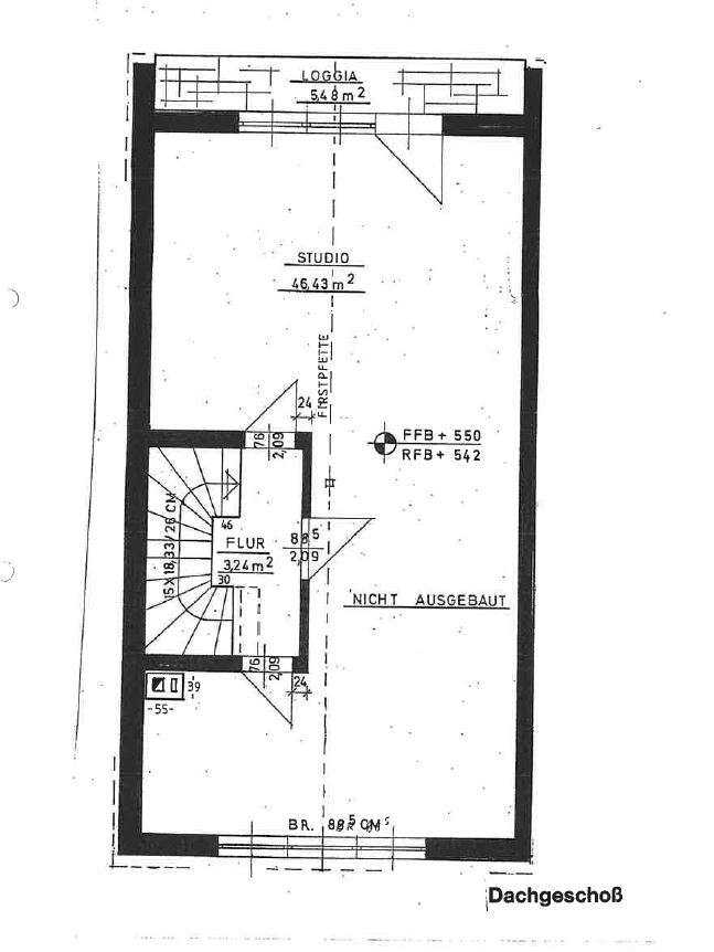
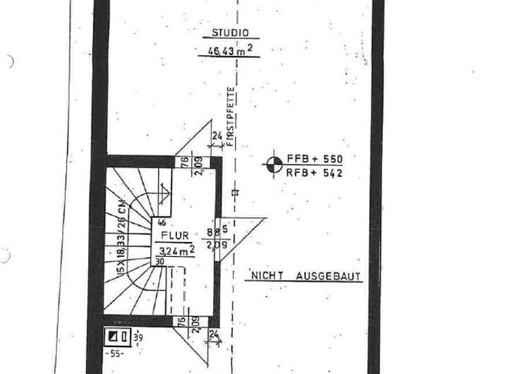
Ein besonderes Highlight ist das Dachgeschoss, das als Studio ausgebaut wurde. Ob als Hobbyraum, Homeoffice oder zusätzliches Gästezimmer – hier sind Ihren Gestaltungsideen keine Grenzen gesetzt.
Auch der geräumige Keller bietet viel Platz für Stauraum sowie für eine Werkstatt.
Der Außenbereich überzeugt mit einem gepflegten Garten, der sich ideal zum Entspannen, Gärtnern oder für gesellige Abende eignet. Ein Außenstellplatz sorgt für eine komfortable Parksituation.
Dieses charmante Reihenhaus verbindet Funktionalität mit Gemütlichkeit und bietet Ihnen ein ideales Zuhause in einer ruhigen und dennoch gut angebundenen Lage. Lassen Sie sich diese Gelegenheit nicht entgehen!
Altenstadt: Charmantes Reihenhaus mit ca. 208 m² Wohnnutzfläche – Ihr perfektes Zuhause!
63674 Altenstadt
Die vollständige Adresse der Immobilie erhalten Sie vom Anbieter.
Auf Karte anzeigen
Die vollständige Adresse der Immobilie erhalten Sie vom Anbieter.
Finanzierungszertifikat
In nur zwei Minuten zu Ihrem persönlichen Finanzierungszertifkat.
Infos
| Haustyp | Reihenmittelhaus |
|---|---|
| Wohnfläche ca. | 110 m2 |
| Nutzfläche | 98 m2 |
| Grundstücksfläche | 200 m2 |
| Zimmer | 6 |
| Schlafzimmer | 5 |
| Badezimmer | 1 |
| Garage/Stellplatz | Außenstellplatz |
| Anzahl Garage/Stellplatz | 1 |
Kosten
| Kaufpreis |
295.000 € |
|---|---|
| Preis für Garage/Stellplatz | 7.500 € |
| Provision |
2,98 % inkl. MwSt. |
Finanzierungsrechner:
Kaufpreis:
600.000 €
Eigenkapital:
600.000 €
Monatliche Rate
0 €
Effektiver Jahreszins
0 %
Sollzinsbindung
10 Jahre
Bausubstanz & Energieausweis
| Baujahr | 1992 |
|---|---|
| Objektzustand | Gepflegt |
| Qualität der Austattung | Normal |
| Heizungsart | Öl-Heizung |
| Energieausweis | liegt vor |
| Energieausweistyp | Bedarfsausweis |
| Energieverbrauchskennwert | 163,0 kWh/(m²*a) |
Beschreibung des Objekts
Lage
Die Gemeinde Altenstadt liegt am östlichen Rand der Wetterau, am Fuße des Vogelsberges und besteht aus den Ortsteilen Altenstadt, Waldsiedlung, Höchst, Oberau, Lindheim, Heegheim, Enzheim und Rodenbach. Altenstadt liegt ca. 25 bis 40 km entfernt von den Städten Gelnhausen, Hanau, Frankfurt und Gießen. Altenstadt liegt am Autobahnanschluss zur BAB/A459.
Im öffentlichen Personennahverkehr wird Altenstadt durch einen Bahnhaltepunkt und Altenstadt Waldsiedlung durch Buslinien erschlossen. Versorgungseinrichtungen des täglichen Bedarfs wie Läden und ein Kindergarten, Ärzte eine Grundschule und weiterführende Schulen sind in Altenstadt vorhanden.
Grundriss
Keller
>
>
Erdgeschoss
>
>
Obergeschoss
>
>
Dachgeschoss
>
>
Adresse
63674 Altenstadt
Interessante Orte
Preis- und Lageinformationen
Preistrend für Bestandsimmobilien in Altenstadt