Willkommen in Ihrem neuen Zuhause – einem charmanten Einfamilienhaus aus dem Baujahr 1960, das klassischen Charakter mit zeitgemäßen Renovierungen verbindet. Auf einem großzügigen Grundstück von ca. 1.242 m² erwartet Sie eine Immobilie mit viel Potenzial, ideal für Familien oder alle, die ruhiges Wohnen in zentrumsnaher Lage zu schätzen wissen. Alle wichtigen Einrichtungen des täglichen Bedarfs sind bequem erreichbar.
Das unterkellerte Haus bietet ca. 106 m² Wohnfläche und wurde in den vergangenen Jahren umfangreich renoviert. Dabei wurde der Innenbereich optisch ansprechend aufgearbeitet.
Zu den wichtigsten Modernisierungen zählen:
2018: Neue Fenster und Haustür
2018: Modernisiertes Badezimmer im Erdgeschoss (mit Dusche, WC, Fußbodenerwärmung )
2023: Austausch der Dachfenster in moderner Kunststoff-Ausführung
2023: Erneuerung des Stromkastens und des Hausanschlusses
2024: Dämmung der Hohlschicht
2024: Dämmung der Holzbalkendecke zum Dachgeschoss
Der Außenbereich überzeugt mit einer überdachten Terrasse, die nach Norden ausgerichtet ist und im Sommer angenehm schattige Aufenthaltsmöglichkeiten bietet. Der große Garten bietet vielseitiges Potenzial für Freizeit, Hobby oder Gartengestaltung. Die Garage – derzeit als Werkstatt genutzt – verfügt zusätzlich über drei Nebenräume für Hobby, Lager oder Projekte.
Die Immobilie ist nach Absprache verfügbar und bietet eine attraktive Kombination aus solider Substanz, bereits erfolgten Modernisierungen und der Möglichkeit, eigene Vorstellungen zu verwirklichen. Lassen Sie sich vom Charme des Hauses und der zentrumsnahen Wohnlage in Rhauderfehn begeistern.
Kontaktieren Sie uns gern für weitere Informationen oder einen Besichtigungstermin!
ZENTRUMSNAH * Energetisch aufgewertet – dank Dämmung der Wände (2024) und moderner Fenster (2018)
26817 Rhauderfehn
Die vollständige Adresse der Immobilie erhalten Sie vom Anbieter.
Auf Karte anzeigen
Die vollständige Adresse der Immobilie erhalten Sie vom Anbieter.
Finanzierungszertifikat
In nur zwei Minuten zu Ihrem persönlichen Finanzierungszertifkat.
Infos
| Haustyp | Einfamilienhaus |
|---|---|
| Wohnfläche ca. | 106 m2 |
| Grundstücksfläche | 1.242 m2 |
| Bezugsfrei ab | nach Absprache |
| Zimmer | 5 |
| Schlafzimmer | 4 |
| Badezimmer | 2 |
| Garage/Stellplatz | Garage |
| Anzahl Garage/Stellplatz | 1 |
Kosten
| Kaufpreis |
279.000 € |
|---|---|
| Provision |
Die Käufer-Maklercourtage beträgt 3,57 % des Kaufpreises (inkl. MwSt.) vom Kaufpreis. Die Courtage ist fällig mit Kaufvertragsunterzeichnung. |
Finanzierungsrechner:
Kaufpreis:
600.000 €
Eigenkapital:
600.000 €
Monatliche Rate
0 €
Effektiver Jahreszins
0 %
Sollzinsbindung
10 Jahre
Bausubstanz & Energieausweis
| Baujahr | 1960 |
|---|---|
| Objektzustand | Modernisiert |
| Wesentliche Energieträger | Gas |
| Energieausweis | liegt vor |
| Energieausweistyp | Bedarfsausweis |
| Energieverbrauchskennwert | 155,6 kWh/(m²*a) |
| Energieeffizienzklasse | E |
155,6
kWh/(m²*a)
Energieeffizienzklasse E
- A+
- A
- B
- C
- D
- E
- F
- G
- H
- 0
- 25
- 50
- 75
- 100
- 125
- 150
- 175
- 200
- 225
- >250
Beschreibung des Objekts
Ausstattung
Raumaufteilung:
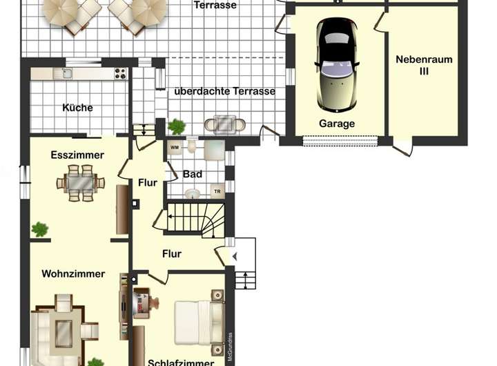
Keller: Vorraum, Kriechkeller, schmaler Raum als Lager
EG: Flur, Eltern-Schlafzimmer, Küche, Wohn-Esszimmer, Badezimmer mit Dusche und WC sowie Waschmaschinenanschluss und FBE - neu in 2018,
OG: Flur - mit neuem Dachfenster, Kinderzimmer I, Kinderzimmer II, Kinderzimmer III, Badezimmer- nicht renoviert - bis auf Dachfenster (neu in 2023)
Terrasse mit Überdachung
Garten
Garage - als Werkstatt genutzt, mit 3 Nebenräumen
2018 - Fenster und Haustür neu in 2018 - mit zweifach-Verglasung
2018- Modernisierung des Badezimmers im EG
2023 - Dachfenster - Kunststoff-
2023 - Anschluss und Stromkasten komplett neu
2024 - Dämmung der Hohlschicht
2024 - Dämmung der Holzbalkendecke zum DG
2025 - Austausch der Innentüren im Erdgeschoss
Lage
Zentrumsnahes Wohnen in Rhauderfehn
Dieses charmante Einfamilienhaus befindet sich in einer ruhigen, zentrumsnahen Siedlung in der idyllischen Gemeinde Rhauderfehn, die für ihre malerische Landschaft, freundliche Atmosphäre und hervorragende Infrastruktur bekannt ist. Das Ortszentrum liegt nur etwa 1,4 Kilometer entfernt, Einkaufsmöglichkeiten erreichen Sie bereits nach 1,2 Kilometern – ideal für kurze Wege im Alltag.
Familien profitieren von der Nähe zu Bildungseinrichtungen: Der nächste Kindergarten ist nur 1,1 Kilometer, die Grundschule 0,6 Kilometer entfernt. Weiterführende Schulen, darunter Hauptschule, Realschule und Gymnasium, sind bequem in 3,4 Kilometern erreichbar. Auch Freizeitangebote liegen praktisch vor der Haustür: Ein Spielplatz ist 0,45 Kilometer, Sport- und Fußballvereine 3,4 Kilometer entfernt, während das nächste Schwimmbad ca. 11,8 Kilometer und ein Kino ca. 15,4 Kilometer entfernt liegt.
Die Anbindung an den öffentlichen Nahverkehr ist komfortabel: Die nächste Bushaltestelle liegt nur 0,7 Kilometer entfernt, der Busbahnhof ca. 1,3 Kilometer. Für Pendler ist die Anbindung an das Fernstraßennetz durch die Autobahnen A28 und A31 in etwa 17–18 Kilometern ideal. Der nächste Bahnhof liegt ca. 15,6 Kilometer entfernt.
Rhauderfehn selbst ist ein staatlich anerkannter Erholungsort im südlichen Ostfriesland mit rund 18.000 Einwohnern und zehn Ortsteilen. Die Gemeinde bietet eine sehr gute ärztliche Versorgung, alle Schulformen (Grundschule bis Gymnasium) sowie zahlreiche Einkaufsmöglichkeiten. Die beliebten Städte Leer und Papenburg sind jeweils ca. 15 Kilometer entfernt und bieten zusätzliche Kultur-, Freizeit- und Einkaufsmöglichkeiten, darunter Fußgängerzonen, Krankenhäuser, Häfen, Museen und die Meyer-Werft in Papenburg.
Die Lage vereint somit die Ruhe und Beschaulichkeit des Landlebens mit kurzen Wegen zu Schule, Einkauf und Freizeit, ideal für Familien oder alle, die ein harmonisches und gut angebundenes Wohnumfeld suchen.
Sonstige Angaben
Bitte haben Sie Verständnis, dass wir Informationen und Exposés zu den Objekten erst nach vollständigen Angaben (Name, Postanschrift, E-Mail und Telefonnummer) übermitteln.
***
Haftungsausschluss:
Alle Angaben aus diesem Exposé stammen vom Verkäufer. Der Immobilienmakler hat insbesondere die Wohnflächenangabe des Verkäufers nicht überprüft und keine eigene Wohnflächenberechnung erstellt.
Grundriss
Erdgeschoss
>
>
Obergeschoss
>
>
Keller
>
>
Adresse
26817 Rhauderfehn
Interessante Orte
Preis- und Lageinformationen
Preistrend für Bestandsimmobilien in Rhauderfehn