Auf dem Grundstück befinden sich zwei ehem. abbruchreife Bauernhäuser mit Scheune.
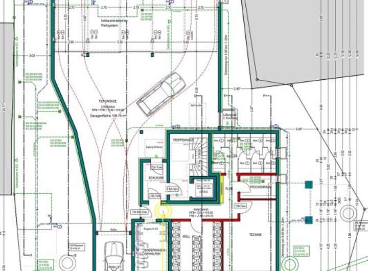
Es liegt eine Baugenehmigung zum Neubau von 9 Wohnungen und 9 Tiefgaragenplätzen vor.
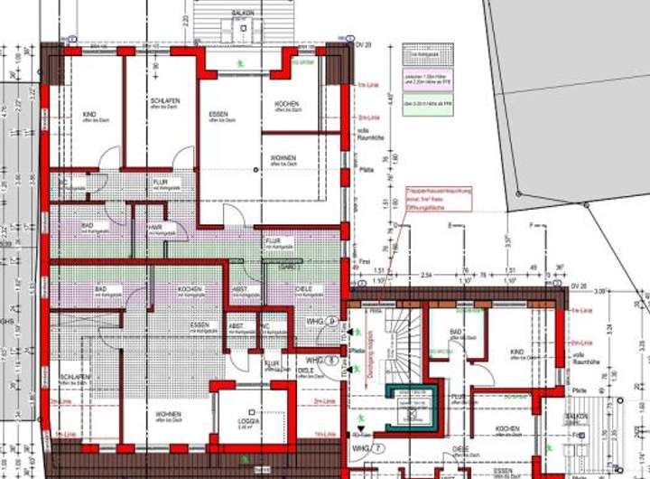
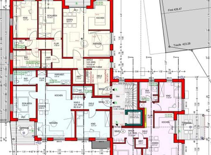
Die 9 Wohnungen teilen sich in drei Geschosse (Erdgeschoss, Obergeschoss und Dachgeschoss) auf.
Aufgrund der Lage im alten Dorfkern muss der Neubau mit einem traditionellen Satteldach erstellt werden.
Die gesamte genehmigte Wohnfläche beträgt ca. 797,66 m².
Diese teilt sich auf in folgende Wohnungen:
Wohnung Nr. 1: 3-Zimmer - ca. 76,86 m²
Wohnung Nr. 2: 3-Zimmer - ca. 77,56 m²
Wohnung Nr. 3: 3½-Zimmer - ca. 115,52 m²
Wohnung Nr. 4: 3-Zimmer - ca. 77,01 m²
Wohnung Nr. 5: 3-Zimmer - ca. 85,10 m²
Wohnung Nr. 6: 3½-Zimmer - ca. 115,52 m²
Wohnung Nr. 7: 3-Zimmer - ca. 70,22 m²
Wohnung Nr. 8: 2-Zimmer - ca. 67,39 m²
Wohnung Nr. 9: 3½-Zimmer - ca. 112,47 m²
Die genaue Raumaufteilung entnehmen Sie bitte beigefügten Grundrissplänen.
Gerne lassen wir Ihnen bei näherem Interesse detaillierte Unterlagen, Baugenehmigung etc. zukommen.
Die rechtskräftige Baugenehmigung ist im Kaufpreis enthalten.
Abrissobjekt mit Baugenehmigung für 797 m² Wfl. / 9 Wohnungen - Konstanz-Dingelsdorf
78465 Konstanz
Die vollständige Adresse der Immobilie erhalten Sie vom Anbieter.
Auf Karte anzeigen
Die vollständige Adresse der Immobilie erhalten Sie vom Anbieter.
Finanzierungszertifikat
In nur zwei Minuten zu Ihrem persönlichen Finanzierungszertifkat.
Infos
| Vermarktungsart | Kaufen |
|---|---|
| Grundstücksfläche | 763 m2 |
| Erschließung | Erschlossen |
Kosten
| Miete pro Jahr |
995.000 € |
|---|---|
| Provision |
3,57% inkl. 19% Mehrwertsteuer |
Finanzierungsrechner:
Kaufpreis:
600.000 €
Eigenkapital:
600.000 €
Monatliche Rate
0 €
Effektiver Jahreszins
0 %
Sollzinsbindung
10 Jahre
Beschreibung des Objekts
Lage
Dieses Abrissobjekt befindet sich zentraler Lage am Dorfplatz des beliebten Konstanzer Ortsteil "Dingelsdorf".
"Dingelsdorf" verfügt über kleinere Einkaufsmöglichkeiten und bietet einen hohen Freizeitwert mit seiner Lage am Bodensee und kurzen Wegen in die Natur.
Eine Bushaltestelle des öffentlichen Nahverkehrs liegt nur wenige Meter vom Projekt entfernt, die Konstanzer Innenstadt, der Bahnhof sowie die Universität etc. sind somit sehr gut erreichbar.
Sonstige Angaben
Der Energieausweis ist in Vorbereitung.
Das Objekt ist befristet für eine monatliche Kaltmiete von EUR 1.800,00 vermietet und kann ab Oktober / November 2025 oder nach Absprache bezugsfrei übergeben werden.