Auf dem hier zu veräußernden Grundstück im Zentrum von Welden steht noch ein älteres Abrißhaus.
Die Baugenehmigung für den Neubau eines Einfamilienhauses ist sehr weit Fortgeschritten und müsste vom Käufer nur zu Ende gebracht werden.
HIer ist bauen noch bezahlbar: Baugrundstück mit kleinem Abrißhäuschen Baugenehmigung in Vorber.
86465 Welden
Die vollständige Adresse der Immobilie erhalten Sie vom Anbieter.
Auf Karte anzeigen
Die vollständige Adresse der Immobilie erhalten Sie vom Anbieter.
Finanzierungszertifikat
In nur zwei Minuten zu Ihrem persönlichen Finanzierungszertifkat.
Infos
| Vermarktungsart | Kaufen |
|---|---|
| Grundstücksfläche | 420 m2 |
| Verfügbar ab | sofort. |
Kosten
| Miete pro Jahr |
175.000 € |
|---|---|
| Provision |
3,00 % inkl MwSt |
Finanzierungsrechner:
Kaufpreis:
600.000 €
Eigenkapital:
600.000 €
Monatliche Rate
0 €
Effektiver Jahreszins
0 %
Sollzinsbindung
10 Jahre
Beschreibung des Objekts
Lage
Absolut ruhige Lage an der Laugna.
Infrastruktur:
ca. 7 min. / ca. 7 km mit dem Auto zur BAB A8 München - Stuttgart (Anschluß Adelsried)
ca. 9 min. / ca. 9 Km mit dem Auto zur BAB A8 München - Stuttgart (Anschluß Zusamarshausen)
ca. 15 min. / ca. 20 km über BAB A8 nach Augsburg Nord
ca. 26 min. / ca. 27 km zum Hauptbahnhof Augsburg
ca. 40 min. / ca. 70km über BAB A8 nach München
Auch eine gute Busverbindung zwischen Augsburg und Welden ist gegeben.
Sonstige Angaben
Es freut uns sehr Ihr Interesse geweckt zu haben, bitte verwenden Sie für Ihre Anfrage das Kontaktformular (Anbieter kontaktieren).
Sicherlich haben Sie dafür Verständnis, dass wir ausschließlich Anfragen mit vollständigen Kontaktdaten, sprich, Name, Vorname, Anschrift und Telefonnummer, beantworten.
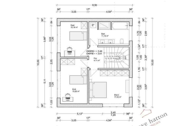
Grundriss
EFH_Eingabeplan1-EG
>
>
EFH _ Eingabeplan OG
>
>
EFH _ Laugnastrase 4_Welden _
>
>
EFH _ Laugnastrase 4_Welden _
>
>