Dieses gemütliche Haus verfügt über drei Wohnetagen, die durch ein zentrales Treppenhaus miteinander verbunden sind.
Im Erdgeschoss befindet sich eine Einliegerwohnung mit drei Zimmern, Küche, Duschbad und Zugang zum Garten mit einer teil-überdachten Terrasse. Auf dieser Ebene ist auch der Heizungsraum untergebracht.
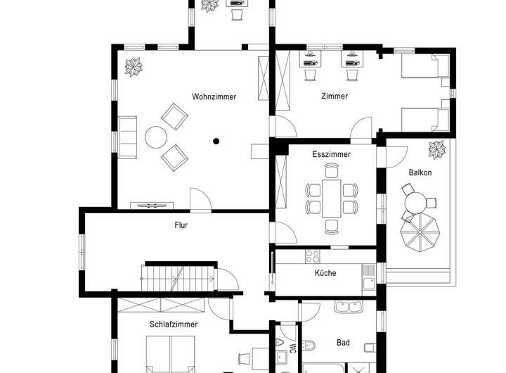
Im Obergeschoss befinden sich das Esszimmer mit Zugang zum Balkon, das Arbeitszimmer, ein großzügiger Wohnraum und eine Küche mit Einbauküche. Ein Gäste-WC und ein Tageslichtbad mit Badewanne, Dusche, Doppelwaschbecken und WC.
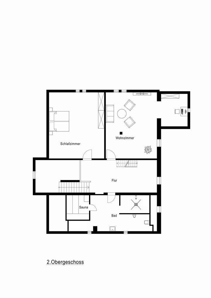
Im Dachgeschoss des Hauses befinden sich zwei weitere Zimmer, die Sauna und ein Duschbad.
Der Dachspitz bietet viel Stauraum und ist über eine feste Treppe erreichbar.
Unter dem Haus liegt der sehr große Gewölbekeller (100m²)
Eine Doppelgarage rundet das Angebot ab.
Das Haus wurde in Holzfachwerk-Bauweise errichtet und 1979 kernsaniert. Das Baujahr wird auf 1684 geschätzt.
Zum Schutz der Privatsphäre werden die Innenaufnahmen erst nach Bestätigung des Maklervertrages durch den Interessenten freigeschaltet.
Viel Charme - denkmalgeschütztes Fachwerkhaus
74182 Obersulm
Die vollständige Adresse der Immobilie erhalten Sie vom Anbieter.
Auf Karte anzeigen
Die vollständige Adresse der Immobilie erhalten Sie vom Anbieter.
Finanzierungszertifikat
In nur zwei Minuten zu Ihrem persönlichen Finanzierungszertifkat.
Infos
| Haustyp | Mehrfamilienhaus |
|---|---|
| Wohnfläche ca. | 341 m2 |
| Grundstücksfläche | 565 m2 |
| Bezugsfrei ab | nach Absprache |
| Zimmer | 9 |
| Garage/Stellplatz | Garage |
| Anzahl Garage/Stellplatz | 1 |
Kosten
| Kaufpreis |
499.000 € |
|---|---|
| Provision |
2,38 % inkl. ges. MwSt. 2,38 % Käuferprovision inkl. MwSt., zu bezahlen und fällig mit Beurkundung des notariellen Kaufvertrages. Der Immobilienmakler hat einen provisionspflichtigen Maklervertrag in gleicher Höhe mit dem Verkäufer abgeschlossen. |
Finanzierungsrechner:
Kaufpreis:
600.000 €
Eigenkapital:
600.000 €
Monatliche Rate
0 €
Effektiver Jahreszins
0 %
Sollzinsbindung
10 Jahre
Bausubstanz & Energieausweis
| Baujahr | 1684 |
|---|---|
| Letzte Sanierung | 1979 |
| Heizungsart | Zentralheizung |
| Energieausweis | laut Gesetz nicht erforderlich |
Beschreibung des Objekts
Ausstattung
Individuelle Ausstattungsmerkmale:
- großer Gewölbekeller
- Stadtbahnanschluss
- denkmalgeschütztes Haus
- Holzfenster mit Doppelisolierverglasung
- original Holztüren aus dem Baujahr
- Fußböden: Fliesen, Stein und Parkett
- Öl-Zentralheizung Bj. 2023 (vier Räume sind mit Fußbodenheizung, die anderen mit Heizkörper ausgestattet
- Kaminofen, gusseisern
- drei Bäder
- Sauna
- Elektrik bereits 3-adrig mit FI-Schalter
- Alarmanlage
- Doppelgarage auf dem Grundstück
- 100qm Gewölbekeller
- Garten mit Brunnen
Lage
Sülzbach gehört zu der Gemeinde Obersulm im Landkreis Heilbronn, die durch den Zusammenschluss der Teilorte Affaltrach, Sülzbach, Eichelberg, Eschenau, Weiler und Willsbach entstand.
In Sülzbach gibt es eine Poststelle, einen Stadtbahnanschluss und eine Pizzeria, die fußläufig erreichbar sind. Die verkehrstechnische Anbindung ist auch über die Nähe zum Weinsberger Kreuz gegeben.
Sonstige Angaben
Sämtliche Angebote der Volksbank Sulmtal eG sind freibleibend und basieren auf Informationen, die der Eigentümer erteilt hat; eine Haftung für deren Richtigkeit und Vollständigkeit kann deshalb nicht übernommen werden. Zwischenverkauf bzw. - Vermietung bleibt dem Eigentümer vorbehalten.
Bitte haben Sie Verständnis dafür, dass wir weiterreichende Informationen erst rausgeben können, wenn uns Ihre vollständige Adresse sowie E-Mail Adresse vorliegen.
Weitere Angebote finden Sie unter www.volksbank-sulmtal.de
Das Exposé des Objekts können wir Ihnen nur dann sofort zur Verfügung stellen, wenn Sie auf Ihr gesetzliches 14-tägiges Widerrufsrecht verzichten. Da eine Maklerprovision aber selbstverständlich nur dann anfällt, wenn Sie das angebotene Objekt später auch kaufen, bleibt die reine Zusendung des Exposés für Sie unverbindich und kostenfrei.
Grundriss
Grundriss EG
>
>
Grundriss 1. OG
>
>
Grundriss 2. OG
>
>
Adresse
74182 Obersulm
Interessante Orte
Preis- und Lageinformationen
Preistrend für Bestandsimmobilien in Obersulm