Mitten im Zentrum von Königsbach-Stein befindet sich das unter Denkmalschutz stehende historische Wohn- und Geschäftshaus aus dem Jahre 1790 mit alt eingesessener Gastwirtschaft.
Zum gesamten Anwesen gehört ein Innenhof, eine Scheune, Gewölbekeller, das Nebengebäude mit zwei weiteren Wohnungen sowie ein Wiesengrundstück.
Diese Immobilie bietet eine erstklassige Gelegenheit, für Liebhaber historischer und geschichtsträchtiger Gebäude.
Über der Gastwirtschaft befindet sich eine großzügig geschnittene Wohnung, die vom Pächter genutzt wird.
Beheizt wird die Immobilie mit Erdgas, die Heizung wurde im Jahr 1995 eingebaut.
Die Immobilie ist und ist wie folgt aufgeteilt.
Gasthaus:
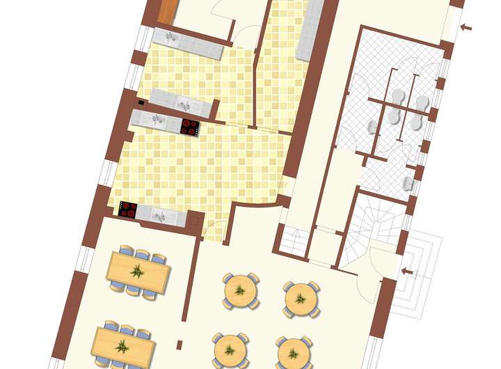
EG: , Gaststätte, Küche, Vorratsraum, Flur, Abstellraum, WC Damen, WC Herren, ca. 158 qm KM 1500,00 €
1. OG: , 4-Zimmer Pächterwohnung, ca. 157 qm, KM 405,00 €
Nebengebäude/Anbau:
EG: 3-Zimmerwohnung, ca.70 qm, KM 575,00 €
1. OG: 3-Zimmerwohnung, ca. 99 qm, KM 595,00 €
Das Anwesen befindet sich in einem gepflegten Zustand und ist komplett vermietet. .
Die Immobilie eignet sich ideal als langfristige Investitionsmöglichkeit. Die gepflegte Substanz des Gebäudes sowie die großzügige Grundstücksfläche bieten zudem Potenzial für zukünftige Entwicklungen Insgesamt handelt es sich um eine attraktive Immobilie mit vielfältigen Nutzungsmöglichkeiten in einer tollen Lage.
Für Liebhaber historischer Gemäuer...
75203 Königsbach-Stein
Die vollständige Adresse der Immobilie erhalten Sie vom Anbieter.
Auf Karte anzeigen
Die vollständige Adresse der Immobilie erhalten Sie vom Anbieter.
Finanzierungszertifikat
In nur zwei Minuten zu Ihrem persönlichen Finanzierungszertifkat.
Infos
| Haustyp | Besondere Immobilie |
|---|---|
| Wohnfläche ca. | 327 m2 |
| Grundstücksfläche | 1.405 m2 |
| Zimmer | 10 |
Kosten
| Kaufpreis |
745.000 € |
|---|---|
| Provision |
4,76 Bei Zustandekommen eines Kaufvertrages erhält die Thomas Bohner Immobilien GmbH eine Nachweis- bzw. Vermittlungsprovision von 4,76% inkl. gesetzl. Mehrwertsteuer aus dem Kaufpreis. Mit der Angabe meiner Kontaktdaten wie Telefonnummer und Email stimme ich zu |
| Mieteinnahmen | 3.466 € |
Finanzierungsrechner:
Kaufpreis:
600.000 €
Eigenkapital:
600.000 €
Monatliche Rate
0 €
Effektiver Jahreszins
0 %
Sollzinsbindung
10 Jahre
Bausubstanz & Energieausweis
| Baujahr | 1790 |
|---|---|
| Denkmalschutzobjekt | Ja |
| Objektzustand | Gepflegt |
| Heizungsart | Zentralheizung |
| Wesentliche Energieträger | Gas |
| Energieausweis | liegt vor |
| Energieausweistyp | Verbrauchsausweis |
| Energieverbrauchskennwert | 82,0 kWh/(m²*a) |
| Energieeffizienzklasse | C |
82,0
kWh/(m²*a)
Energieeffizienzklasse C
- A+
- A
- B
- C
- D
- E
- F
- G
- H
- 0
- 25
- 50
- 75
- 100
- 125
- 150
- 175
- 200
- 225
- >250
Beschreibung des Objekts
Lage
Das Wohn-/Geschäftshaus befindet sich im charmanten Stadtteil Königsbachs, einer ruhigen und familienfreundlichen Gegend mit einer Mischung aus Wohn- und Geschäftsgebäuden. Die Marktstrasse zeichnet sich durch ihre hübschen Fachwerkhäuser und kleinen Läden aus, die eine gemütliche Atmosphäre schaffen. In unmittelbarer Nähe befinden sich mehrere Cafés, Restaurants und Geschäfte, die eine gute Infrastruktur bieten. Der Stadtteil ist gut angebunden mit öffentlichen Verkehrsmitteln und verfügt über ausreichend Grünflächen für Erholung und Freizeitaktivitäten.
Königsbach ist eine lebendige Stadt in der Nähe von Pforzheim, die eine Mischung aus historischer Architektur und modernem Stadtleben bietet. Bekannt für ihre traditionellen Märkte und kulturellen Veranstaltungen, zieht die Stadt Einheimische und Besucher gleichermaßen an. Mit einer Vielzahl von Einkaufsmöglichkeiten, Restaurants und Freizeitaktivitäten gibt es in Königsbach immer etwas zu entdecken. Die Stadt verfügt zudem über gute Schulen und eine solide Infrastruktur, die das tägliche Leben erleichtern.
Die Region um Königsbach besticht durch ihre malerische Landschaft, die von Weinbergen, Wäldern und historischen Städten geprägt ist. Die Nähe zum Schwarzwald bietet zahlreiche Möglichkeiten für Outdoor-Aktivitäten wie Wandern, Radfahren und Skifahren im Winter. Kulturell interessante Orte wie das Schloss Königsbach oder das Museum für Kunst und Geschichte in Pforzheim sind nur einen Katzensprung entfernt. Die regionale Küche und die Weingüter machen die Gegend zu einem beliebten Ziel für Genießer und Urlauber.
Sonstige Angaben
Bei Zustandekommen eines Kaufvertrags erhält die Thomas Bohner Immobilien GmbH eine Nachweis- bzw. Vermittlungsprovision in Höhe von 4,76% (inkl. gesetzlicher Mehrwertsteuer) von Käuferseite dem Kaufpreis und ist bei notariellem Vertragsabschluss verdient und fällig.
Bitte richten Sie Ihre Anfrage schriftlich über das Kontaktformular im Internet an uns (bitte geben Sie Ihre vollständige Adresse mit Anschrift und Telefonnummer an). Dadurch erhalten Sie schnell sämtliche Informationen in einem ausführlichen Exposé und wir vereinbaren gerne einen Besichtigungstermin mit Ihnen. Wir machen darauf aufmerksam, dass unvollständige Anfragen nicht bearbeitet werden.
Unsere Angebote sind freibleibend und nur für den Empfänger bestimmt; Weitergabe verpflichtet zu Schadensersatz. Sämtliche Objektangaben stammen vom Verkäufer bzw. Dritten. Wir haben diese nicht überprüft und haften höchstens für Vorsatz oder grobe Fahrlässigkeit.
Grundriss
Grundriss Gastro
>
>
Grundriss OG
>
>
Grundriss Anbau EG
>
>
Grundriss OG Anbau
>
>
Adresse
75203 Königsbach-Stein
Interessante Orte
Preis- und Lageinformationen
Preistrend für Bestandsimmobilien in Königsbach-Stein