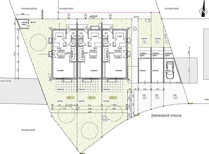
Für das Baugrundstück liegt bereits eine gültige Baugenehmigung zur Errichtung von 3 modernen Reihenhäusern inklusive Garagen vor.
Das Grundstück eignet sich ebenso für den Bau eines Einfamilienhauses oder zwei Doppelhaushälften.
Auf der aktuellen Plangrundlage verfügen die beiden Reihenendhäuser gem. genehmigtem Bauantrag jeweils über eine großzügige Wohnfläche von ca. 151 m². Zusätzlich wird im Untergeschoss aller drei Häuser eine Nutzfläche von jeweils rund 51 m² geschaffen. Das Reihenmittelhaus weist eine Wohnfläche von ca. 130 m² auf.
Die Erschließung der Grundstücke erfolgt vollständig über die Überkinger Straße.
Top-Lage in Hoheneck: Baugrundstück mit hohem Wohnwert zu verkaufen
Überkinger Str. 5,
71640 Ludwigsburg
Auf Karte anzeigen
Finanzierungszertifikat
In nur zwei Minuten zu Ihrem persönlichen Finanzierungszertifkat.
Infos
| Vermarktungsart | Kaufen |
|---|---|
| Grundstücksfläche | 875 m2 |
| Erschließung | Teilerschlossen |
| Grundflächenzahl (GRZ) | 0.35 |
| Geschossflächenzahl (GFZ) | 0.7 |
| Bebaubar nach | Bebauungsplan |
| Verfügbar ab | sofort |
Kosten
| Miete pro Jahr |
825.000 € |
|---|---|
| Provision | Nein |
Finanzierungsrechner:
Kaufpreis:
600.000 €
Eigenkapital:
600.000 €
Monatliche Rate
0 €
Effektiver Jahreszins
0 %
Sollzinsbindung
10 Jahre
Beschreibung des Objekts
Lage
Die Überkinger Straße befindet sich im beliebten Ludwigsburger Stadtteil Hoheneck und zeichnet sich durch ihre ruhige Wohnlage aus.
Infrastruktur und Anbindung: Die Anbindung an den öffentlichen Nahverkehr ist durch Buslinien gewährleistet, die eine schnelle Verbindung zum Ludwigsburger Stadtzentrum und umliegenden Gebieten ermöglichen. Für Autofahrer besteht eine gute Erreichbarkeit der Bundesstraßen B27 und B10, die weiterführende Verbindungen zur Autobahn A81 und in die Region Stuttgart bieten.
Bildungseinrichtungen: In Ludwigsburg gibt es ein vielfältiges Angebot an Bildungseinrichtungen, darunter zahlreiche Kindertagesstätten, Grundschulen sowie weiterführende Schulen, die von der Überkinger Straße aus gut erreichbar sind.
Freizeit und Erholung: Die Nähe zum Neckar und den umliegenden Grünflächen wie dem Favoritepark oder dem Blühenden Barock bieten vielfältige Möglichkeiten für Freizeitaktivitäten und Erholung im Freien.