Diese Immobilie bietet eine attraktive Gelegenheit für Käufer, die ein sanierungsbedürftiges Objekt mit großem Ausbaupotenzial suchen. Das 1939 erbaute Haus, ehemals eine Metzgerei mit angrenzenden Wohnflächen, steht auf einem großzügigen Grundstück von ca. 1.300 m². Mit einer Wohnfläche von ca. 235 m², verteilt auf 11 Zimmer auf drei Etagen, sowie einer zusätzlichen Nutzfläche von 45 m² und weiteren Ausbaureserven bietet das Haus viel Platz und Gestaltungsmöglichkeiten.
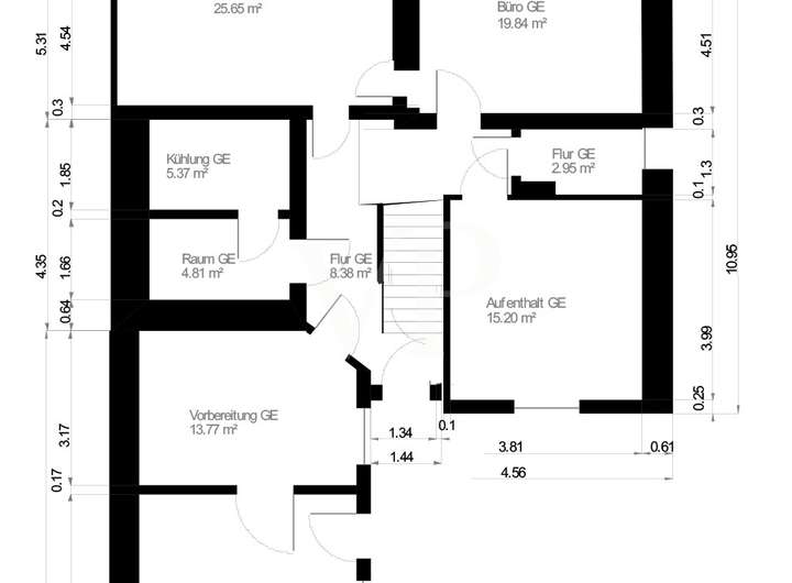
Im Erdgeschoss befinden sich die ehemalige Ladenfläche, welche gute als Büro-, Gewerbe- oder Wohnraum genutzt werden kann, sowie zwei weitere große Zimmer, ein kleiner Abstellraum, ein ehemaliger Kühlraum und zwei große Lagerräume im Anbau. Das zentrale Treppenhaus verbindet die Geschosse harmonisch miteinander. Im Obergeschoss befinden sich vier weitere Räume mit individueller Nutzungsmöglichkeit und ein Bad. Das Dachgeschoss beherbergt weitere vier Räume, von denen einer den Zugang zum Spitzboden ermöglicht, der weitere Ausbaureserven bietet und zusätzlichen Raum für kreative Nutzungskonzepte eröffnet.
Das Objekt wurde bereits teilweise modernisiert. So wurden u.a. die Kunststofffenster mit Isolierverglasung erneuert und das Dach einschließlich Neueindeckung saniert (2000). Im Jahr 2023 wurde mit einer Zwischensparrendämmung begonnen, die mit dem vorhandenen Material fertiggestellt werden könnte.
Das Grundstück bietet mit einem großen Innenhof und einem separaten Gartenbereich ausreichend Außenfläche zum Gestalten und Verweilen. Die Immobilie verfügt über ein großes Nebengebäude mit weiteren Lager- und Garagenflächen, was die praktische Nutzbarkeit zusätzlich unterstreicht.
Aufgrund der Größe und Flexibilität eignet sich die Immobilie für vielfältige Nutzungsmöglichkeiten - sei es als großes Einfamilienhaus, als Gewerbeobjekt oder eventuell für eine Umnutzung in ein Mehrfamilienhaus.
Die vorhandene Ofenheizung und der Rohbaucharakter weisen darauf hin, dass weitere Investitionen notwendig sind, um den heutigen Standards und individuellen Bedürfnissen gerecht zu werden.
Die Immobilie bietet jedoch eine solide Basis für kreative Köpfe, die sich ein individuelles Wohn- oder Arbeitsumfeld schaffen möchten.
Mit deutlichem Wertsteigerungspotential stellt dieses Objekt eine vielseitige Chance dar. Besichtigungstermine können nach Absprache vereinbart werden, um Interessenten die Möglichkeit zu geben, sich selbst ein Bild von den vielfältigen Möglichkeiten dieser besonderen Immobilie zu machen.
Großes Einfamilienhaus sucht Projektvollender - Sanierungsobjekt in guter Lage von Lauchhammer
01979 Lauchhammer
Die vollständige Adresse der Immobilie erhalten Sie vom Anbieter.
Auf Karte anzeigen
Die vollständige Adresse der Immobilie erhalten Sie vom Anbieter.
Finanzierungszertifikat
In nur zwei Minuten zu Ihrem persönlichen Finanzierungszertifkat.
Infos
| Haustyp | Einfamilienhaus |
|---|---|
| Etagenzahl | 3 |
| Wohnfläche ca. | 235 m2 |
| Nutzfläche | 45 m2 |
| Grundstücksfläche | 1.300 m2 |
| Zimmer | 11 |
| Schlafzimmer | 10 |
| Badezimmer | 1 |
| Garage/Stellplatz | Garage |
| Anzahl Garage/Stellplatz | 4 |
Kosten
| Kaufpreis |
69.000 € |
|---|---|
| Provision |
Käuferprovision beträgt 3,57 % (inkl. MwSt.) des beurkundeten Kaufpreises |
Finanzierungsrechner:
Kaufpreis:
600.000 €
Eigenkapital:
600.000 €
Monatliche Rate
0 €
Effektiver Jahreszins
0 %
Sollzinsbindung
10 Jahre
Bausubstanz & Energieausweis
| Baujahr | 1939 |
|---|---|
| Letzte Sanierung | 2000 |
| Bauphase | Haus fertig gestellt |
| Qualität der Austattung | Einfach |
| Heizungsart | Ofenheizung |
| Wesentliche Energieträger | Holz |
| Energieausweis | laut Gesetz nicht erforderlich |
Beschreibung des Objekts
Ausstattung
• großes EFH als Sanierungsobjekt mit großem Ausbaupotential
- ehem. Metzger-Betrieb mit Wohnflächen und Lagerräumen
• Baujahr 1939
• Wohnfläche ca. 235 m² (zzgl. 45m² Nutzfläche - ehem. Lager etc.)
- (ehem. Gewerbefläche ca. 117m² - ehem. Wohnfläche ca. 155m²)
• 11 Zimmer auf 3 Etagen
- zentrales Treppenhaus
- Erdgeschoss: 2 Zimmer, ehem. Ladenfläche, 2 große Lagerräume, 1 Abstellraum, 1 ehem. Kühlraum
- Obergeschoss: 4 Zimmer, Badezimmer
- Dachgeschoss: 4 Zimmer
- Spitzboden: Ausbaureserve
• Einzelöfen
• Begonnene Sanierungs- und Modernisierungsarbeiten
- Haus entkernt - Rohbau
- Kunststoff-Fenster (Doppelverglasung) gewechselt
- Dachsanierung inkl. Deckung 2000
- begonnener Zwischensparren-Dämmung
• Keller
- 2 Lagerräume
• Grundstücksfläche: ca. 1.300 m²
• separater Gartenbereich
• große Innenhoffläche
• Anbau mit zahlreichen Lagerflächen
• großes Nebengebäude
- mit Lager und Garagenflächen
Lage
Die Stadt Lauchhammer, mit ihren ca.14.500 Einwohnern, liegt im Landkreis Oberspreewald Lausitz, im Süden Brandenburgs, geografisch in der Niederlausitz. Die vergleichsweise junge Stadt erhielt erst am 05. Juli 1953 das Stadtrecht und entstand als Großgemeinde aus dem Zusammenschluss der Gemeinden Bockwitz, Lauchhammer, Mückenberg und Dolsthaida. Sowohl die Stadt selbst als auch die nähere Umgebung sind durch langjährige Bergbau- und Industrietätigkeit geprägt. Neben dem ehem. Bergbau und Brikettfabriken hat die Stadt eine lange Tradition im Kunstguss, welche den Ort weit über die Landesgrenzen hinaus bekannt gemacht hat und der Stadt den Beinamen "Kunstguss-Stadt" gibt.
Durch zahlreiche Eingemeindungen erstreckt sich das Stadtgebiet heute über mehr als 88 Quadratkilometer und besteht aus den Stadtteilen Lauchhammer-Mitte, Lauchhammer-Nord, Lauchammer-Süd, Lauchhammer-Ost und Lauchhammer-West sowie aus den Ortsteilen Kostebrau und Grünewalde.
Zwischen den einzelnen Stadt- und Ortsteilen liegt eine Vielzahl großer Wald- und Wiesenflächen, welche dem Ort einen besonderen Charme verleihen. Im Ortsteil Grünewalde liegt das Naherholungsgebiet Grünewalder Lauch, einem bedeutenden städtischen Naherholungsgebiet.
Der unmittelbare Anschluss der Stadt an das Lausitzer Seenland, dem nahen Senftenberger See sowie dem Bergheider See werden von Einwohnern und Besuchern sehr geschätzt.
Besonders durch die zentrale Lage im Städtedreieck Berlin-Dresden-Leipzig, dem direkten Anschluss an die B169 sowie der nahen Autobahn A13 ist Lauchhammer infrastrukturell gut angebunden. Der im Stadtteil "West" gelegene Bahnhof Lauchhammer bietet ebenfalls zahlreiche Fernverkehrsanbindungen.
Entfernungen in die nächst größeren Städte / Regionen:
- Dresden: 48km
- Leipzig: 103km
- Lausitzer Seenland (Senftenberg): 17km
- Berlin: 120km
- Spreewald: 45km
Sonstige Angaben
GELDWÄSCHE: Als Immobilienmaklerunternehmen ist die von Poll Immobilien GmbH nach § 2 Abs. 1 Nr. 14 und § 11 Abs. 1, 2 Geldwäschegesetz (GwG) dazu verpflichtet, bei der Begründung einer Geschäftsbeziehung die Identität des Vertragspartners festzustellen und zu überprüfen, bzw. sobald ein ernsthaftes Interesse an der Durchführung des Immobilienkaufvertrages besteht. Hierzu ist es erforderlich, dass wir nach § 11 Abs. 4 GwG die relevanten Daten Ihres Personalausweises festhalten (wenn Sie als natürliche Person handeln) – beispielsweise mittels einer Kopie. Bei einer juristischen Person benötigen wir eine Kopie des Handelsregisterauszugs, aus welchem der wirtschaftlich Berechtigte hervorgeht. Das Geldwäschegesetz sieht vor, dass der Makler die Kopien bzw. Unterlagen fünf Jahre aufbewahren muss. Als unser Vertragspartner haben Sie auch eine Mitwirkungspflicht nach § 11 Abs. 6 GwG.
HAFTUNG: Wir weisen darauf hin, dass die von uns weitergegebenen Objektinformationen, Unterlagen, Pläne etc. vom Verkäufer bzw. Vermieter stammen. Eine Haftung für die Richtigkeit oder Vollständigkeit der Angaben übernehmen wir daher nicht. Es obliegt daher unseren Kunden, die darin enthaltenen Objektinformationen und Angaben auf ihre Richtigkeit hin zu überprüfen. Alle Immobilienangebote sind freibleibend und vorbehaltlich Irrtümer, Zwischenverkauf- und Vermietung oder sonstiger Zwischenverwertung.
UNSER SERVICE FÜR SIE ALS EIGENTÜMER:
Planen Sie den Verkauf oder die Vermietung Ihrer Immobilie, so ist es für Sie wichtig, deren Marktwert zu kennen. Lassen Sie kostenfrei und unverbindlich den aktuellen Wert Ihrer Immobilie professionell durch einen unserer Immobilienspezialisten einschätzen. Unser bundesweites und internationales Netzwerk ermöglicht es uns, Verkäufer bzw. Vermieter und Interessenten bestmöglich zusammenzuführen.
Grundriss
Grundriss Erdgeschoss
>
>
Grundriss Obergeschoss
>
>
Grundriss Dachgeschoss
>
>
Grundriss Kellergeschoss
>
>
Adresse
01979 Lauchhammer
Interessante Orte
Preis- und Lageinformationen
Preistrend für Bestandsimmobilien in Lauchhammer