Zum Verkauf steht ein Grundstück mit einer Gesamtfläche von 542m², das ideale Voraussetzungen für die Realisierung eines hochwertigen Mehrfamilienhauses bietet. Die Fläche befindet sich in einem allgemeinen Wohngebiet und überzeugt mit vielseitigem Entwicklungspotenzial.
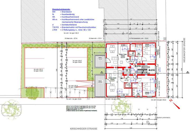
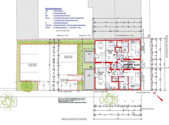
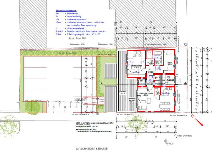
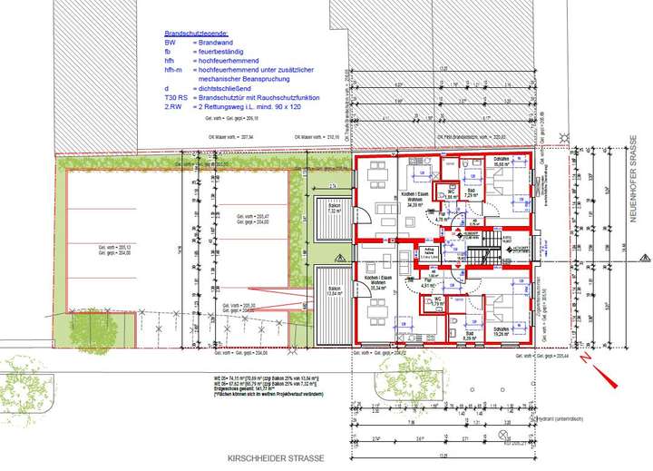
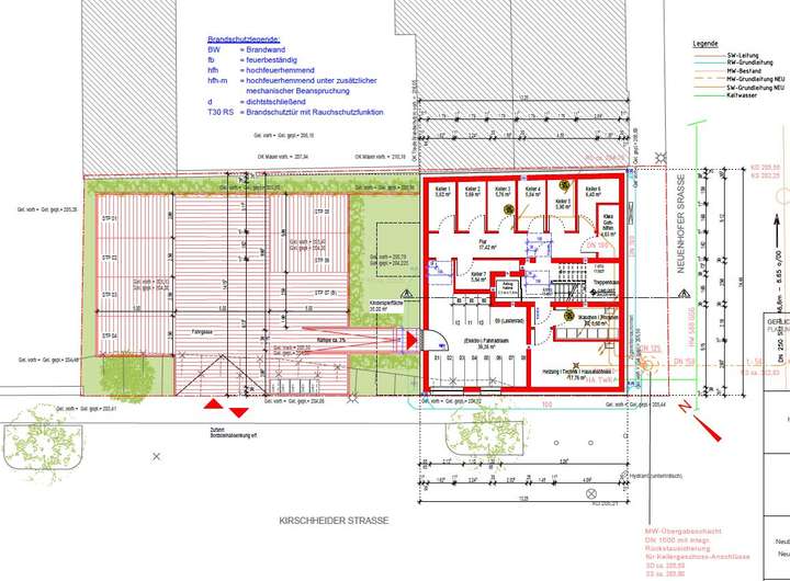
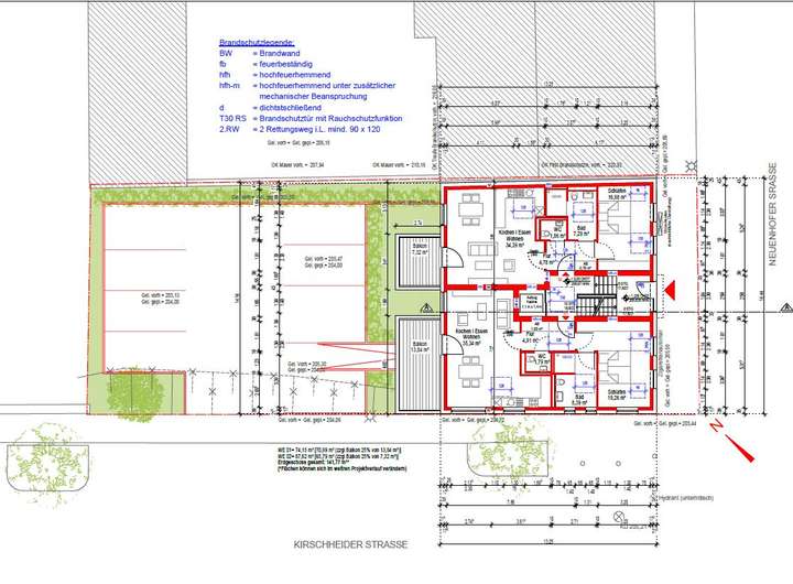
Ein qualifizierter Bauantrag wurde bereits eingereicht. Die Planung sieht den Bau eines modernen, voll unterkellerten Mehrfamilienhauses mit sieben Wohneinheiten vor: sechs großzügige Zwei-Zimmer-Wohnungen mit Balkon sowie ein exklusives Penthouse mit drei Zimmern und einer teilweise überdachten Dachterrasse. Die Architektur ist modern und klar strukturiert, die Grundrisse funktional und großzügig – ein Wohnkonzept, das zeitgemäßen Komfort und stilvolles Ambiente vereint. Die Wohnfläche von insgesamt 537,46m² teilt sich wie folgt auf: Erdgeschoss: WE01=74,15m², WE02=67,62m²; 1.Obergeschoss: WE03=74,15m², WE04=67,62m²; 2.Obergeschoss: WE05=74,15m², WE06=67,62m²; 3. Obergeschoss WE07=112,15m². Die genaue Aufteilung können Sie den beigefügten Grundrisszeichnungen entnehmen.
Ergänzt wird das Konzept durch sieben PKW-Stellplätze.
Die Liegenschaft befindet sich in leichter Hanglage nach hinten, was den Bewohnern einen schönen Ausblick gewährt.
Ein überzeugendes Gesamtpaket für Investoren, Bauträger und Eigennutzer – mit konkreter Planung und architektonisch anspruchsvollem Konzept.
Lassen Sie sich von den Möglichkeiten dieses attraktiven Grundstücks im Rahmen einer persönlichen Besichtigung überzeugen. Hierfür steht Ihnen Herr Florian Rossa jederzeit gerne zur Verfügung.
Höhscheid. Kapitalanlage: Baugrundstück mit Planung für ein hochwertiges Mehrfamilienhaus.
42657 Solingen
Die vollständige Adresse der Immobilie erhalten Sie vom Anbieter.
Auf Karte anzeigen
Die vollständige Adresse der Immobilie erhalten Sie vom Anbieter.
Finanzierungszertifikat
In nur zwei Minuten zu Ihrem persönlichen Finanzierungszertifkat.
Infos
| Vermarktungsart | Kaufen |
|---|---|
| Grundstücksfläche | 542 m2 |
| Erschließung | Erschlossen |
| Empfohlene Nutzung | Mehrfamilienhaus |
| Bebaubar nach | Bebauungsplan |
| Verfügbar ab | sofort |
Kosten
| Miete pro Jahr |
279.000 € |
|---|---|
| Provision |
3,57 % inkl. Mwst. |
Finanzierungsrechner:
Kaufpreis:
600.000 €
Eigenkapital:
600.000 €
Monatliche Rate
0 €
Effektiver Jahreszins
0 %
Sollzinsbindung
10 Jahre
Beschreibung des Objekts
Lage
Das zum Verkauf stehende Grundstück befindet sich in zentraler und gefragter Lage von Solingen-Höhscheid, einem Stadtteil, der sich durch seine hohe Wohnqualität und hervorragende Infrastruktur auszeichnet. Die Umgebung erfreut sich großer Beliebtheit – insbesondere bei Kapitalanlegern und Bauherren, die Wert auf eine nachhaltige Investition in einem attraktiven, gewachsenen Wohnumfeld legen.
Das Grundstück ist leicht erhöht gelegen an einer gut frequentierten Verkehrsachse mit sehr guter Anbindung an den öffentlichen Nahverkehr. Die andere Seite des Eckgrundstücks weist zu einer ruhigen Seitenstraße mit vorwiegender Einfamilienhausbebauung.
Die Solinger Innenstadt ist in wenigen Minuten erreichbar, ebenso die weiteren Stadtteile wie Ohligs, Gräfrath oder Wald. Überregionale Anbindungen über die A46 und A3 sind ebenfalls schnell zugänglich, was den Standort auch für Berufspendler interessant macht.
Das Umfeld ist geprägt von ansprechender, teils historisch geprägter Bebauung – insbesondere stilvolle Stadtvillen aus der Gründerzeit sowie gepflegte Ein- und Zweifamilienhäuser prägen das Straßenbild und verleihen der Lage einen charmanten Charakter.
In fußläufiger Nähe befinden sich sämtliche Einrichtungen des täglichen Bedarfs: Supermärkte, Bäckereien, Apotheken, Arztpraxen sowie Kindergärten und Schulen sorgen für eine komfortable Nahversorgung. Das nahegelegene Pilghauser Bachtal bietet darüber hinaus Erholung im Grünen und schafft einen attraktiven Freizeitwert direkt vor der Tür – ideal für Spaziergänge, Sport oder Familienausflüge.
Die Voraussetzungen für die Realisierung eines hochwertigen Mehrfamilienhauses sind an diesem Standort ideal: Das Grundstück verbindet zentrales, urbanes Wohnen mit einem angenehmen, wohnfreundlichen Umfeld – eine hervorragende Gelegenheit für zukunftsorientiertes Bauen in einer nachgefragten Lage Solingens.
Sonstige Angaben
Der Kaufpreis für die Immobilie beträgt 279.000,00 € zuzüglich der vom Käufer zu zahlenden Provision in Höhe von 3,57% inkl. gesetzl. Mehrwertsteuer. Wir sind vom Eigentümer allein beauftragt, Verhandlungen mit Interessenten zu führen.
Der Makler-Vertrag mit uns kommt durch schriftliche Vereinbarung oder durch die Inanspruchnahme unserer Maklertätigkeit auf der Basis des Objekt-Exposés und seiner Bedingungen zustande. Die Käufercourtage ist bei notariellem Vertragsabschluss verdient und fällig. Grunderwerbsteuer, Notar- und Gerichtskosten trägt der Käufer. Sollte das von uns nachgewiesene Objekt bereits bekannt sein, teilen Sie uns dies bitte unverzüglich mit. Die Weitergabe dieses Exposés an Dritte ohne unsere Zustimmung löst gegebenenfalls Courtage- bzw. Schadensersatzansprüche aus.
Kleingedrucktes:
Alle Angaben basieren ausschließlich auf Informationen, die uns von unserem Auftraggeber übermittelt wurden. Wir übernehmen keine Gewähr für die Vollständigkeit, Richtigkeit und Aktualität dieser Angaben. Zwischenverkauf bleibt vorbehalten.
Grundriss
Bauantragsplanung EG
>
>
Bauantragsplanung 1. OG
>
>
Bauantragsplanung 2. OG
>
>
Bauantragsplanung 3. OG
>
>
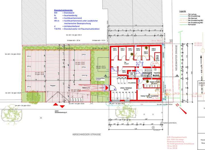
Bauantragsplanung UG
>
>