Ob als großzügiges Familiendomizil, für Generationenwohnen oder die Kombination von Wohnen und Arbeiten. Die Möglichkeiten sind so vielfältig wie die Ideen, die Sie mitbringen. Es ist der perfekte Ort, um Ihren individuellen Wohntraum zu gestalten und langfristig ein Zuhause zu schaffen, das Ihre Handschrift trägt.
Historie: 1961 umgebaut als Haus mit Scheune erfuhr das Objekt einen großen Umbau im Jahr 1984. Hier wurde die ehemalige Scheune zu Garagen und Abstellräumen umgebaut. 1992 erfolgte ein weiterer großer Umbau des Anwesens. Hier wurden die Garagen erhalten, im Erdgeschoss sowie Dachgeschoss wurde Wohnraum erschaffen und der Balkon angebaut.
Das Haus kann als großes Einfamilienhaus oder auch gut mit zwei Familien bewohnt werden. Die Wohnfläche von 261 qm kann in zwei Objekte mit jeweils 129 qm und 132 qm Wohnfläche aufgeteilt werden. Aktuell ist das Haus mit Durchgängen miteinander verbunden und wird über eine Zentrale Ölheizung mit Solarthermie für Warmwasseraufbereitung beheizt. Im ganzen Haus sind doppelisolierverglaste Kunststofffenster verbaut.
Der 1992 ausgebaute Bereich verfügt neben einer Fußbodenheizung auch über einen Holzofen sowie ein neues Badezimmer.
Im Untergeschoss parken Sie bequem Ihre Fahrzeuge in einer von drei Garagen. Hier befinden sich auch die Technikräume, Abstellräume sowie ein Naturkeller. Auf dieser Ebene kann noch weiterer Wohnraum geschaffen werden.
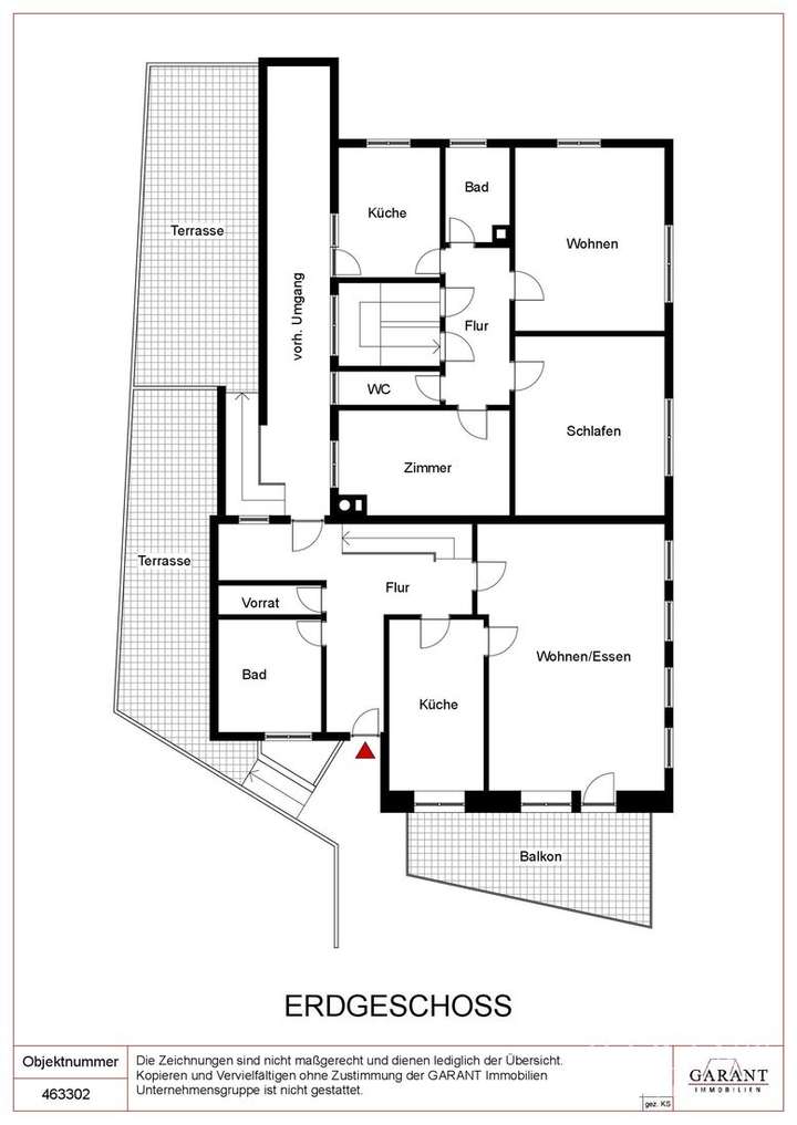
Das Erdgeschoss zeichnet sich mit dem hellen Wohnbereich aber auch mit Zimmern zur freien Nutzung aus. Hier erwartet Sie zusätzlich einen tollen Balkon über der Garage und eine Terrasse hinter dem Haus sowie lichtdurchflutete und großzügige Räume.
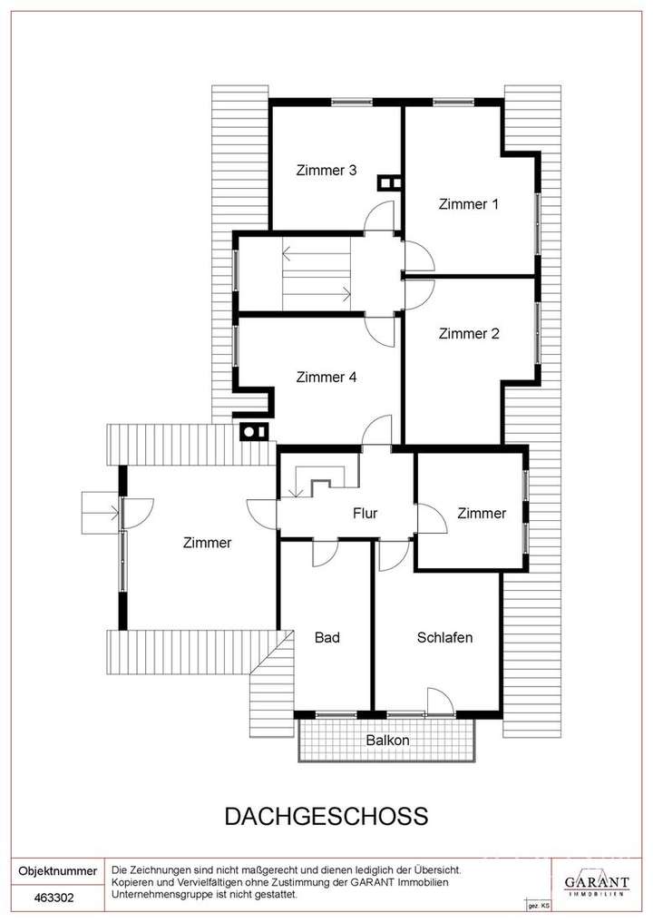
Im Dachgeschoss befinden sich Schlafzimmer, ein weiteres modernes Badezimmer sowie Räume die ebenfalls als Kinderzimmer oder Sonstigem genutzt werden kann. Ein Balkon rundet diese Etage ab.
Als weiteres Highlight bietet das Haus einen Garten mit einer Größe von ca. 129 qm. Dieser kann perfekt zum Anpflanzen von Gemüse genutzt werden.
Das Haus der vielen Möglichkeieten! Drei Garagen - Garten - viel Sonne
72160 Horb am Neckar
Die vollständige Adresse der Immobilie erhalten Sie vom Anbieter.
Auf Karte anzeigen
Die vollständige Adresse der Immobilie erhalten Sie vom Anbieter.
Finanzierungszertifikat
In nur zwei Minuten zu Ihrem persönlichen Finanzierungszertifkat.
Infos
| Haustyp | Mehrfamilienhaus |
|---|---|
| Etagenzahl | 2 |
| Wohnfläche ca. | 262 m2 |
| Nutzfläche | 95 m2 |
| Grundstücksfläche | 479 m2 |
| Bezugsfrei ab | nach Vereinbarung |
| Zimmer | 12 |
| Badezimmer | 3 |
| Garage/Stellplatz | Außenstellplatz |
| Anzahl Garage/Stellplatz | 1 |
Kosten
| Kaufpreis |
439.000 € |
|---|---|
| Provision |
3,57 % inkl. ges. MwSt. Die Maklercourtage für den Käufer beträgt 3 % aus dem Kaufpreis zuzüglich der gesetzlichen MwSt., somit gesamt 3,57 %. |
Finanzierungsrechner:
Kaufpreis:
600.000 €
Eigenkapital:
600.000 €
Monatliche Rate
0 €
Effektiver Jahreszins
0 %
Sollzinsbindung
10 Jahre
Bausubstanz & Energieausweis
| Baujahr | 1984 |
|---|---|
| Letzte Sanierung | 2018 |
| Bauphase | Haus fertig gestellt |
| Objektzustand | Gepflegt |
| Qualität der Austattung | Normal |
| Heizungsart | Zentralheizung |
| Wesentliche Energieträger | Öl |
| Energieausweis | liegt vor |
| Energieausweistyp | Verbrauchsausweis |
| Energieverbrauchskennwert | 107,1 kWh/(m²*a) |
| Energieeffizienzklasse | D |
107,1
kWh/(m²*a)
Energieeffizienzklasse D
- A+
- A
- B
- C
- D
- E
- F
- G
- H
- 0
- 25
- 50
- 75
- 100
- 125
- 150
- 175
- 200
- 225
- >250
Beschreibung des Objekts
Ausstattung
Die Aufteilung des Hauses gestaltet sich wie folgt:
Untergeschoss: Drei Garagen, ein Autoabstellplatz, zwei Kellerräume, Waschküche, Heizraum, Naturkeller
Erdgeschoss: Zwei Wohn- und Essbereiche mit Balkon, zwei Küchen, zwei Badezimmer, separate Toilette, Vorratsraum, Zugänge zur Terrasse
Dachgeschoss: Badezimmer mit Dusche und Wanne, Schlafzimmer, zwei Kinderzimmer, vier weitere Zimmer zur individuellen Nutzung, Zugang zum Dachboden (Stauraum)
Highlights:
* Fußbodenheizung
* doppelisolierverglaste Kunststofffenster
* Solarthermie für Warmwasseraufbereitung
* separater Garten mit Gewächshaus für Gemüseanbau
* drei Garagen und ein Stellplatz
Vom gesamten Grundstück mit einer Größe von ca. 479 qm entfallen ca. 129 qm auf den separater Garten.
Lage
In ruhiger und sonniger Lage befindet sich dieses Haus in einem Teilort von Horb am Neckar. Kindergarten und Grundschule sowie verschiedene Einkaufsmöglichkeiten befinden sich im Ort. Zur nächsten Stadt sind es weniger wie 5min Fahrt mit dem Auto. Die Autobahn A81 Stuttgart-Singen erreichen Sie in wenigen Minuten.
Sonstige Angaben
Energieverbrauchsausweis Energiekennwert: 107,11 kWh/(qm*a) Energieeffizienz: Klasse D (kl.130) Heizung: Zentralheizung mit Öl Baujahr laut Energieausweis: 1984
1 x Stellplatz außen, 3 x Garage
Grundriss
Untergeschoss
>
>
Erdgeschoss
>
>
Dachgeschoss
>
>
Adresse
72160 Horb am Neckar
Interessante Orte
Preis- und Lageinformationen
Preistrend für Bestandsimmobilien in Horb am Neckar