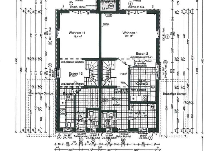
Zum Verkauf kommt ein Zweifamilienhaus, das 2014 als Dan-Fertighaus in einer ruhigen Seitenstraße in zentrumsnaher Lage von Kreuztal erbaut wurde. Die Wohnfläche verteilt sich auf 2 Haushälften mit jeweils Erd- und Dachgeschoss. In der rechten, eigengenutzten Hälfte mit einer Wohnfläche von ca. 118 m² stehen Ihnen im Erdgeschoss ein großzügiges Wohn/Esszimmer mit Zugang zur Terrasse, eine Diele, ein Gäste-WC und ein großer Abstellraum sowie ein Hauswirtschaftsraum zur Verfügung. Die moderne offene Einbauküche ist im Kaufpreis enthalten. Im Dachgeschoss erwartet Sie ein Schlafzimmer mit angrenzendem Ankleidezimmer, ein großzügiges Studiozimmer und ein Badezimmer. Die linke, vermietete Haushälfte mit einer Wohnfläche von ca. 85 m² verfügt im Erdgeschoss über Eingangsdiele, Küche, Gäste-WC und Wohn/Esszimmer mit Zugang zur Terrasse. Im Dachgeschoss stehen Ihnen Schlafzimmer, Kinderzimmer und Badezimmer zur Verfügung. Hier wurde aus Diskretionsgründen auf Innenaufnahmen verzichtet. Zu beiden Haushälften gehört jeweils eine angebaute Garage. Das Grundstück ist komplett und geschmackvoll angelegt, die Terrassen und der Garten sind nach Süden ausgerichtet. Die Immobilie befindet sich in sehr gepflegtem, neuwertigen Zustand und kann nach Absprache übernommen werden.
Neuwertiges Zweifamilienhaus in ruhiger, zentraler Lage von Kreuztal!
57223 Kreuztal
Die vollständige Adresse der Immobilie erhalten Sie vom Anbieter.
Auf Karte anzeigen
Die vollständige Adresse der Immobilie erhalten Sie vom Anbieter.
Finanzierungszertifikat
In nur zwei Minuten zu Ihrem persönlichen Finanzierungszertifkat.
Infos
| Haustyp | Mehrfamilienhaus |
|---|---|
| Wohnfläche ca. | 196 m2 |
| Grundstücksfläche | 523 m2 |
| Bezugsfrei ab | nach Vereinbarung |
| Zimmer | 8 |
| Schlafzimmer | 4 |
| Badezimmer | 2 |
| Garage/Stellplatz | Garage |
| Anzahl Garage/Stellplatz | 2 |
Kosten
| Kaufpreis |
499.000 € |
|---|---|
| Provision |
3,57 % inkl. ges. MwSt. |
Finanzierungsrechner:
Kaufpreis:
600.000 €
Eigenkapital:
600.000 €
Monatliche Rate
0 €
Effektiver Jahreszins
0 %
Sollzinsbindung
10 Jahre
Bausubstanz & Energieausweis
| Baujahr | 2014 |
|---|---|
| Bauphase | Haus fertig gestellt |
| Objektzustand | Neuwertig |
| Heizungsart | Zentralheizung |
| Wesentliche Energieträger | Solarheizung, Umweltwärme |
| Energieausweis | liegt vor |
| Energieausweistyp | Verbrauchsausweis |
| Energieverbrauchskennwert | 103,9 kWh/(m²*a) |
| Energieeffizienzklasse | D |
103,9
kWh/(m²*a)
Energieeffizienzklasse D
- A+
- A
- B
- C
- D
- E
- F
- G
- H
- 0
- 25
- 50
- 75
- 100
- 125
- 150
- 175
- 200
- 225
- >250
Beschreibung des Objekts
Ausstattung
Individuelle Ausstattungsmerkmale:
- Gartenhaus
- Markise
- Photovoltaik
- Einbauküche
- Ankleidezimmer
- barrierefreies Bad
- Hauswirtschaftsraum
Sonstige Angaben
VERBRAUCHERINFO
1. Maklerleistung ist der Nachweis der Gelegenheit zum Abschluss eines Vertrages bzw. Vermittlung eines Vertrages über eine Immobilie gegen die Courtagezahlungspflicht des Kunden
2. Unternehmer,Anschrift,Beschwerdeadressat
LBSi NordWest, Himmelreichallee 40, 48149 Münster, Tel:0251/973233-997, eMail:info@lbsi-nw.de
GF:Martin Englert, Volker Goldbeck
3. Es besteht ein Widerrufsrecht
4. Weitere Infos: verbraucherinfo.lbsi-nordwest.de
Adresse
57223 Kreuztal
Interessante Orte
Preis- und Lageinformationen
Preistrend für Bestandsimmobilien in Kreuztal