Zum Verkauf steht ein außergewöhnlich schönes und sonniges Baugrundstück mit ca. 1.039 m Fläche in Pienzenau, einem idyllischen Ortsteil der Gemeinde Bruck im südlichen Landkreis Ebersberg.
Das Grundstück liegt in absolut ruhiger Wohnlage - ideal für Familien, die naturnah leben und dennoch eine gute Anbindung an München wünschen.
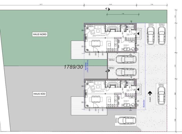
Die Bebauung richtet sich nach dem gültigen Bebauungsplan, den wir bei Interesse gerne zur Verfügung stellen. Darüber hinaus wurde bereits ein Bauvorbescheid beantragt.
Dieser eröffnet verschiedene Bebauungsmöglichkeiten – von der Errichtung zweier Einfamilienhäuser bis hin zu einem großzügigen Doppelhaus.
Sowohl bei einer Bebauung mit einem EFH oder einem Doppelhaus steht Ihnen unser Partner Regnauer zur Verfügung.
Weitere Infos gerne auf Anfrage.
Finanzierungszertifikat
In nur zwei Minuten zu Ihrem persönlichen Finanzierungszertifkat.
Infos
| Vermarktungsart | Kaufen |
|---|---|
| Grundstücksfläche | 520 m2 |
| Empfohlene Nutzung | Doppelhaus, Einfamilienhaus |
| Bebaubar nach | Bebauungsplan |
| Verfügbar ab | sofort |
Kosten
| Miete pro Jahr |
489.000 € |
|---|---|
| Provision |
3,57 inkl. MwSt. Der Immobilienmakler hat im Zuge der neuen Gesetzgebung der Provisionsverteilung auch einen provisionspflichtigen Maklervertrag mit dem Verkäufer abgeschlossen. |
Finanzierungsrechner:
Kaufpreis:
600.000 €
Eigenkapital:
600.000 €
Monatliche Rate
0 €
Effektiver Jahreszins
0 %
Sollzinsbindung
10 Jahre
Beschreibung des Objekts
Lage
Pienzenau liegt in malerischer Landschaft zwischen sanften Hügeln, Feldern und Wäldern - ein perfekter Ort für alle, die ländliche Ruhe mit Nähe zur Stadt verbinden möchten. Die Region bietet ein hohes Maß an
Lebensqualität und Freizeitwert.
Die Stadt Grafing mit ca. 13.000 Einwohnern befindet sich nur ca. 3 km entfernt und bietet eine hervorragende Infrastruktur: Einkaufsmöglichkeiten, Ärzte, Apotheken sowie sämtliche Schulen (Grundschule, Mittelschule, Gymnasium) und Kindergärten. Ein beliebter Spruch unter Einheimischen lautet nicht umsonst:
„Nach Grafing geht man."
Der S-Bahnhof Grafing Bahnhof (S4/S6) ist nur wenige Autominuten entfernt und auch per MVV-Bus erreichbar. Von dort besteht ein 20-Minuten-Takt nach München, in den Hauptverkehrszeiten sogar ein
10-Minuten-Takt. Die Regionalbahn fährt in ca. 15 Minuten zum Münchner Ostbahnhof und in 20
Minuten nach Rosenheim.
Auch über die B304 oder die nahegelegene A94 ist München sehr gut erreichbar - ein Pluspunkt für
Berufspendler.