Diese charmante 2-ZKB-Etagenwohnung mit Balkon, befindet sich in einem gepflegten Gebäude/MFH aus dem Jahr 1971, mit insgesamt 8 Etagen.
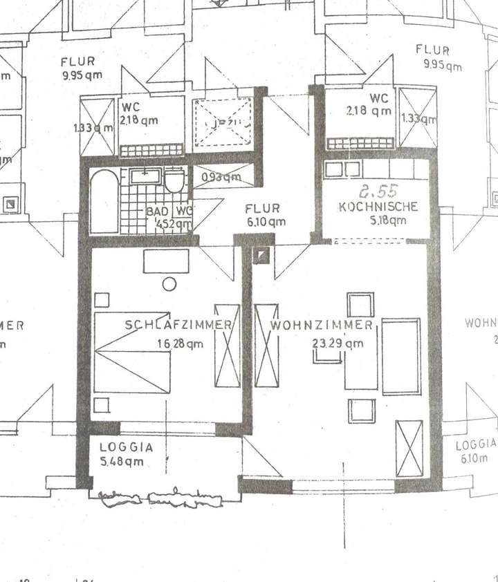
Die angebotene Wohnung mit einer Wohnfläche von 57,35 m², liegt in der 8. Etage mit Lift und garantiert beste Aus-/Fernsicht. Die Aufteilung der Wohnung ist zweckmäßig und sinnvoll mit interessanten Gestaltungsmöglichkeiten. Ein gut dimensionierter West-Balkon, lädt zum Verweilen im Freien ein.
Die sehr beliebte Wohnanlage wurde im Laufe der Jahre ständig aktualisiert/modernisiert, letztmalig 2024 u.a. mit einem neuen , modernen Personenaufzug etc.. Hier ist alles im Lot, hier gibt es auch keinen Renovierungstau.
Die Wohnung selbst ist sofort bezugsfertig, wobei man einige Bereiche wie z.B. Bodenbeläge u. Bad etc. auch optimieren kann.
Die Energieeffizienzklasse C sorgt für niedrige Energiekosten.
Zur Immobilie kann wahlweise ein kostenpflichtiger Tiefgargenstellplatz mit erworben werden.
Ein Keller steht für zusätzlichen Stauraum zur Verfügung.
In mehreren ebenerdig erreichbaren Räumen, können Fahrräder sicher abgestellt werden.
Insgesamt präsentiert sich die Immobilie als ordentlich, ideal für Singles oder Paare auf der Suche nach einem gemütlichen Zuhause.
Auch die allgemeine Infrastruktur ist optimal.
Das bezahlbare Immobilienangebot ist für den Eigenbedarf ideal, aber auch für den Kapitalanleger äußerst interessant.
Beste Aussichten, 2-ZKB-Whg. mit Balkon, in beliebtem Wohnumfeld von Haunstetten
86179 Augsburg
Die vollständige Adresse der Immobilie erhalten Sie vom Anbieter.
Auf Karte anzeigen
Die vollständige Adresse der Immobilie erhalten Sie vom Anbieter.
Finanzierungszertifikat
In nur zwei Minuten zu Ihrem persönlichen Finanzierungszertifkat.
Infos
| Wohnungskategorie | Etagenwohnung |
|---|---|
| Etage | 8 von 8 |
| Wohnfläche ca. | 57 m2 |
| Bezugsfrei ab | kurzfristig |
| Zimmer | 2 |
| Schlafzimmer | 1 |
| Badezimmer | 1 |
| Garage/Stellplatz | Tiefgarage |
| Anzahl Garage/Stellplatz | 1 |
Kosten
| Kaufpreis |
229.200 € |
|---|---|
| Hausgeld |
307 € |
| Preis für Garage/Stellplatz | 14.200 € |
| Provision |
2,75 % Die Maklerprovision wird direkt mit der notariellen Beurkundung fällig |
Finanzierungsrechner:
Kaufpreis:
600.000 €
Eigenkapital:
600.000 €
Monatliche Rate
0 €
Effektiver Jahreszins
0 %
Sollzinsbindung
10 Jahre
Bausubstanz & Energieausweis
| Baujahr | 1971 |
|---|---|
| Letzte Sanierung | 2021 |
| Objektzustand | Gepflegt |
| Qualität der Austattung | Normal |
| Heizungsart | Zentralheizung |
| Wesentliche Energieträger | Öl |
| Energieausweis | liegt vor |
| Energieausweistyp | Verbrauchsausweis |
| Energieverbrauchskennwert | 95,5 kWh/(m²*a) |
| Energieeffizienzklasse | C |
95,5
kWh/(m²*a)
Energieeffizienzklasse C
- A+
- A
- B
- C
- D
- E
- F
- G
- H
- 0
- 25
- 50
- 75
- 100
- 125
- 150
- 175
- 200
- 225
- >250
Beschreibung des Objekts
Ausstattung
Das voll unterkellerte Mehrfamilienhaus aus dem Baujahr 1971, wurde in massiver Bauweise erstellt.
Im Laufe der Jahre sind an dem Objekt regelmäßige Sanierungen vorgenommen worden. So wurden u.a. auch die Heizung, Balkone, Lift, Fenster oder auch das Flachdach etc. aktualisiert bzw. erneuert.
Die Wohnung selbst ist in einem ordentlichen Gesamtzustand, wobei es sinnvoll sein dürfte, Böden und Bad etc. zu sanieren.
Lage
Die Etagenwohnung befindet sich in dem sehr beliebten Augsburger Stadtteil Haunstetten
Haunstetten ist bekannt für seine hohe Wohn-/Lebensqualität. Diese resultiert u.a. von den vielen Geschäften, Banken/Sparkassen, Kindergärten, Schulen, Restaurants und öffentliche Verkehrsmitteln, aber auch viel Grün, welche von den Bewohnern fußläufig oder in wenigen Fahrminuten erreicht werden kann.
Gerade auch Münchenpendler schätzen den Wohnstandort, wegen seiner guten Anbindung an die Landeshauptstadt.
Augsburg selbst ist die drittgrößte Stadt in Bayern und hat eine reiche Geschichte, die bis ins 2. Jahrhundert zurückreicht. Die Stadt ist bekannt für ihre vielen historischen Gebäude und Denkmäler, wie zum Beispiel das Rathaus und die Fuggerei, die älteste Sozialsiedlung der Welt. Augsburg bietet auch eine vielfältige Kulturszene mit Theatern, Museen und Konzertsälen.
Die Region rund um Augsburg ist von einer malerischen Landschaft geprägt, die perfekt für Naturliebhaber ist. Die nahegelegenen Alpen bieten zahlreiche Möglichkeiten für Outdoor-Aktivitäten wie Wandern, Skifahren und Klettern. Die Region ist auch für ihre traditionelle bayerische Küche und ihre Brauereien bekannt, die Besucher aus der ganzen Welt anziehen. Insgesamt ist Augsburg und seine Umgebung ein attraktiver Ort zum Leben und Entdecken.
Sonstige Angaben
Unsere Einwertung,
-ein von der Lage
-dem interessanten Standort
-der Wohnung selbst etc.,
sehr attraktives Immobilienangebot.
Beachten auch, dass wir eine weitere, exakt gleiche Wohnung, im 3. OG des MFH anbieten.
Weiter interessiert, weitere Fragen oder ein Besichtigungswunsch?
Ja, dann kontaktieren Sie gerne unseren Herrn Hackel (0172 - 9945704).
Wir sind stets bemüht, unsere Angebote aktuell und fehlerfrei zu halten. Für die Richtigkeit der Angaben kann jedoch keine Gewähr übernommen werden, da wir die Angaben vom Eigentümer oder Dritten einholen. Irrtümer vorbehalten.
Grundriss
Grundriss-Whg.-1250403-80jpg
>
>
Adresse
86179 Augsburg
Interessante Orte
Preis- und Lageinformationen
Preistrend für Bestandsimmobilien in Haunstetten