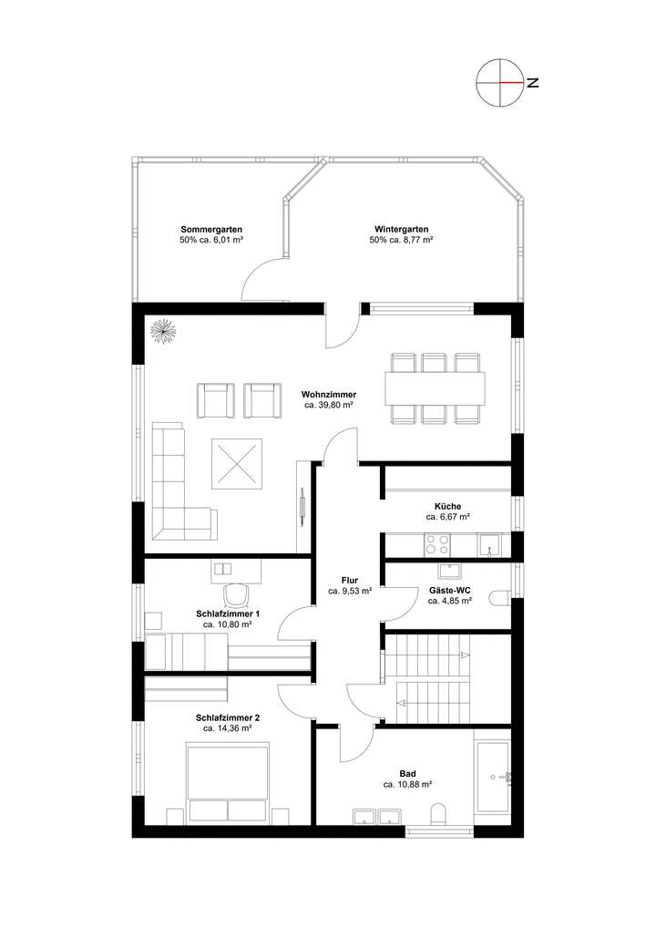
Engel und Völkers freut sich, Ihnen dieses tolle, freistehende Haus in bester Lage im Ostseebad Binz präsentieren zu dürfen. Großzügige 160 m² Wohnfläche bieten ausreichend Platz, verteilt über ein Souterrain und ein Erdgeschoss zum komfortablen Wohnen. Durch die erhöhte Lage ist dieses gerade grundsanierte und schicke Haus ein Hinkucker und auch die unmittelbare Lage zum Schmachter See spricht für sich. Über den Haupteingang betreten Sie das Haus und kommen vom Eingangsbereich sowohl in das Souterrain als auch in das erste Geschoss. Im Souterrain finden Sie das Büro, ein Schlafzimmer, Duschbad und eine voll ausgestattete Küche. Der Hauswirtschaftsraum mit Waschmaschine, Trockner und der neuen Heizungsanlage sowie der daneben liegende Lagerraum sind fast gleich groß. Ein Highlight ist in dieser Etage die finnische Sauna mit Dusche und Ruhemöglichkeit. Ebenfalls von dieser Etage betreten Sie die Garage, die neben vier weiteren Außenstellplätzen ausreichend Platz für Ihren Fuhrpark bietet. In der ersten Etage gehen vom Flur ein großes Badezimmer, zwei Schlafräume, ein Gäste WC, eine zweite Küche und das Wohnzimmer ab. Das Hauptbadezimmer ist mit einer begehbaren ebenerdigen Regendusche und hochwertiger Badkeramik ausgestattet und das Gäste-WC mit Toilette und Waschtisch. Beide Räume haben Tageslicht und sind mit modernen Fliesen gestaltet. Die praktisch geschnittene Küche ist im eleganten zeitlosen Design gehalten und es sind alle notwendigen Geräten vorhanden. Das große Wohnzimmer in L- Form bietet Ihnen neben einer gemütlichen Couchlandschaft genug Platz für einen großen Esstisch, an dem Sie Ihre Familie oder viele Freunde bewirten können. Von hier treten Sie über bodentiefe Fenster in den Wintergarten, von dem es sich wunderbar auf den nur wenige Schritte entfernten Schmachter See und den Sonnenuntergang schauen lässt. Auch in dem daneben liegenden Kaltwintergarten lässt es sich wunderbar relaxen und Sonne tanken. Von hier kommen Sie über ein großes Fensterelement in den gepflegten Garten im geschützten Innenhof. Besonders für Hundeliebhaber ist dieses Objekt sehr gut geeignet, da Sie von hier die neu angelegten Wanderwege rund um den Schmachter See unmittelbar begehen und die Ruhe genießen können. Aber auch im quirligen Leben des Ostseebades Binz sind Sie in wenigen Gehminuten, ebenso wie beim öffentlichen Nahverkehr. Dieses Objekt besticht durch seine Großzügigkeit, Lage und dem Topsanierungszustand und ist als Erst- und Zweitwohnsitz geeignet. Überzeugen Sie sich selbst.
Einfamilienhaus am Schmachter See - Ostseebad Binz
18609 Binz
Die vollständige Adresse der Immobilie erhalten Sie vom Anbieter.
Auf Karte anzeigen
Die vollständige Adresse der Immobilie erhalten Sie vom Anbieter.
Finanzierungszertifikat
In nur zwei Minuten zu Ihrem persönlichen Finanzierungszertifkat.
Infos
| Haustyp | Einfamilienhaus |
|---|---|
| Etagenzahl | 2 |
| Wohnfläche ca. | 160 m2 |
| Grundstücksfläche | 762 m2 |
| Zimmer | 5 |
| Badezimmer | 2 |
| Anzahl Garage/Stellplatz | 3 |
Kosten
| Kaufpreis |
850.000 € |
|---|---|
| Provision |
3.57 % inkl. gesetzl. MwSt. |
Finanzierungsrechner:
Kaufpreis:
600.000 €
Eigenkapital:
600.000 €
Monatliche Rate
0 €
Effektiver Jahreszins
0 %
Sollzinsbindung
10 Jahre
Bausubstanz & Energieausweis
| Baujahr | 1980 |
|---|---|
| Letzte Sanierung | 2021 |
| Objektzustand | Neuwertig |
| Wesentliche Energieträger | Gas |
| Energieausweis | liegt vor |
| Energieausweistyp | Bedarfsausweis |
| Energieverbrauchskennwert | 187,1 kWh/(m²*a) |
| Energieeffizienzklasse | F |
187,1
kWh/(m²*a)
Energieeffizienzklasse F
- A+
- A
- B
- C
- D
- E
- F
- G
- H
- 0
- 25
- 50
- 75
- 100
- 125
- 150
- 175
- 200
- 225
- >250
Beschreibung des Objekts
Ausstattung
Einbauküche
Seeblick
Fliesen
PVC
Lage
Die Insel Rügen ist mit ihren 926 Quadratkilometern die größte Insel Deutschlands. Nicht nur die fast zweitausend Sonnenstunden pro Jahr machen diese Insel zu einem der beliebtesten Urlaubsziele Deutschlands. Die meisten Urlauber verbinden mit dieser schönen Insel zurecht die weißen, weiten, feinsandigen Strände und die historische Bäderarchitektur in den östlichen Badeorten Rügens. Besonders bekannt dafür ist das Ostseebad Binz. Prächtige Fassaden, liebevoll restauriert, säumen den Weg bis hin zur Seebrücke, die fast 300 Meter ins Meer ragt. Die hier angebotene Wohnung ist fußläufig ca. 400 m vom Ortskern und dem Strand entfernt und liegt in einer ruhigen Nebenstraße. Die Gemeinde selbst und auch ihre Umgebung rund um die Binzer Bucht zählen heute mit zu den gefragtesten Wohnlagen an der Ostsee. Einkaufsmöglichkeiten für den täglichen Bedarf sind in unmittelbarer Nähe vorhanden. Der historische Ortskern mit seiner Flaniermeile und die fast drei Kilometer lange Strandpromenade des Ostseebades lassen keine Wünsche offen. Zahlreiche Restaurants, Cafés und Boutiquen laden zum Verweilen und Shoppen ein. Ausflugsschiffe verbinden Binz mit anderen Badeorten und bieten Fahrten zu den zahlreichen Sehenswürdigkeiten der Insel an. Vom Objekt hat man einen schnellen Zugang zu allen Annehmlichkeiten des Ostseebades Binz und zum öffentlichen Nahverkehr und liegt trotzdem ruhig.
Sonstige Angaben
Der Makler-Vertrag mit uns und/oder unserem Beauftragten kommt durch die Bestätigung der Inanspruchnahme unserer Maklertätigkeit in Textform zustande, wie z.B. insbesondere die Unterschrift des Suchkundenvertrages und/oder des Objekt-Exposés. Die Höhe der Courtage richtet sich nach den ab dem 23.12.2020 in Kraft getretenen gesetzlichen Regelungen zur Teilung der Maklercourtage. Hiernach wird die Courtage regelmäßig für beide Parteien (Eigentümer:in und Käufer:in) in Höhe von 3 % zuzüglich Umsatzsteuer in jeweils geltender Höhe, derzeit also insgesamt 3,57 % des Kaufpreises einschließlich Umsatzsteuer bei notariellem Vertragsabschluss verdient und fällig. Die Höhe der Bruttocourtage unterliegt einer Anpassung bei Steuersatzänderung. Grunderwerbssteuer, Notar- und Gerichtskosten trägt der Käufer:in.
Grundriss
Erdgeschoss
>
>
Souterrain
>
>
Adresse
18609 Binz
Interessante Orte
Preis- und Lageinformationen
Preistrend für Bestandsimmobilien in Binz