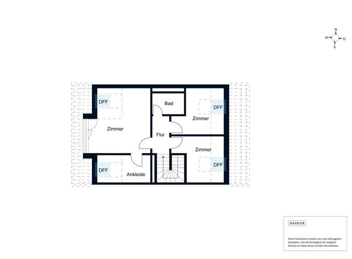
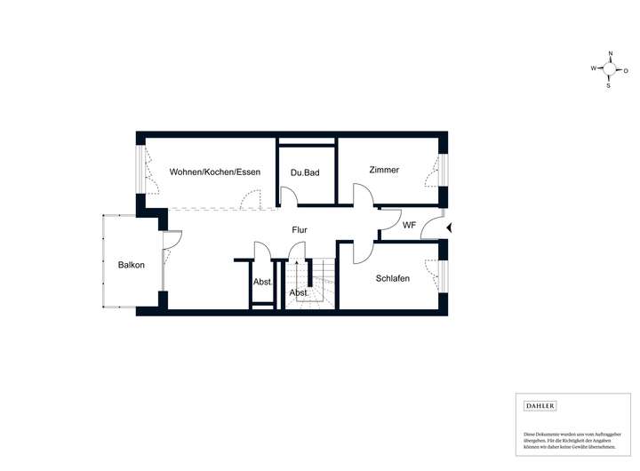
Die Maisonettewohnung 5.4 befindet sich im 1. Obergeschoss und Dachgeschoss auf der Nordseite im "Haus 5". Sie hat damit Fenster zu drei Himmelsrichtungen - eine Besonderheit, die die Wohnung hell & lichtdurchflutet macht. Der separate Zugang zur Wohnung erfolgt von Osten über eine Art Laubengang. Auf der unteren Etage befindet sich der mit fast circa 44 Quadratmeter sehr großzügige offene Küchen-, Ess- und Wohnbereich. Zwei der fünf Schlafzimmer (nach Osten ausgerichtet) sowie das Wannenbad und der Hauswirtschaftsraum befinden sie ebenfalls im 1. Obergeschoss. Vor dem Essbereich liegt der etwa 10 Quadratmeter große Westbalkon mit Sonne satt und tollem Blick in den Gemeinschaftsgarten. Die Treppe hoch unter dem Satteldach sind die drei anderen Schlafzimmer und das Duschbad. Das westliche Schlafzimmer (etwa 27,5 Quadratmeter) hat eine große Gaube und ein Dachflächenfenster, das östliche circa 14 Quadratmeter-Zimmer zwei Dachflächenfenster. Die Kinder könnten hier oben ihr eigenes kleines Reich haben! Das Kellerabteil zur Wohnung befindet sich ebenfalls in "Haus 5".
Die Eigentumswohnung befindet sich in einem zweigeschossigen Neubau-Quartier, bestehend aus fünf Wohnhäusern, welche 2021 fertiggestellt wurden. Insgesamt befinden sich 19 Wohnungen, 4 Gewerbeeinheiten in dem Quartier, das über eine Tiefgarage mit 28 Stellplätzen und 73 Abstellflächen für Fahrräder verfügt. Geprägt ist das Projekt von einem großzügigen Gemeinschaftsgarten, der auf vielfältige Weise genutzt werden kann. Die Neubauten wurden in dem hohen Energiestandard "KfW-Effizienzhaus 40" errichtet. Die Eigentumswohnung verfügt über eine Fußbodenheizung sowie eine kontrollierte Lüftung mit Wärmerückgewinnung.
Energieeffiziente Neubau-Maisonettewohnung mit Terrasse
12524 Berlin
Die vollständige Adresse der Immobilie erhalten Sie vom Anbieter.
Auf Karte anzeigen
Die vollständige Adresse der Immobilie erhalten Sie vom Anbieter.
Finanzierungszertifikat
In nur zwei Minuten zu Ihrem persönlichen Finanzierungszertifkat.
Infos
| Wohnungskategorie | Maisonette |
|---|---|
| Etage | 1 von 1 |
| Wohnfläche ca. | 150 m2 |
| Zimmer | 6 |
| Schlafzimmer | 5 |
| Badezimmer | 2 |
| Garage/Stellplatz | Tiefgarage |
| Anzahl Garage/Stellplatz | 1 |
Kosten
| Kaufpreis |
749.000 € |
|---|---|
| Preis für Garage/Stellplatz | 30.000 € |
| Provision |
3,57 % inkl. gesetzlicher MwSt. bezogen auf den Kaufpreis |
Finanzierungsrechner:
Kaufpreis:
600.000 €
Eigenkapital:
600.000 €
Monatliche Rate
0 €
Effektiver Jahreszins
0 %
Sollzinsbindung
10 Jahre
Bausubstanz & Energieausweis
| Baujahr | 2021 |
|---|---|
| Objektzustand | Neuwertig |
| Qualität der Austattung | Gehoben |
| Heizungsart | Fußbodenheizung |
| Wesentliche Energieträger | KWK fossil |
| Energieausweis | liegt vor |
| Energieausweistyp | Bedarfsausweis |
| Energieverbrauchskennwert | 18,0 kWh/(m²*a) |
| Energieeffizienzklasse | A |
18,0
kWh/(m²*a)
Energieeffizienzklasse A
- A+
- A
- B
- C
- D
- E
- F
- G
- H
- 0
- 25
- 50
- 75
- 100
- 125
- 150
- 175
- 200
- 225
- >250
Beschreibung des Objekts
Ausstattung
• 6 Zimmer
• 5 Schlafzimmer
• Echtholzparkettböden
• Fußbodenheizung
• Einbauküche
• Entlüftung inkl. Wärmerückgewinnung
• 3-fach Verglasung
• Elektrischer Sonnenschutz
• Gegensprechanlage
• Hauswirtschaftsraum
• Balkon
• Gemeinschaftsgarten
• Solarpanele auf dem Dach
• Tiefgaragenstellplatz á 30.000 € (optional)
• Separater Wohnungseingang Haus in Haus Feeling
Lage
Altglienicke liegt im Südosten Berlins und gehört zum wasserreichsten und grünsten Bezirk Berlins: Treptow-Köpenick. Insbesondere die landschaftliche und architektonische Vielfalt machen diesen Ortsteil zu einer äußerst begehrten Wohnlage. Der nahegelegene Müggelsee als größtes stehendes Gewässer der Stadt, die Flüsse Dahme und Spree sowie Berlins höchste Erhebung, die Müggelberge, zeigen, dass Großstadtleben durchaus vereinbar ist mit Natur, Ursprünglichkeit und Wohnen in großzügiger Weiträumigkeit. Durch seine zahlreichen Freizeitaktivitäten und die Nähe zum neuen Hauptstadtflughafen BER, sowie die Ansiedlung mehrerer internationaler Großkonzerne (u.a. Tesla, Amazon, Mercedes-Benz, Allianz), ist Grünaus Wohnqualität stetig gestiegen. Besonders junge Familien, die die kinderfreundliche und naturbelassene Lage zu schätzen wissen, zieht es in den letzten Jahren in den südöstlichen Teil der Hauptstadt. Die Lage verbindet Ruhe, Natur und Idylle mit allen Vorzügen der Großstadt.
In der Nähe befinden sich Einkaufsmöglichkeiten für den täglichen Bedarf, Kindertagesstätten, Schulen, Ärzte sowie diverse Restaurants mit deutscher und internationaler Küche. Durch den nahegelegenen S-Bahnhof Grünau ist man optimal an den öffentlichen Linienverkehr angebunden. Über die B 96a hat man mit dem Auto eine direkte Anbindung in die Berliner Innenstadt. So lässt sich Arbeiten in der Stadt und Leben in der Natur beispiellos verbinden.
Adresse
12524 Berlin
Interessante Orte
Preis- und Lageinformationen
Preistrend für Bestandsimmobilien in Altglienicke (Treptow)