Die aufwändig ab 2023 modernisierte und soeben fertiggestellte Anlage umfasst ein Wohnhaus mit insgesamt ca. 243 m² Wohnfläche verteilt auf die Hauptwohnung mit ca. 206 m² und die ebenerdige Einliegerwohnung mit ca. 37 m², eine Reithalle mit angrenzenden Stallungen (5 Boxen), einen separaten Stall (4 Boxen), Garagen, ein großes Carport, einen großen Außenreitplatz mit Flutlichtbeleuchtung, eingezäunte Wiesen, Sandpaddocks uvm.
Nach der Modernisierung inklusive aller Leitungen entspricht das ursprünglich 1980 gebaute Haus den KFW-70-Vorgaben, inklusive Photovoltaikanlage, wassergeführtem Kamin, Wärmepumpe und Fenster mit 3-fach-Verglasung.
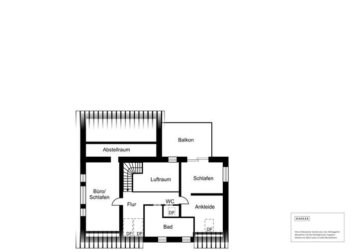
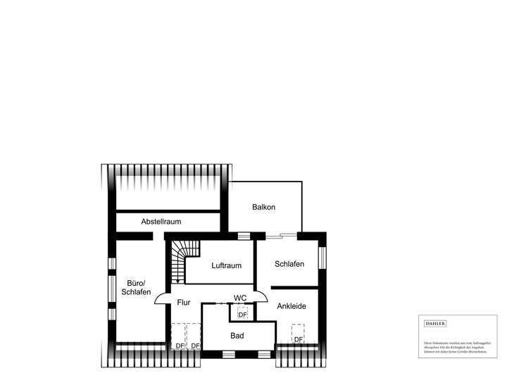
Die Anlage bietet ideale Vorraussetzungenfür Profireiter mit einem exklusiven Kundenstamm oder auch für die private Pferdehaltung, wenn man die Ruhe und das Zusammenleben mit den Pferden genießen möchte, ohne dabei auf Komfort und top Trainingsbedingungen zu verzichten. Das Haus ist modern, hochwertig und gemütlich ausgestattet. So erschließt sich die Hauptwohnung von Norden über einen Flur mit einem Gäste-WC und Zugang zu einer Waschküche. Zum Süden hin öffnet sich der großzügige Wohn-, Ess- und Küchenbereich mit hochwertigen Einbauten und einem Kamin. Diverse Stahlträger, sichtbares Mauerwerk sowie eine Stahltreppe sorgen für ein loftartiges Ambiente. Im Dachgeschoss stehen zwei großzügige Zimmer, ein Balkon zur Gartenseite, ein Ankleidebereich und ein luxuriöses Badezimmer mit Wanne, Dusche und separatem WC zur Verfügung.
Die ebenerdige Einliegerwohnung bietet einen hellen Wohn- und Schlafraum mit Kücheneinbauten und ein modernes Duschbad.
Hochwertig modernisierte Reitanlage in Versmold-Loxten
33775 Versmold
Die vollständige Adresse der Immobilie erhalten Sie vom Anbieter.
Auf Karte anzeigen
Die vollständige Adresse der Immobilie erhalten Sie vom Anbieter.
Finanzierungszertifikat
In nur zwei Minuten zu Ihrem persönlichen Finanzierungszertifkat.
Infos
| Haustyp | Einfamilienhaus |
|---|---|
| Wohnfläche ca. | 243 m2 |
| Grundstücksfläche | 39.061 m2 |
| Zimmer | 4 |
| Schlafzimmer | 3 |
| Badezimmer | 2 |
| Anzahl Garage/Stellplatz | 6 |
Kosten
| Kaufpreis |
2.350.000 € |
|---|---|
| Provision |
3,57 % inklusive der gesetzlichen MwSt. bezogen auf den Kaufpreis |
Finanzierungsrechner:
Kaufpreis:
600.000 €
Eigenkapital:
600.000 €
Monatliche Rate
0 €
Effektiver Jahreszins
0 %
Sollzinsbindung
10 Jahre
Bausubstanz & Energieausweis
| Baujahr | 1980 |
|---|---|
| Objektzustand | Saniert |
| Qualität der Austattung | Gehoben |
| Heizungsart | Wärmepumpe |
| Wesentliche Energieträger | Strom |
| Energieausweis | liegt vor |
| Energieausweistyp | Bedarfsausweis |
| Energieverbrauchskennwert | 35,0 kWh/(m²*a) |
| Energieeffizienzklasse | A |
35,0
kWh/(m²*a)
Energieeffizienzklasse A
- A+
- A
- B
- C
- D
- E
- F
- G
- H
- 0
- 25
- 50
- 75
- 100
- 125
- 150
- 175
- 200
- 225
- >250
Beschreibung des Objekts
Ausstattung
Wohnhaus:
• großzügige offenen Wohnküche
• EG Fliesen mit Fußbodenheizung
• OG Vinylboden Holzoptik inkl. Fußbodenheizung
• wassergeführter Kamin
• überdachte Terrasse hinter dem Haus,
• freie Terrasse vor dem Haus
• Badezimmer inkl. Dusche, Sauna und Badewanne
• Schlafzimmer mit Ankleidezimmer und eigener Dachterrasse
•Einliegerwohnung mit separaten Zugang
• 3-4 Stellplätze im Carport inkl. Technikräume
Reithalle:
• Pferdeboxen mit Paddock (Sand inkl. Dränage)
• beheizte Tränken
• Heuboden
• überdachte Fläche für Mistcontainer direkt an der Halle
• Aufenthaltsraum/ Sattelkammer inkl. Küche und Fenster mit Fußbodenheizung
• Gäste WC
• Waschraum inkl. Dusche
• Doppelgarage
• Futterkammer
• Waschplatz inkl. Solarium
• Reithalle ca. 35 x 17 m
• Beregnungsanlage
• Reithallenspiegel an der kurzen Seite
• Soundanlage
Außenanlage:
• großer Außenplatz inkl. Flutlicht
• Druckentwässerung
• 4 separat eingezäunte Wiesen (Poda Zaunanlage)
• Elektrisches Tor
• komplett eingezäunte Anlage
• Geräteschuppen und Teichanlage
• Photovoltaik 29,3 KW mit 10 KW Speicher
Lage
Mitten im Städtedreieck Münster, Bielefeld und Osnabrück liegt die idyllische Kleinstadt Versmold. Der Flughafen Münster/Osnabrück ist in ca. einer Stunde erreichbar, überregionale Angebundenheit bietet die nahegelegene Autobahn BAB A33. Das direkte Umfeld ist landwirtschaftlich geprägt und bietet mit seiner schönen Landschaft insbesondere Pferdeliebhabern viele Möglichkeiten für Outdoor-Aktivitäten und Reittouren. Das benachbarte Münsterland, bekannt als "Pferdeland", stellt für Reitsportbegeisterte ein wahres Paradies dar. Mit nur ca. 15 km Entfernung zum Deutschen Olympiade-Komitee für Reiterei (DOKR) und vielen renommierten Reittrainern in direkter Nähe, ist Versmold ein idealer Standort für Reitsportler.
Grundriss
Erdgeschoss
>
>
Obergeschoss
>
>
Adresse
33775 Versmold
Interessante Orte
Preis- und Lageinformationen
Preistrend für Bestandsimmobilien in Versmold