Das Einfamilienhaus aus dem Baujahr 2008 verbindet höchste Ansprüche an Qualität und Funktionalität. Es wurde von dem bekannten Lüneburger Architekten Carl Peter von Mansberg geplant und in massiver Bauweise realisiert. Herr von Mansberg wurde in seiner Arbeit von Mies van der Rohe inspiriert und ist bekannt für seine Aussage „Die Grundstruktur (des Hauses) sollte eine klare, ordnende sein. Chaos gibt es genug.“ Diesem Gedanken folgte er, als er im Austausch mit den jetzigen Eigentümern das Haus entwickelte.
Das Haus inspiriert durch klare Linien und durchdachte Sichtachsen. Die Formensprache zeichnet sich durch zurückhaltende Gediegenheit aus. Dies gilt auch für die zahlreichen maßgefertigten Einbauten. Das Gebäude wurde für eine mehrköpfige Familie erbaut und erstreckt sich über drei großzügige Ebenen. Es bietet vielfältige Annehmlichkeiten für ein komfortables Familienleben und die Möglichkeit, von zu Hause aus zu arbeiten. Der Grundriss kann zu diesem Zweck variabel genutzt werden.
Die hellen, lichtdurchfluteten Räume sind durchgehend mit elektrisch betriebenen Rollläden ausgestattet. Mit neun Zimmern, sowie Nebenräumen und weiteren großzügigen Flächen bietet das Haus viel Raum. Das hochwertig ausgebaute Dachgeschoss ermöglicht weite Blicke in die Natur. Die Ausrichtung des Hauses wurde so geplant, dass Sonnenaufgang und Sonnenuntergang erlebbar sind.
Der gärtnergepflegte Garten mit fünf Terrassen hat zahlreiche gemütliche Rückzugsorte mit sonnigen und schattigen Plätzen zu jeder Tageszeit. Er kann flächendeckend automatisch beregnet werden.
Die Hausfassaden wurden mit einem hochwertigen, geregelten Klinkerverband und dezenten Reliefs gestaltet.
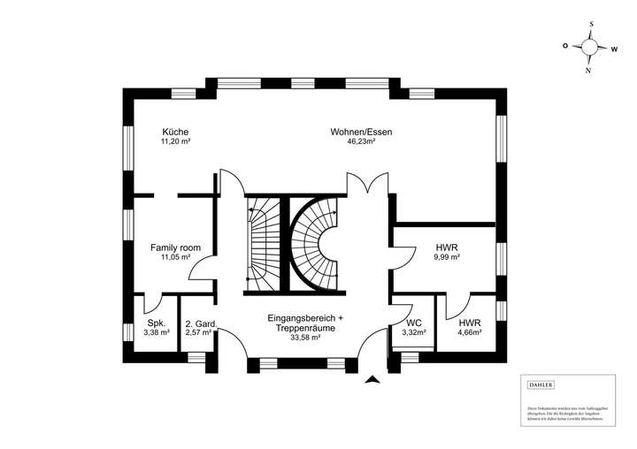
Das Haus ist so konzipiert, dass es ohne großen Aufwand in zwei Doppelhaushälften geteilt werden könnte. Zwei separate Eingänge und zwei Treppenhäuser sind vorhanden, die schon jetzt die Abläufe im Haus vereinfachen und vielfältige Optionen der Nutzung erlauben.
Exklusive Stadtvilla: klare Architektur, moderne Eleganz und steuerlichen Optionen durch Teilbarkeit
21339 Lüneburg
Die vollständige Adresse der Immobilie erhalten Sie vom Anbieter.
Auf Karte anzeigen
Die vollständige Adresse der Immobilie erhalten Sie vom Anbieter.
Finanzierungszertifikat
In nur zwei Minuten zu Ihrem persönlichen Finanzierungszertifkat.
Infos
| Haustyp | Einfamilienhaus |
|---|---|
| Etagenzahl | 3 |
| Wohnfläche ca. | 316 m2 |
| Grundstücksfläche | 900 m2 |
| Zimmer | 9 |
| Schlafzimmer | 5 |
| Badezimmer | 3 |
| Garage/Stellplatz | Außenstellplatz |
| Anzahl Garage/Stellplatz | 3 |
Kosten
| Kaufpreis |
0 € |
|---|---|
| Provision |
3,57 % inkl. MwSt. bezogen auf den beurkundeten Kaufpreis |
Finanzierungsrechner:
Kaufpreis:
600.000 €
Eigenkapital:
600.000 €
Monatliche Rate
0 €
Effektiver Jahreszins
0 %
Sollzinsbindung
10 Jahre
Bausubstanz & Energieausweis
| Baujahr | 2008 |
|---|---|
| Objektzustand | Gepflegt |
| Heizungsart | Fußbodenheizung |
| Wesentliche Energieträger | Gas |
| Energieausweis | liegt vor |
| Energieausweistyp | Verbrauchsausweis |
| Energieverbrauchskennwert | 40,2 kWh/(m²*a) |
| Energieeffizienzklasse | A |
40,2
kWh/(m²*a)
Energieeffizienzklasse A
- A+
- A
- B
- C
- D
- E
- F
- G
- H
- 0
- 25
- 50
- 75
- 100
- 125
- 150
- 175
- 200
- 225
- >250
Beschreibung des Objekts
Ausstattung
_Massivhaus mit einem klaren Klinkerverband
_Drei geräumige, hochwertig gebaute Dachgauben mit eingebauten Rollläden in allen Fenstern
_Zwei Bäder im Obergeschoss, Duschbad im Dachgeschoss, Gäste-WC
_Hochwertiges, freistehendes Stahl-Glas-Terrassendach
_Eingebaute elektrische Rollläden in allen Fenstern der Ost-, Süd- und Westfassade, einzeln und zentral schaltbar, auch programmierbar
_Gegensprechanlage zu den Haustüren mit jeweils 2 Sprechstationen im Erdgeschoss und Obergeschoss
_Alarmanlage mit Haustüren- und Fenstersicherung im Erdgeschoss und Obergeschoss, 4 Kontroll- und Steuerungseinheiten
_LAN-Anschlüsse in jedem Zimmer
_Glasfaseranschluss ist vorhanden
_Flächendeckende automatische Beregnungsanlage im Garten
_LOTUS-Kaminofen mit Specksteinverkleidung
_Solvis Max Heizanlage mit Solarthermie
Lage
_Lüneburg verbindet die Vorteile der nahegelegenen Metropole Hamburg mit den sehr angenehmen Lebens- und Wohnbedingungen einer Universitätsstadt mit eigener geschichtsträchtiger Identität.
_Zentrale und trotzdem ruhige Lage im begehrten Lüneburger Stadtteil Oedeme. Unmittelbare Nachbarschaft zu Feld und Wald und dem idyllischen Hasenburger Mühlenbach, einem Nebenarm der Ilmenau. Beste Möglichkeiten zu Naherholung und sportlichen Outdoor-Aktivitäten direkt vor der Haustür.
_Lange Sonnenscheindauer durch höhergelegene Lage des Wohnquartiers.
_Ideale Nahversorgung: Bahnhof, Klinikum, Leuphana Universität, Grundschule, Stadtmitte, Schwimmzentrum, Sportvereine, Theater, Musikschule und Einkaufsmöglichkeiten sind in wenigen Fahrrad- bzw. Autominuten zu erreichen. Das Gymnasium Oedeme, Kindergärten und mehrere Arztpraxen liegen nur wenige Fußminuten entfernt.
_Andere Schulen sind mit Fahrrad oder Bus erreichbar. 2 Haltestellen für den Stadtbus liegen in jeweils 3 Minuten Entfernung vom Haus.
_Vielfältige Reitsportmöglichkeiten (u.a. Luhmühlen) und mehrere Golfclubs sind mit dem Auto in bis zu 30 Minuten erreichbar.
_Lüneburg liegt ist durch die Metronom Eisenbahngesellschaft in das Netz des Hamburger Verkehrsverbundes (HVV) eingebunden, täglich viele ICE Verbindungen auf der Nord-Süd Achse Hamburg-Frankfurt/München.
_Das Zentrum von Hamburg ist in 30 Minuten mit dem Schienenverkehr und in 40 Minuten mit dem Pkw erreichbar. Der Airport Hamburg wird in einer guten Stunde mit Auto oder öffentlichem Nahverkehr erreicht.
Grundriss
Grundriss Erdgeschoss
>
>
Grundriss Obergeschoss
>
>
Grundriss Dachgeschoss
>
>
Adresse
21339 Lüneburg
Interessante Orte
Preis- und Lageinformationen
Preistrend für Bestandsimmobilien in Lüneburg