Die in skandinavischer Architektur gebaute Doppelhaushälfte mit dei Zimmern und ca. 78 m2 wurde im Jahr 2012 im sogenannten " Bernsteinpark" fertiggestellt.
Ausgestattet mit einer kompletten Einbauküche, in der es an nichts fehlt, der Fußbodenheizung im EG, einem Kaminofen, zwei Bädern und einem sehr geschmackvollen Interieur, fehlt es Ihnen an nichts, um sofort mit einer Ferienvermietung zu starten. Das Haus ist in einem Top-Zustand!
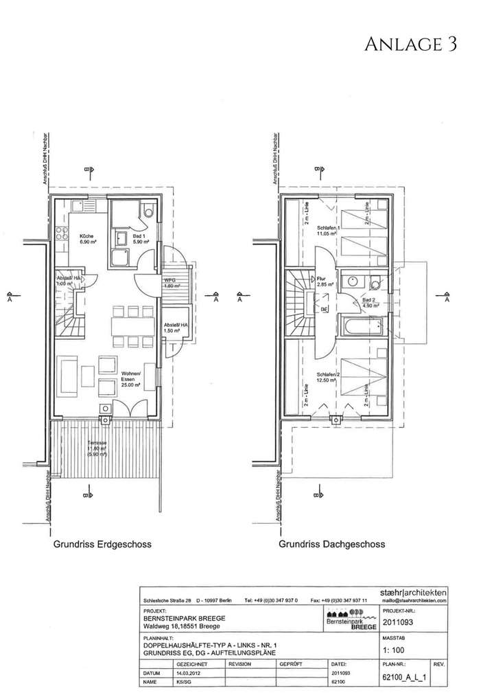
Das Haus betreten Sie durch einen kleinen, gemütlichen Windfang. Im EG befindet sich neben der modernen Küche und dem Gäste-WC mit Dusche und Sauna, der helle Wohn-, Essbereich mit Zugang zur nach süd-west ausgerichteten Terrasse und ein Abstellraum für Staubsauger und Anderes. Insgesamt ein sehr vornehmer Anblick!
Das Wohngefühl im Dachgeschoss ist fast schon als einzigartig zu beschreiben. Durch den Ausbau in die Dachspitze hinein wirkt das Schlafzimmer enorm großzügig. Die bodentiefen Fenster mit "französischem Balkon" lassen einen sehr hohen Lichteinfall zu.
Das Badewimmer mit Whirlpoolwanne und Fußbodenheizung erhöhen den Wohnkomfort maßgeblich!
Zu guter Letzt rundet noch das Kinderzimmer mit zwei Einzelbetten und Schlafzimmerschrank die Immobilie ab.
Der Stellplatz, der direkt am Haus ist, ist bereits im Kaufpreis inkludiert!
Schmuckkästchen! Doppelhaushälfte in Toplage zwischen Breeger Bodden und Meer!
Bernsteinpark 3,
18556 Breege
Auf Karte anzeigen
Finanzierungszertifikat
In nur zwei Minuten zu Ihrem persönlichen Finanzierungszertifkat.
Infos
| Haustyp | Doppelhaushaelfte |
|---|---|
| Etagenzahl | 2 |
| Wohnfläche ca. | 78 m2 |
| Nutzfläche | 78 m2 |
| Grundstücksfläche | 251 m2 |
| Bezugsfrei ab | sofort! |
| Zimmer | 3 |
| Schlafzimmer | 2 |
| Badezimmer | 2 |
| Garage/Stellplatz | Außenstellplatz |
| Anzahl Garage/Stellplatz | 1 |
Kosten
| Kaufpreis |
370.000 € |
|---|---|
| Provision |
3,57% inkl. 19% USt. |
Finanzierungsrechner:
Kaufpreis:
600.000 €
Eigenkapital:
600.000 €
Monatliche Rate
0 €
Effektiver Jahreszins
0 %
Sollzinsbindung
10 Jahre
Bausubstanz & Energieausweis
| Baujahr | 2012 |
|---|---|
| Bauphase | Haus fertig gestellt |
| Objektzustand | Neuwertig |
| Qualität der Austattung | Gehoben |
| Heizungsart | Fußbodenheizung |
| Wesentliche Energieträger | Gas |
| Energieausweis | liegt vor |
| Energieausweistyp | Verbrauchsausweis |
| Energieverbrauchskennwert | 22,6 kWh/(m²*a) |
| Energieeffizienzklasse | A+ |
22,6
kWh/(m²*a)
Energieeffizienzklasse A+
- A+
- A
- B
- C
- D
- E
- F
- G
- H
- 0
- 25
- 50
- 75
- 100
- 125
- 150
- 175
- 200
- 225
- >250
Beschreibung des Objekts
Ausstattung
- drei Zimmer ca. 78 m²
- kurzer Weg zum feinen Ostsee-Sandstrand!
- Sauna
- Whirlpool
- Duschbadezimmer, tagesbelichtet
- Badewannenbad, tagesbelichtet
- Einbauküche inkl. Markengeräten
- Waschmaschine
- Kaminofen
- Fußbodenheizung im EG
- Niederbrennwert-Gastherme
- Solar-Warmwasseranlage
- Großzügige Süd-West Terrasse
- SAT-Anlage
- PKW-Stellplatz direkt am Haus
- Abstellraum für Geräte zur Gartenpflege
- Boddenblick vom Schlafzimmer
Lage
Im Sommer ist für den Strandurlaub die Nähe zum Breeger Boden oder zur nahen Ostsee die Lage ideal.
Genießen Sie lange Abendspaziergänge zum Breeger Hafen, oder entlang der endlos langen Stränden am Meer.
Im Winter erleben Sie die wundervolle Stille, einen vereisten Bodden und die einzigartigen Möglichkeit Ihren Körper auf "stand-by" zu stellen und Ihren Akku aufzufüllen. Zusammen mit der Wärme eines angeheizten Kaminofens eine traumhaft schöne Idylle.
Breege liegt im Norden der Sonneninsel Rügen und gehört zum Amt Nord Rügen. Die unmittelbare Nähe zu Breeger Bodden, dem Breeger Hafen und dem Meer machen diesen Ort besonders für Familienurlaube attraktiv.
Ein Ausflug zum Kap Arkona, dem Königsstuhl oder dem Hafen Wiek ist genauso kurzfristig möglich, wie ein Besuch der Störtebecker Festspiele in Ralswiek, dem Fährhafen Sassnitz, einen Tagestrip auf die Insel Hiddensee, oder einem Pflichtbesuch bei Bauer Lange auf Ummanz.
Thema Einkauf: Einkaufsmöglichkeiten für den täglichen Bedarf gibt es ausreichend und ganzjährig. Ob Edeka in Breege, Netto in Glowe, Norma oder Lidl. Jeder findet seinen persönlich liebsten Discounter!
Thema Fährverbindungen: Schiffsausflüge vom Breeger Yacht-Hafen durch die Boddengewässer zur Insel Hiddensee werden angeboten. Im Juli und August werden Abendfahrten ab dem Hafen Breege durch den Großen Jasmunder Bodden angeboten. Die beliebten Kranichtouren starten Mitte September jeweils donnerstags und samstags vom Breeger Hafen aus.
Schiffstouren zu den Kreidefelsen oder zum Kap Arkona sind von der Hafenstadt Sassnitz möglich.
Thema ÖPNV: Die Anreise ist vom Berliner HBF mit drei Umstiegen in knapp 5 h möglich. Regio 9, Regio 5, Bus 12 und Bus 1
Sonstige Angaben
Finanzierung:
Unsere Finanzierungsexperten unterbreiten Ihnen gerne ein auf Ihre Bedürfnisse abgestimmtes Finanzierungsangebot.
Ihre Kreditanfragen gehen an über 200 Banken. Somit können unsere Finanzierungsexperten einen günstigen Zinssatz sowie eine schnelle Angebotserarbeitung garantieren.
Gern vermarkten wir auch Ihre Immobilie!
Wir freuen uns auf Ihren Anruf und den gemeinsamen Besichtigungstermin:-)
Christian Karohs
2CK-Immobilien
Tel.: +49 178-1888 501
Ihr Immobilienmakler für Rügen/Berlin
Weitere Dokumente
Energieausweis BSP03.pdfGrundriss
Grundriss.jpg
>
>
Adresse
Bernsteinpark 3, 18556 Breege
Interessante Orte
Preis- und Lageinformationen
Preistrend für Bestandsimmobilien in Breege