Das in edler massiver Holzbauweise errichtete Einfamilienhaus ist sicherlich einzigartig. Es wurde nur mit natürlichen hochwertigen Baustoffen mit viel Liebe und handwerklicher Perfektion im Jahr 2014 errichtet und bietet Ihnen einen sehr hohen Wohnkomfort.
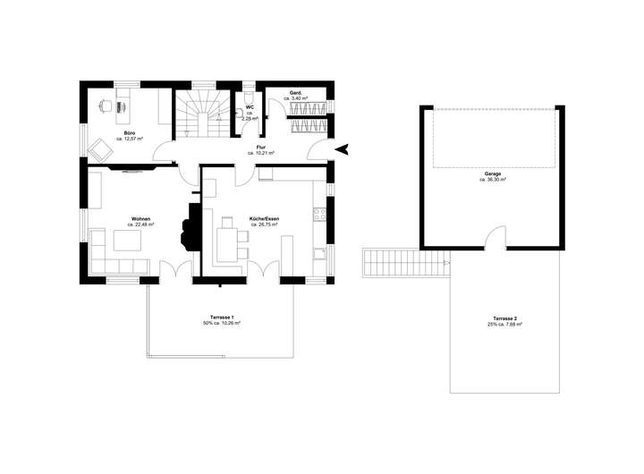
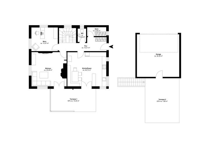
Durch die luxuriöse Innenausstattung und die durchdachte Raumkonzeption wird Wohnen zum Erlebnis. In Ihrem neuen Zuhause finden Sie sechs schöne Räume. Der Eingangsbereich besticht durch die tolle Einteilung - Garderobe für die Gäste und eine begehbare Garderobe für die Familie. Eine Gästetoilette mit Fenster ist ebenfalls vorhanden. Die großzügige Wohn/Essküche ist perfekt geplant und lädt zu schönen Kochevents ein. Die Küche und das gemütliche separate Wohnzimmer haben jeweils einen Zugang zur Südterrasse. Für das Business steht ein Büro bereit.
Das lichtdurchflutete Treppenhaus wird Sie begeistern.
Das Schlafzimmer mit Bad en suite und begehbaren Kleiderschrank lässt Frauenherzen höher schlagen. Die zwei weiteren Schlafzimmer verfügen über einen großen Westbalkon und ein Badezimmer mit Dusche / WC.
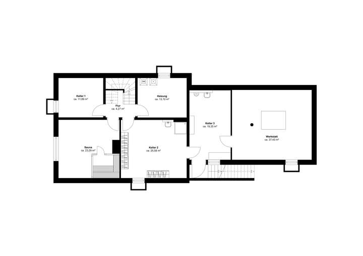
Das Haus ist voll unterkellert, u.a. mit einer Sauna, Fitnessraum, großen Hobbyraum mit Dusche - einen Sportraum mit WC sowie einer großen Werkstatt welche sich unter der Doppelgarage befindet.
Der großzügige nach Süd/West ausgerichtete Terrassenbereich lädt zum entspannten Verweilen ein. Das Unterschoss kann auch über den Garten erreicht werden.
Für die Kleinen gibt es sogar ein Spielhaus im Garten. Auch die Fahrzeuge finden in der großen Doppelgarage ihren Platz.
Leider reicht der vorgesehene Platz bei Immoscout nicht aus um dieses Wohnjuwel perfekt zu beschreiben. Deshalb freuen wir uns schon jetzt mit Ihnen die Besichtigungstour zu starten - hierzu sind wir nur eine Mail oder einen Anruf entfernt.
Traumhaus im Voralpenland
83666 Waakirchen
Die vollständige Adresse der Immobilie erhalten Sie vom Anbieter.
Auf Karte anzeigen
Die vollständige Adresse der Immobilie erhalten Sie vom Anbieter.
Finanzierungszertifikat
In nur zwei Minuten zu Ihrem persönlichen Finanzierungszertifkat.
Infos
| Haustyp | Einfamilienhaus |
|---|---|
| Etagenzahl | 1 |
| Wohnfläche ca. | 178 m2 |
| Nutzfläche | 134,61 m2 |
| Grundstücksfläche | 511 m2 |
| Bezugsfrei ab | 24.4.2025 |
| Zimmer | 6 |
| Schlafzimmer | 3 |
| Badezimmer | 2 |
| Anzahl Garage/Stellplatz | 1 |
Kosten
| Kaufpreis |
1.599.500 € |
|---|---|
| Provision |
28.471,10 Euro incl. 19% MwSt. Der Käufer bezahlt gem. § 656c BGB eine Provision von 1,78 % incl. Mehrwertsteuer aus dem Gesamtkaufpreis von insgesamt Euro 1.599.500 = 28.471,10 Euro. Der Verkäufer zahlt eine Provision in gleicher Höhe. |
Finanzierungsrechner:
Kaufpreis:
600.000 €
Eigenkapital:
600.000 €
Monatliche Rate
0 €
Effektiver Jahreszins
0 %
Sollzinsbindung
10 Jahre
Bausubstanz & Energieausweis
| Baujahr | 2014 |
|---|---|
| Bauphase | Haus fertig gestellt |
| Objektzustand | Neuwertig |
| Qualität der Austattung | Luxus |
| Heizungsart | Fernwärme |
| Wesentliche Energieträger | Pelletheizung |
| Energieausweis | liegt vor |
| Energieausweistyp | Bedarfsausweis |
| Energieverbrauchskennwert | 117,5 kWh/(m²*a) |
| Energieeffizienzklasse | D |
117,5
kWh/(m²*a)
Energieeffizienzklasse D
- A+
- A
- B
- C
- D
- E
- F
- G
- H
- 0
- 25
- 50
- 75
- 100
- 125
- 150
- 175
- 200
- 225
- >250
Beschreibung des Objekts
Ausstattung
- hochwertige Bodenbeläge
- Holzkamin im Wohnzimmer
- Fussbodenheizung mit elektrischer Steuerung
- smart-home Ausstattung
- hochwertige Sanitärausstattung
und vieles mehr....
Lage
Die Immobilie befindet sich in Hauserdörfl einem Ortsteil von Waakirchen - unweit vom Tegernseer Tal entfernt und liegt somit durch die gute Infrastruktur des Oberlands perfekt für Kultur, Kunst, Sport, Arbeit, Bildung und ärztliche Versorgung.
Grundriss
Obergeschoss
>
>
Erdgeschoss
>
>
Untergeschoss
>
>
Adresse
83666 Waakirchen
Interessante Orte
Preis- und Lageinformationen
Preistrend für Bestandsimmobilien in Waakirchen