Zur Miete steht eine stilvolle, in 2024/2025 hochwertig sanierte Villa mit Charakter - ideal für Familien, Individualisten und generationsübergreifendes Wohnen.
Das Haus bietet auf vier Ebenen sieben Zimmer, drei Bäder und zwei Küchen, was vielfältige Nutzungsmöglichkeiten gestaltet. Elegante Elemente wie der Natursteinsockel, Erker mit Kupferdach und ein Balkon unterstreichen den besonderen Charme. Das gepflegte Grundstück umfasst einen Garten, eine asphaltierte Einfahrt, eine Doppelgarage und drei Stellplätze. Die Wohnfläche von ca. 170 m² verteilt sich auf drei Wohnetagen. Zusätzlich stehen im Keller ca. 71 m² Nutzfläche für Hobby, Lager oder Technik zur Verfügung.
Hochwertig saniertes Mehrgenerationenhaus mit Balkon & Garten auf 4 Etagen zur Miete!
Abteistraße 7,
09353 Oberlungwitz
Auf Karte anzeigen
Infos
| Haustyp | Villa |
|---|---|
| Etagenzahl | 3 |
| Wohnfläche ca. | 170 m2 |
| Grundstücksfläche | 1.500 m2 |
| Bezugsfrei ab | sofort |
| Zimmer | 7 |
| Schlafzimmer | 5 |
| Badezimmer | 3 |
| Garage/Stellplatz | Garage |
| Anzahl Garage/Stellplatz | 5 |
Kosten
| Kaltmiete |
1.650 € |
|---|---|
| Nebenkosten | + 200 € |
| Heizkosten | keine Angabe |
| Gesamtmiete | 1.850 € (zzgl. Heizkosten) |
| Miete für Garage/Stellplatz | 150 € |
| Kaution o. Genossenschaftsanteile | 3300,00 |
Weiter mieten oder doch kaufen?
Wer in Miete wohnt, überweist dem Vermieter im Laufe der Jahre hohe Summen, die sich
auch in die eigenen vier Wände investieren lassen könnten.
Bausubstanz & Energieausweis
| Baujahr | 1932 |
|---|---|
| Letzte Sanierung | 2025 |
| Qualität der Austattung | Luxus |
| Heizungsart | Wärmepumpe |
| Wesentliche Energieträger | Gas |
| Energieausweis | liegt zur Besichtigung vor |
Beschreibung des Objekts
Ausstattung
Folgende Merkmale kennzeichnen die Villa:
• ansprechend gestalteter Grundriss über 4 Etagen /
• schicker Eingangsbereich mit Granitboden /
• separates Treppenhaus für EG bis DG /
• sieben helle Wohnräume mit großzügigen Fenstern und Deckenhöhen /
• Wohnzimmer mit elegantem Erker im EG /
• Balkon mit Nord-Ost-Ausrichtung im OG
• moderne Küche mit neuer Einbauküche im EG /
• Badezimmer mit Dusche und Fenster im EG /
• Tageslichtbad mit Dusche und Wanne im OG /
• Badezimmer mit Dusche und Dachfenster im DG /
• separater Kellereingang, Keller mit vier großen Räumen /
• Wärmeversorgung mit Wärmepumpe / Gas /
• Bodenbelag: Echtholzdielen, Fliesen /
• dimmbare Lichter, Lan-Anschluss und Wandheizkörper im gesamten Haus /
• fünf ausgeschriebene Stellplätze /
Ein Zuhause mit Stil, Geschichte und Zukunft!
Lage
Das 1932 errichtete Zweifamilienhaus befindet sich in Oberlungwitz.
Die charmante Kleinstadt im sächsischen Erzgebirgsvorland verbindet ländliche Idylle mit stadtnahe Infrastruktur.
In wenigen Gehminuten erreicht man den Öffentlichen Nahverkehr.
Über die Bundesstraßen B173 und B180 sind die Autobahnanschlussstellen zur A72 und A4, somit auch Chemnitz und Zwickau, schnell erreichbar.
Sonstige Angaben
Nutzung möglich als:
• großzügiges Einfamilienhaus /
• Einfamilienhaus mit Einliegerwohnung /
• Mehrgenerationenhaus /
Die Gebühren und Kosten für Gas, Strom und Kabelfernsehen werden vom Mieter direkt an die Versorgungsträger entrichtet und sind demnach nicht in der Vorauszahlung enthalten.
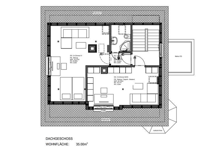
Grundriss
GR-Keller
>
>
GR-Erdgeschoss
>
>
GR-Obergeschoss
>
>
GR-Dachgeschoss
>
>
Adresse
Abteistraße 7, 09353 Oberlungwitz
Interessante Orte
Preis- und Lageinformationen
Preistrend für Bestandsimmobilien in Oberlungwitz