MFH in ruhiger Lage.
***SEHR GEPFLEGTE WOHNUNG IN SCHÖNEM MFH-BALKON-AUFZUG-TIEFGARAGENSTELLPLATZ***
Philippstr. 8,
09130 Chemnitz
Auf Karte anzeigen
Finanzierungszertifikat
In nur zwei Minuten zu Ihrem persönlichen Finanzierungszertifkat.
Infos
| Wohnungskategorie | Etagenwohnung |
|---|---|
| Etage | 2 von 5 |
| Wohnfläche ca. | 65 m2 |
| Zimmer | 2 |
| Schlafzimmer | 1 |
| Badezimmer | 1 |
| Garage/Stellplatz | Tiefgarage |
| Anzahl Garage/Stellplatz | 1 |
Kosten
| Kaufpreis |
72.000 € |
|---|---|
| Provision |
3500 inkl. MwSt. |
Finanzierungsrechner:
Kaufpreis:
600.000 €
Eigenkapital:
600.000 €
Monatliche Rate
0 €
Effektiver Jahreszins
0 %
Sollzinsbindung
10 Jahre
Bausubstanz & Energieausweis
| Baujahr | 1996 |
|---|---|
| Objektzustand | Gepflegt |
| Heizungsart | Zentralheizung |
| Wesentliche Energieträger | Fernwärme |
| Energieausweis | liegt vor |
| Energieausweistyp | Verbrauchsausweis |
| Energieverbrauchskennwert | 57,4 kWh/(m²*a) |
Beschreibung des Objekts
Ausstattung
-helle Wohnräume mit vielen Gestaltungsmöglichkeiten
-grosse Wohnküche
-schönes Wohnzimmer mit Zugang zum
sonnigen Balkon
-geräumiges Badezimmer mit Wanne
Waschmaschinenanschluß im Bad
-Schlafzimmer mit genügend Platz und
Zugang zum Balkon
-Abstellraum in der Wohnung
-nette Nachbarn
-Fahrradraum
-Trockenraum
-geräumige Dachkammer
-Tiefgaragenstellplatz
-sehr ordentlicher und solventer Mieter
Lage
Das Objekt befindet sich in ruhiger Nebenstrassenlage. Im Gebiet ist eine moderne Infrastruktur vorhanden. Einkaufsmöglichkeiten sowie Haltestellen des öffentlichen Nahverkehrs befinden sich in der Nähe. Naherholungsmöglichkeiten bietet der Zeisigwald. Das Stadtzentrum, der Bahnhof sowie die Sachsenallee mit zahlreichen Geschäften ist in wenigen Minuten zu erreichen. Kindergarten und Schule sind ebenfalls in der Nähe.
Sonstige Angaben
Kaufpreis VB.
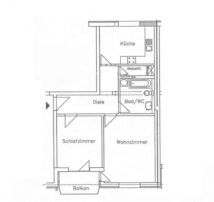
Grundriss
Grundriss
>
>
Adresse
Philippstr. 8, 09130 Chemnitz
Interessante Orte
Preis- und Lageinformationen
Preistrend für Bestandsimmobilien in Sonnenberg