Mitten im charmanten Uelzener Ortsteil Veerßen bietet sich eine einmalige Gelegenheit für Investoren oder Bauträger:
Ein projektiertes Grundstück mit genehmigungsreifen Unterlagen, durchdachter Planung und klarer architektonischer Vision. Es handelt sich dabei derzeit um den einzigen verfügbaren Bauplatz in Veerßen.
Die vorliegenden Planunterlagen umfassen sämtliche baurechtlich relevanten Nachweise sowie detaillierte Zeichnungen – darunter Grundrisse, Ansichten und Lagepläne. Fachplanerische Abstimmungen, insbesondere im Bereich Brandschutz, wurden bereits professionell durchgeführt, sodass einer zügigen Realisierung nichts im Wege steht.
Ein Ort mit Seele – ein Projekt mit Zukunft
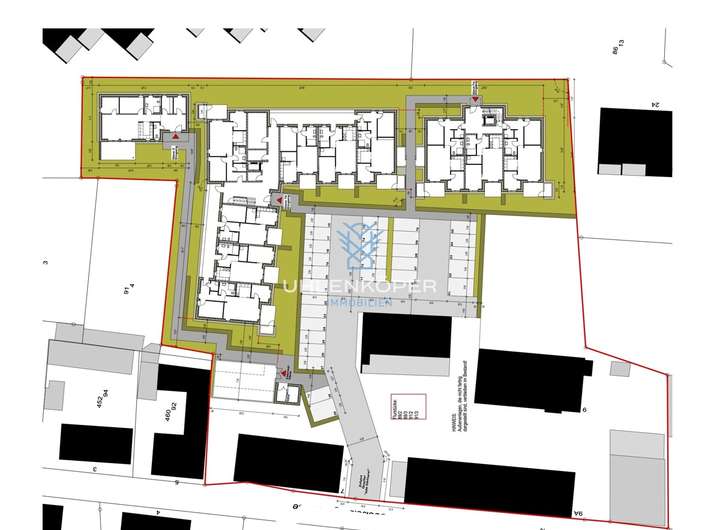
Auf dem historischen Gelände einer ehemaligen Gärtnerei entsteht ein hochwertiges Neubauquartier mit insgesamt 29 Wohneinheiten – ökologisch ausgerichtet, architektonisch anspruchsvoll und in Einklang mit der umliegenden Natur. Die „Alte Gärtnerei“ steht für ein neues, nachhaltiges Verständnis von Wohnen: Urbanes Lebensgefühl trifft hier auf ländliche Idylle.
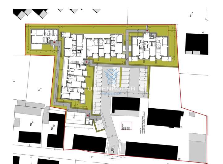
Flächenkonzept mit Weitblick
Das ca. 4.000 m² große Grundstück ist intelligent und zukunftsfähig strukturiert.
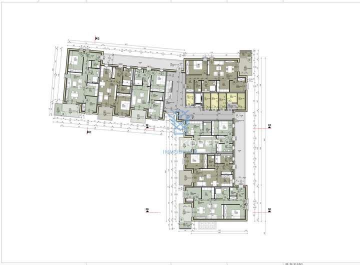
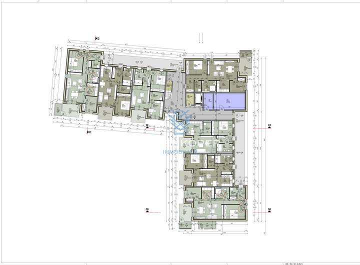
Insgesamt ergibt sich eine projektierte Wohnfläche von 2.427,46 m². Alle Einheiten verfügen über private Außenbereiche – sei es Balkon, Terrasse oder ein eigener Gartenanteil – und profitieren von intelligenten Grundrisslösungen, die sowohl Komfort als auch effiziente Nutzung garantieren.
Funktionale Infrastruktur mit Weitblick
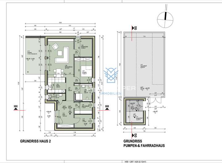
Neben den Wohngebäuden entsteht eine ergänzende Infrastruktur, die das Wohnquartier funktional abrundet. Vorgesehen sind moderne Abstellräume, ein Fahrradhaus sowie zwei Pumpenhäuser zur technischen Versorgung.
Architektur & Nachhaltigkeit
Das architektonische Konzept der „Alten Gärtnerei“ besticht durch klare Linien, großzügige Fensterflächen und eine hochwertige Fassadengestaltung, die Moderne und Natürlichkeit gekonnt in Einklang bringt. Die Bauweise folgt höchsten energetischen Standards und wird ressourcenschonend umgesetzt – ein echter Mehrwert für Umwelt und Bewohner gleichermaßen.
Baugrundstück mit genehmigter Projektierung in Uelzen-Veerßen – 29 WE im modernen Quartierskonzept
29525 Uelzen
Die vollständige Adresse der Immobilie erhalten Sie vom Anbieter.
Auf Karte anzeigen
Die vollständige Adresse der Immobilie erhalten Sie vom Anbieter.
Finanzierungszertifikat
In nur zwei Minuten zu Ihrem persönlichen Finanzierungszertifkat.
Infos
| Vermarktungsart | Kaufen |
|---|---|
| Grundstücksfläche | 4.000 m2 |
| Erschließung | Unerschlossen |
Kosten
| Miete pro Jahr |
0 € |
|---|---|
| Provision |
5,97% inkl. gesetzl. MwSt. |
Finanzierungsrechner:
Kaufpreis:
600.000 €
Eigenkapital:
600.000 €
Monatliche Rate
0 €
Effektiver Jahreszins
0 %
Sollzinsbindung
10 Jahre
Beschreibung des Objekts
Lage
Exklusive Lage im beliebten Stadtteil Veerßen – ruhig, familienfreundlich, stadtnah
Der Stadtteil Veerßen zählt zu den begehrtesten Wohnlagen in Uelzen. Nur wenige Minuten vom Stadtzentrum entfernt, vereint Veerßen die Vorteile stadtnaher Infrastruktur mit der Ruhe und Sicherheit einer gewachsenen Wohngegend – ideal für Familien, Paare oder Senioren, die naturnah und dennoch gut angebunden leben möchten.
In Veerßen finden sich zahlreiche Einrichtungen des täglichen Lebens direkt vor der Haustür:
▸ Ärzte verschiedener Fachrichtungen, darunter Allgemeinmediziner, Zahnärzte und Physiotherapeuten
▸ Eine Grundschule mit engagiertem Kollegium und gutem Ruf
▸ Kindergarten mit hoher Nachfrage – im Rahmen der laufenden Projektierung ist bereits eine Erweiterung des Kindergartens vorgesehen, um den wachsenden Bedarf zu decken und Familien Planungssicherheit zu bieten
▸ Bäckerei, Supermärkte und kleinere Einzelhandelsgeschäfte, die bequem zu Fuß oder mit dem Fahrrad erreichbar sind
Trotz dieser hervorragenden Infrastruktur liegt Veerßen ruhig und grün – perfekt für erholsame Spaziergänge, sicheres Spielen für Kinder und ein entspanntes Wohnumfeld. Die Nachbarschaft ist geprägt von Einfamilienhäusern, gepflegten Gärten und einer angenehmen, freundlichen Atmosphäre.
Auch die Verkehrsanbindung ist ideal:
Nur wenige Minuten zur Bundesstraße B4, über die Sie schnell die Städte Lüneburg, Hamburg oder Hannover erreichen
Der Bahnhof Uelzen, ein wichtiger ICE- und Regionalbahnknotenpunkt, ist ebenfalls in kurzer Zeit erreichbar – ideal für Pendler und Vielreisende
Busverbindungen in die Uelzener Innenstadt und umliegende Orte bestehen regelmäßig und zuverlässig
Sonstige Angaben
Projekt-Highlights auf einen Blick
29 Wohneinheiten in moderner, energieeffizienter Bauweise
Geplante geotechnische Voruntersuchungen zur möglichen Nutzung oberflächennaher Geothermie für Wärmepumpen von der Stadt Uelzen
Regenwasserkonzept bereits genehmigt
Derzeit einziger verfügbarer Bauplatz in Veerßen.
Pumpenhaus zur Grundstücksentwässerung geplant
Abrisskosten-Angebot bereits vorhanden
Jede Einheit mit Außenbereich (Terrasse/Balkon/Garten)
Ruhige Lage im grünen Uelzener Ortsteil Veerßen – stadtnah und lebenswert
Ideal für Eigennutzer, Seniorenwohnen oder Kapitalanlage
Rechtsgrundlage: § 68 Abs. 1 LBO BW (vereinfachtes Verfahren)
Art: Vollständige Baugenehmigung (kein Vorbehalt, keine Teilgenehmigung), erteilt am: 10.04.2024
Enthalten: Brandschutzkonzept, Lagepläne, Bauzeichnungen
Wichtig:
Baubeginn erst nach Anzeige beim Landratsamt
Bauleiter muss benannt sein
Auflagen im Bescheid beachten
Weitere Dokumente
Ansichten Haus 2 & Pumpen-FahrAnsichten Haus a
Ansichten Norden und Süden Hau
Ansichten Osten und Westen Hau
Grundriss 1.OG-Haus b
Grundriss 2.OG-Haus b
Grundriss EG-Haus a
Grundriss EG-Haus b
Grundriss Haus 2 & Pumpen-Fahr
Grundriss OG-Haus a
Grundriss STG-Haus a
Querschnitte AA - FF
Querschnitte GG & HH
Lageplan_Außenanlagen
Lageplan_Abstandsflächen