Dieses im Jahr 2000 erbaute, großzügige Einfamilienhaus mit Anbau und großer Garage bietet auf rund 220 m² Wohnfläche über drei Etagen ein ideales Zuhause für Familien mit Anspruch an Raum und Komfort.
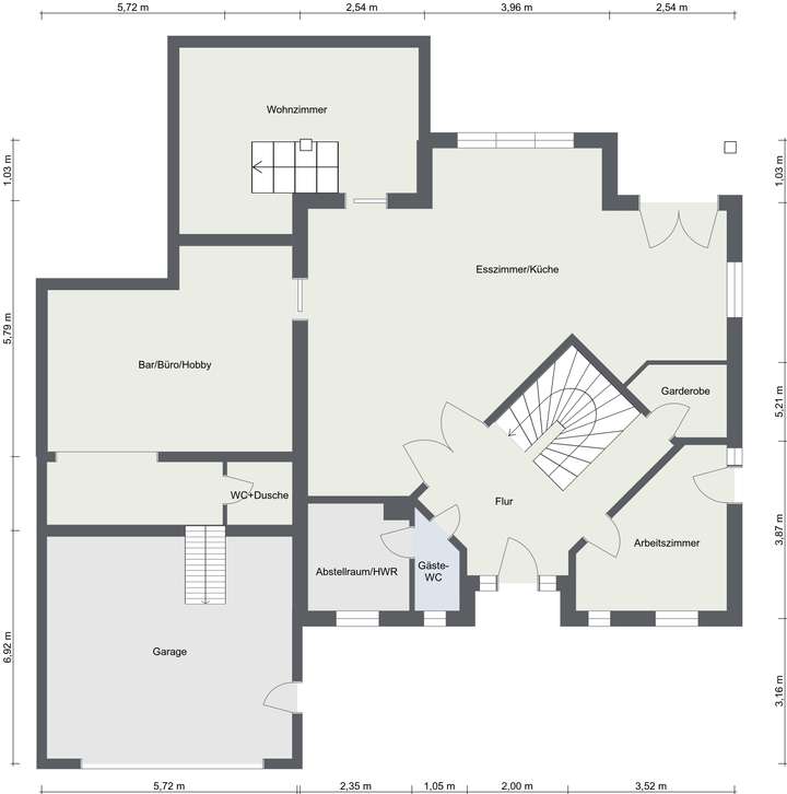
Bereits beim Betreten des Hauses über den Haupteingang überzeugt das durchdachte Raumkonzept: Im Eingangsbereich befinden sich eine Garderobe, ein Gäste-WC mit angeschlossenem Hauswirtschaftsraum, ein Arbeitszimmer mit separatem Außenzugang sowie der offen gestaltete Koch- und Essbereich inklusive Kaminecke – der zentrale Treffpunkt des Hauses.
Von hier aus gelangt man in das lichtdurchflutete Wohnzimmer mit einer wunderschönen Galerie, die zum entspannten Verweilen einlädt. Ein besonderes Highlight ist der angrenzende, vielseitig nutzbare Hobbyraum mit integrierter Bar – ideal für gesellige Abende, kreative Hobbys oder auch als repräsentativer Homeoffice- oder Firmensitz nutzbar. Dieser verfügt über ein Duschbad und einen direkten Zugang zur Garage.
Im Obergeschoss erwarten Sie zwei helle Kinderzimmer, ein großzügiges Schlafzimmer mit Ankleideecke, ein offener Wohnbereich sowie das Hauptbadezimmer mit Badewanne, Dusche und Doppelwaschbecken – perfekt für den Familienalltag.
Das Dachgeschoss rundet das Raumangebot mit einer integrierten Sauna, Dusche, Ruheecke sowie einem weiteren, gemütlichen Zimmer ab – ein Ort für Entspannung und Rückzug.
++ Großes, hochwertiges und vielseitiges Einfamilienhaus - Karutzhöhe ++
15537 Erkner
Die vollständige Adresse der Immobilie erhalten Sie vom Anbieter.
Auf Karte anzeigen
Die vollständige Adresse der Immobilie erhalten Sie vom Anbieter.
Finanzierungszertifikat
In nur zwei Minuten zu Ihrem persönlichen Finanzierungszertifkat.
Infos
| Haustyp | Einfamilienhaus |
|---|---|
| Etagenzahl | 3 |
| Wohnfläche ca. | 220 m2 |
| Grundstücksfläche | 1.012 m2 |
| Bezugsfrei ab | sofort |
| Zimmer | 8 |
| Schlafzimmer | 4 |
| Badezimmer | 1 |
| Garage/Stellplatz | Garage |
| Anzahl Garage/Stellplatz | 5 |
Kosten
| Kaufpreis |
698.000 € |
|---|---|
| Provision |
1,50 % Die Provision (1,50 % auf den Kaufpreis inkl. MwSt.) ist bei notariellem Vertragsabschluss fällig und vom Käufer an die „Rund-um Immobilien“ Nico Sonnenberg zu zahlen. Die Höhe entspricht der Provisionshöhe, die mit dem Verkäufer vertraglich vereinbart wurde. |
Finanzierungsrechner:
Kaufpreis:
600.000 €
Eigenkapital:
600.000 €
Monatliche Rate
0 €
Effektiver Jahreszins
0 %
Sollzinsbindung
10 Jahre
Bausubstanz & Energieausweis
| Baujahr | 2000 |
|---|---|
| Bauphase | Haus fertig gestellt |
| Qualität der Austattung | Gehoben |
| Heizungsart | Gas-Heizung |
| Wesentliche Energieträger | Gas |
| Energieausweis | liegt vor |
| Energieausweistyp | Bedarfsausweis |
| Energieverbrauchskennwert | 144,2 kWh/(m²*a) |
| Energieeffizienzklasse | E |
144,2
kWh/(m²*a)
Energieeffizienzklasse E
- A+
- A
- B
- C
- D
- E
- F
- G
- H
- 0
- 25
- 50
- 75
- 100
- 125
- 150
- 175
- 200
- 225
- >250
Beschreibung des Objekts
Ausstattung
+++ Hier bleiben keine Wünsche offen +++
Die Immobilie verfügt über unzählige Highlights, u.a.:
- 8 Zimmer
- 2 Galerieebenen
- Galerie im 1. OG kann zum Küchen- und Essbereich wieder geöffnet werden
- Ausbau über der Garage (nur noch malern und Boden einbringen)
- programmierbare Elektrik (Peha-Haus-Control-System), zahlreiche EDV und TV--Dosen (Verkabelung)
- Sauna
- Wäscheabwurfschacht
- Kamin (wasserführend, vorbereitet)
- Gas-Heizung von 2016
- Fußbodenheizung
- Wannenbad, Gäste-WC, insg. 3 Duschen
- geräumige Garage (2 Stellplätze)
- bis zu 3 Außenstellplätze
- Beregnungsanlage im Garten (zu 80% fertig gestellt)
Mit ein bisschen Liebe und Aufwendung (Renovierung) kann man aus diesem Haus ganz schnell ein großartiges Schmuckstück für die Familie sowie Hobbys und Arbeit herrichten.
Lage
Das Einfamilienhaus befindet sich in attraktiver und familienfreundlicher Lage in Erkner, einer charmanten Stadt am östlichen Berliner Stadtrand im Landkreis Oder-Spree. Erkner erfreut sich seit Jahren wachsender Beliebtheit bei Familien, die naturnah wohnen und dennoch hervorragend an Berlin angebunden sein möchten.
Die Verkehrsanbindung ist ausgezeichnet: Mit der S-Bahnlinie S3 erreichen Sie den Berliner Ostkreuz in etwa 25 Minuten, der Regionalexpress RE1 bringt Sie noch schneller in die Innenstadt. Autofahrer profitieren von der nahen A10 (Berliner Ring) sowie der B1/B5, die eine schnelle Verbindung ins Stadtzentrum und ins Berliner Umland ermöglichen.
Für Familien mit Kindern bietet Erkner eine sehr gute Bildungsinfrastruktur: Mehrere Kitas, Grundschulen und weiterführende Schulen – darunter ein Gymnasium – befinden sich in der näheren Umgebung und sind teilweise fußläufig erreichbar. Auch Sportvereine, Musikschule und Jugendangebote sorgen für ein abwechslungsreiches Freizeitangebot für Kinder und Jugendliche.
Die Nahversorgung ist ebenfalls hervorragend: Supermärkte, Bäcker, Apotheken, Ärzte und weitere Geschäfte des täglichen Bedarfs sind bequem zu erreichen. Ergänzt wird das Angebot durch Wochenmärkte und kleinere Fachgeschäfte im Zentrum von Erkner.
Ein besonderes Highlight ist die naturnahe Umgebung: Zwischen Dämeritzsee, Flakensee und Spree bieten sich zahlreiche Möglichkeiten für Spaziergänge, Fahrradtouren, Wassersport und erholsame Stunden im Grünen – ideal für aktive Familien und Naturliebhaber.
Insgesamt verbindet Erkner auf ideale Weise ruhiges, familienfreundliches Wohnen mit der Nähe zur Hauptstadt – ein Standort mit hoher Lebensqualität und Zukunftsperspektive.
Sonstige Angaben
Wir freuen uns über Ihr Interesse. Bitte berücksichtigen Sie, dass wir uns nur bei Angabe Ihrer vollständigen Kontaktdaten (Name, Adresse, E-Mail und Telefon) bei Ihnen zurückmelden werden.
Alle Angaben beruhen auf Informationen des Auftraggebers und sind ohne Gewähr. Irrtümer und zwischenzeitlicher Verkauf sind vorbehalten.
Grundriss
Grundriss Erdgeschoss
>
>
Grundriss Obergeschoss
>
>
Grundriss Dachgeschoss
>
PDF
Download
>
PDF Download
Adresse
15537 Erkner
Interessante Orte
Preis- und Lageinformationen
Preistrend für Bestandsimmobilien in Erkner