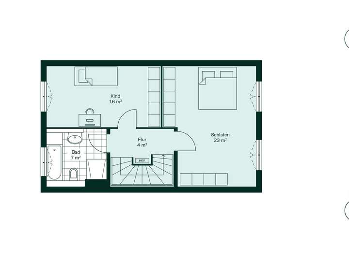
Mit einem geräumigen Dachstudio und vier Zimmern können Sie und Ihre Liebsten sich die Räume hier bestens zunutze machen.
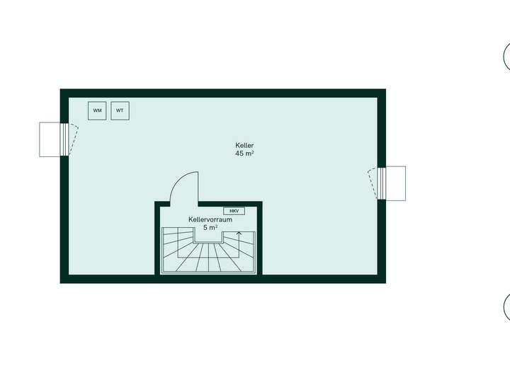
Massiv gebaut für ein dauerhaft gutes Wohngefühl, dieses moderne Doppelhaus bietet Ihnen auf drei Etagen maximalen Komfort. Im Erdgeschoss erwartet Sie ein großzügiger Wohnbereich mit offener Küche. Die angrenzende Terrasse ist ideal für entspannte Abende im Freien. Ein praktisches Gäste-WC und eine Nische für Ihre Garderobe runden das Erdgeschoss ab. Im Obergeschoss erwarten Sie zwei helle und freundliche Zimmer. Das moderne Tageslichtbad mit Badewanne und bodengleicher Dusche schafft eine natürliche Atmosphäre. Homeoffice, ein weiteres Kinderzimmer oder kreativer Raum – im ausgebauten Dachgeschoss finden Sie Platz, um sich zu entfalten. Für weiteren Stauraum nutzen Sie den großzügigen Keller.
Finanzierungszertifikat
In nur zwei Minuten zu Ihrem persönlichen Finanzierungszertifkat.
Infos
| Haustyp | Doppelhaushaelfte |
|---|---|
| Wohnfläche ca. | 136 m2 |
| Nutzfläche | 49,36 m2 |
| Grundstücksfläche | 276 m2 |
| Bezugsfrei ab | Mai 2026 |
| Zimmer | 4 |
| Schlafzimmer | 2 |
| Badezimmer | 1 |
| Garage/Stellplatz | Außenstellplatz |
| Anzahl Garage/Stellplatz | 1 |
Kosten
| Kaufpreis |
439.900 € |
|---|---|
| Provision | Nein |
Finanzierungsrechner:
Kaufpreis:
600.000 €
Eigenkapital:
600.000 €
Monatliche Rate
0 €
Effektiver Jahreszins
0 %
Sollzinsbindung
10 Jahre
Bausubstanz & Energieausweis
| Baujahr | 2024 |
|---|---|
| Objektzustand | Erstbezug |
| Qualität der Austattung | Gehoben |
| Heizungsart | Fußbodenheizung |
Beschreibung des Objekts
Ausstattung
- inklusive erschlossenem Grundstück
- Terrasse
- zwei Außenstellplätze
- Gäste-WC
- offene Wohnküche
- Tageslichtbad
- Badewanne
- bodengleiche Dusche
- elektrische Rollläden im Erdgeschoss
- ausgebautes Dachgeschoss
- auf Wunsch mit Garage
- Keller
- Effizienzhaus 55-Standard
Lage
Bergkamen ist eine idyllische Stadt, die perfekt für Familien und Kinder geeignet ist. Am Ortsrand entsteht unser neues Wohnquartier „Heidegärten“. Hier genießen Sie nicht nur den malerischen Ausblick und die Ruhe der Halde Großes Holz, sondern können auch am Kai der Marina Rünthe entspannen oder aktiv im Sportverein bleiben. Ein idealer Ort, um das Leben in vollen Zügen zu genießen!
Sonstige Angaben
*Aktion bis zum 31.12.2025
Wo Wohnglück beginnt, mit dem Kinderbonus im Gepäck
Familien willkommen: Bei Reservierung eines Hauses in den Heidegärten erhalten Sie einen attraktiven Kinderbonus mit 10.000 € je Kind, ein zusätzlicher finanzieller Freiraum für das, was Familien wirklich wichtig ist. Gilt bei Reservierung im Zeitraum vom 22.08.2025 bis zum 31.12.2025.
*maximal 30.000 €
Adresse
Magdeburger Straße 12, 59192 Bergkamen
Interessante Orte
Preis- und Lageinformationen
Preistrend für Bestandsimmobilien in Bergkamen