Dieses exklusive Splitlevel-Architektenhaus in Linkenheim-Hochstetten ist ein einzigartiges Juwel, das modernes Design mit zeitlosem Komfort harmonisch vereint.
Auf einer großzügigen Wohnfläche von ca. 200 m², verteilt auf 6 Zimmer, erwartet Sie ein außergewöhnliches Wohnambiente in einem ruhigen, bevorzugten Wohngebiet. Das Haus beeindruckt durch seine offene Raumgestaltung, die dank des Splitlevel-Designs eine visuelle Verbindung zwischen den Ebenen schafft und so ein besonderes Wohngefühl vermittelt.
Die lichtdurchfluteten Räume und die großzügige Sonnenterrasse, die sich über die gesamte Hausbreite erstreckt, sorgen für ein harmonisches Zusammenspiel von Innen- und Außenbereich. Im Inneren begeistert die hochwertige Ausstattung: zwei neue, stilvoll und neutral gehaltene Einbauküchen, exklusive Bäder sowie eine behagliche Fußbodenheizung, die für Wohlbefinden sorgt.
Der elegante Designerkaminofen und dimmbare Lichtschienen schaffen eine Atmosphäre, die sich individuell anpassen lässt.
Der liebevoll angelegte Außenbereich, mit seinem romantischen Rosengarten und dem idyllischen Koiteich, lädt zum Verweilen und Entspannen ein. Der Garten verfügt zudem über eine praktische Bewässerungsanlage, die die Pflege erleichtert und die Schönheit der Pflanzen erhält. Verschiedene Sitz- und Liegemöglichkeiten bieten Ihnen die Gelegenheit, die Sonne zu jeder Tageszeit zu genießen und machen die Gartennutzung besonders komfortabel. Die Gartenbeleuchtung unterstreicht das exklusive Ambiente.
Ein weiteres Highlight ist die voll ausgestattete Einliegerwohnung mit ca. 45 m² Wohnfläche und eigener Südterrasse. Die Einliegerwohnung ist derzeit für 660 € kalt vermietet, steht jedoch auch zur Eigennutzung zur Verfügung. Sie verfügt über eine neue Küche mit Inventar sowie eine Waschmaschine, einen Staubsauger, einen Fernseher, ein Bett und einen Schrank. Damit bietet sie zusätzlichen Wohnraum für Gäste oder Familienmitglieder.
Abgerundet wird dieses Angebot durch einen Garagenstellplatz, der sicheren und bequemen Parkraum zur Verfügung stellt.
Dieses einzigartige Architektenhaus bietet nicht nur höchsten Wohnkomfort, sondern auch die einmalige Gelegenheit, in einer der begehrtesten Lagen von Linkenheim-Hochstetten zu leben.
Design trifft Rückzug – Stilvolles Refugium in ruhiger Umgebung
76351 Linkenheim-Hochstetten
Die vollständige Adresse der Immobilie erhalten Sie vom Anbieter.
Auf Karte anzeigen
Die vollständige Adresse der Immobilie erhalten Sie vom Anbieter.
Finanzierungszertifikat
In nur zwei Minuten zu Ihrem persönlichen Finanzierungszertifkat.
Infos
| Haustyp | Doppelhaushaelfte |
|---|---|
| Etagenzahl | 1 |
| Wohnfläche ca. | 200 m2 |
| Grundstücksfläche | 412 m2 |
| Zimmer | 6 |
| Badezimmer | 2 |
Kosten
| Kaufpreis |
690.000 € |
|---|---|
| Provision |
3.00 % inkl. MwSt. Bei Abschluss eines notariellen Kaufvertrages ist eine Käuferprovision vom Käufer in Höhe von 3.00 % inkl. MwSt. aus dem Kaufpreis fällig. |
Finanzierungsrechner:
Kaufpreis:
600.000 €
Eigenkapital:
600.000 €
Monatliche Rate
0 €
Effektiver Jahreszins
0 %
Sollzinsbindung
10 Jahre
Bausubstanz & Energieausweis
| Baujahr | 1981 |
|---|---|
| Objektzustand | Gepflegt |
| Qualität der Austattung | Gehoben |
| Heizungsart | Elektro-Heizung |
| Energieausweis | liegt vor |
| Energieausweistyp | Verbrauchsausweis |
| Energieverbrauchskennwert | 82,0 kWh/(m²*a) |
| Energieeffizienzklasse | C |
82,0
kWh/(m²*a)
Energieeffizienzklasse C
- A+
- A
- B
- C
- D
- E
- F
- G
- H
- 0
- 25
- 50
- 75
- 100
- 125
- 150
- 175
- 200
- 225
- >250
Beschreibung des Objekts
Ausstattung
Splitlevel-Architektenhaus, Unikat, Offenes Wohnerlebnis, Zeitloses Design, Rosengarten, Terrasse, Balkon, Koiteich, Keller, Einliegerwohnung, Garage
Lage
Die Immobilie befindet sich in einer äußerst ruhigen und familienfreundlichen Sackgasse im charmanten Ortsteil Hochstetten der Gemeinde Linkenheim-Hochstetten (Postleitzahl 76351).
Hochstetten zeichnet sich durch seine idyllische und naturnahe Lage aus, die dennoch eine sehr gute Anbindung an die umliegenden Städte bietet. In direkter Umgebung befinden sich weitläufige Grünflächen, die zu erholsamen Spaziergängen und Freizeitaktivitäten einladen. Die Nähe zum Rhein und den umliegenden Wäldern sorgt für eine hohe Lebensqualität und bietet Naturfreunden zahlreiche Möglichkeiten zur Erholung im Freien.
Die Straßenbahnhaltestelle ist in nur 5 Minuten zu Fuß erreichbar, etwa 300 Meter entfernt, und bietet eine bequeme Verbindung an das Gymnasium Neureut, sowie in die Karlsruher Innenstadt. Die Anbindung an den öffentlichen Nahverkehr ist somit optimal, wodurch auch die umliegenden Städte schnell zu erreichen sind. Über die B36 und die nahegelegene Autobahn A5 gelangen Sie zudem zügig in alle Richtungen.
Hochstetten bietet eine hervorragende Infrastruktur mit diversen Einkaufsmöglichkeiten, Kindergärten, Schulen sowie medizinischer Versorgung in unmittelbarer Nähe. Das Umfeld ist geprägt von einer gewachsenen, gepflegten Nachbarschaft, die ein sicheres und angenehmes Wohngefühl vermittelt.
Insgesamt bietet diese Lage die ideale Kombination aus Ruhe, Naturverbundenheit und einer dennoch hervorragenden Anbindung an das städtische Leben. Perfekt für Familien oder Paare, die Wert auf eine ruhige Wohnlage legen, ohne auf eine gute Erreichbarkeit zu
verzichten.
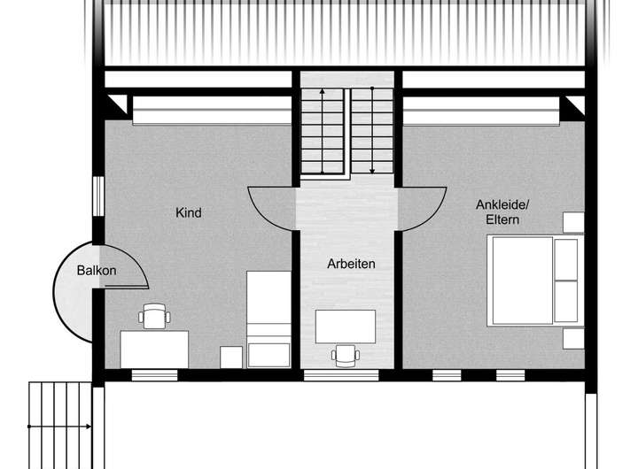
Grundriss
Erdgeschoss
>
>
Untergeschoss
>
>
Dachgeschoss
>
>
Adresse
76351 Linkenheim-Hochstetten
Interessante Orte
Preis- und Lageinformationen
Preistrend für Bestandsimmobilien in Linkenheim-Hochstetten