Entdecken Sie die Verwirklichung Ihres persönlichen Wohntraums mit dieser modernen Doppelhaushälfte in Montabaur! Sie bietet Ihnen nicht einfach nur ein Zuhause, sondern einen Lebensstil, der perfekt auf Ihre individuellen Wünsche zugeschnitten ist. Auf zwei geschmackvoll gestalteten Ebenen und einer großzügigen Wohnfläche von 133 m² erleben Sie fünf lichtdurchflutete Räume, darunter drei heimelige Schlafzimmer und zwei exklusive Badezimmer. Durch die ideale Kombination von Dusche und Badewanne im Hauptbad sowie das praktische Gäste-WC wird maximaler Komfort gewährleistet. Unser durchdachtes Hauskonzept ist sowohl für Paare als auch Familien konzipiert, die großzügige Wohnflächen und eine effiziente Nutzung kompakter Räume schätzen. Diese Immobilie bietet Ihnen eine intelligente Lösung gegen die steigenden Grundstückspreise in städtischen Gebieten.
Ruhiges Wohnen mit Freunden *inkl. Grundstück*KfW Förderung möglich
56410 Montabaur
Die vollständige Adresse der Immobilie erhalten Sie vom Anbieter.
Auf Karte anzeigen
Die vollständige Adresse der Immobilie erhalten Sie vom Anbieter.
Finanzierungszertifikat
In nur zwei Minuten zu Ihrem persönlichen Finanzierungszertifkat.
Infos
| Haustyp | Doppelhaushaelfte |
|---|---|
| Etagenzahl | 2 |
| Wohnfläche ca. | 133 m2 |
| Nutzfläche | 140,8 m2 |
| Grundstücksfläche | 313 m2 |
| Zimmer | 6 |
| Schlafzimmer | 4 |
| Badezimmer | 2 |
Kosten
| Kaufpreis |
427.227 € |
|---|---|
| Provision | Nein |
Finanzierungsrechner:
Kaufpreis:
600.000 €
Eigenkapital:
600.000 €
Monatliche Rate
0 €
Effektiver Jahreszins
0 %
Sollzinsbindung
10 Jahre
Bausubstanz & Energieausweis
| Baujahr | 2026 |
|---|---|
| Letzte Sanierung | 2026 |
| Bauphase | Haus in Planung (projektiert) |
| Qualität der Austattung | Gehoben |
| Heizungsart | Wärmepumpe |
| Energieausweis | liegt zur Besichtigung vor |
Beschreibung des Objekts
Ausstattung
Diese Doppelhaushälfte lässt keine Ausstattungswünsche offen. Mit ihrer luxuriösen Ausstattung erfüllt sie selbst höchste Anforderungen. Eine innovative Luft-Luft Wärmepumpe sorgt nicht nur für umweltfreundliches Heizen, sondern garantiert auch eine wirtschaftliche Energieversorgung. Der Energiestandard KfW40 verspricht dabei einen äußerst niedrigen Energieverbrauch, was sowohl Ihre Ausgaben reduziert als auch zur Umweltfreundlichkeit beiträgt. Hervorzuheben ist die ausgezeichnete Schallisolierung dank der STREIF Wandkonstruktion, die ruhiges Wohnen selbst bei direkter Nachbarschaft ermöglicht.
Lage
Lokalisiert in einem attraktiven Mischgebiet von Montabaur besticht diese Lage durch ihre erstklassige Infrastruktur. In einem Umkreis von etwa 2,5 km finden Sie alles Notwendige: Von Apotheken über Einkaufszentren bis hin zu Fitnessstudios und Schulen - sämtliche Annehmlichkeiten des täglichen Lebens sind bequem erreichbar. Der nahe gelegene Bahnhof und gute Busverbindungen ermöglichen flexible Mobilität, während der Anschluss an Schnellstraßen und Autobahnen rasche Verbindungen zu benachbarten Städten sicherstellt. Für Ihre Freizeitgestaltung bieten sich Parks, Spielplätze sowie die malerische Umgebung des Westerwaldes an.
Sonstige Angaben
STREIF bietet Ihnen mit der Ausbaustufe FASTFERTIG+ ein rundum sorglos Paket:
- 20-monatige Fair- und Festpreisgarantie
- Gedämmte Fundamentplatte inklusive
- STREIF-Luft-Luft-Wärmepumpen-Technologie mit integrierter Lüftungsanlage und Wärmerückgewinnung; alternativ viele weitere Heizsysteme verfügbar
- Hochwertige Haustür von KERA inklusive
- Fenster von Porta/Kömmerling in Anthrazit außen und Weiß innen inklusive
- Massivholz-Geschosstreppe aus hauseigener Produktion inklusive
- Sanitärobjekte von Markenproduzenten im Bad & WC inklusive
- Vollständige Elektroinstallation inklusive u.v.m.
- Vorbereitung zur Installation einer Photovoltaikanlage inklusive
- Individuelle Grundrissgestaltung und Raumaufteilung inklusive
Die STREIF-Passiv-Außenwandtechnik sowie sparsame Heizsysteme mit integrierter Wohnraumlüftung garantieren hervorragende Energieeffizienz und ein großartiges Raumklima, das insbesondere Allergiker erfreut.
Der hohe Qualitätsstandard eines STREIF-Energiespar-Hauses ist durch zahlreiche Auszeichnungen belegbar. Der Angebotspreis beinhaltet das Grundstück in der Standard-Ausbaustufe Fast-Fertig-Plus; Ihre Eigenleistung umfasst Spachtel-, Tapezier- und Malerarbeiten sowie Bodenbeläge und Innentüren. Baunebenkosten fallen zusätzlich an, zzgl. 26EUR/qm für die Straßen Erschließung. Der Grundstücksverkauf erfolgt über unsere Netzwerkpartner. Eventuelle Abweichungen bezüglich Anbauteilen sind möglich.
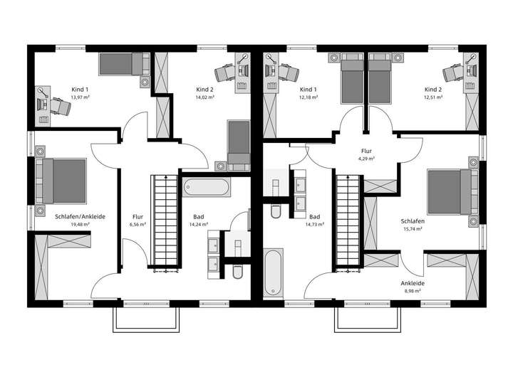
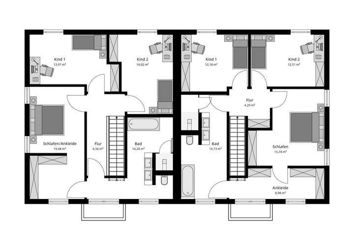
Grundriss
Grundriss EG
>
>
Grundriss OG
>
>
Adresse
56410 Montabaur
Interessante Orte
Preis- und Lageinformationen
Preistrend für Bestandsimmobilien in Montabaur