Willkommen in einem prächtigen Anwesen im charmanten Naumburg (Saale), das mit seiner beeindruckenden Geschichte und modernem Komfort begeistert. Dieses großzügige Haus, erbaut im Jahr 1908 und zuletzt 2018 modernisiert, erstreckt sich über eine Wohnfläche von ca. 273 Quadratmetern auf einem weitläufigen Grundstück von ca. 661 Quadratmetern. Mit neun Zimmern und drei Badezimmern bietet es reichlich Platz für anspruchsvolle Wohnbedürfnisse. Beim Betreten des Hauses werden Sie von einer Atmosphäre der Eleganz und des Stils empfangen. Die Kombination aus Holzböden, Fliesen und Teppichen verleiht jedem Raum eine warme und einladende Ausstrahlung. Die großzügigen Räume und die durchdachte Raumaufteilung schaffen ein Gefühl von Weite und Offenheit, das durch die hochwertigen Materialien und die sorgfältige Gestaltung noch verstärkt wird.
Besondere Merkmale dieses Anwesens sind der Keller, der zusätzlichen Stauraum und vielseitige Nutzungsmöglichkeiten bietet, sowie der wunderschöne Garten, der zum Entspannen und Genießen der Natur einlädt. Ein Kamin sorgt für gemütliche Abende, während die Balkone zusätzlichen Außenraum bieten, um die frische Luft zu genießen. Die Gasheizung garantiert wohlige Wärme in den kälteren Monaten und die moderne Küche sowie das Gäste-WC runden das luxuriöse Wohngefühl ab. Von Küche und Esszimmer aus öffnet sich der Blick in den sonnigen, nach Süden ausgerichteten Garten – ein grünes Paradies, in dem Ihre Kinder behütet spielen und aufwachsen können.
Dieses außergewöhnliche Haus vereint historischen Charme mit modernem Luxus und bietet eine einmalige Gelegenheit, in einer der begehrtesten Lagen Naumburgs zu wohnen. Lassen Sie sich von der einzigartigen Kombination aus Tradition und zeitgemäßem Komfort verzaubern und erleben Sie ein Zuhause, das keine Wünsche offenlässt.
Historisches Luxusdomizil mit modernem Komfort in begehrter Lage von Naumburg (Saale)
06618 Naumburg (Saale)
Die vollständige Adresse der Immobilie erhalten Sie vom Anbieter.
Auf Karte anzeigen
Die vollständige Adresse der Immobilie erhalten Sie vom Anbieter.
Finanzierungszertifikat
In nur zwei Minuten zu Ihrem persönlichen Finanzierungszertifkat.
Infos
| Haustyp | Villa |
|---|---|
| Etagenzahl | 3 |
| Wohnfläche ca. | 273 m2 |
| Grundstücksfläche | 661 m2 |
| Zimmer | 9 |
| Badezimmer | 3 |
Kosten
| Kaufpreis |
750.000 € |
|---|---|
| Provision |
3.57 % inkl. gesetzl. MwSt. |
Finanzierungsrechner:
Kaufpreis:
600.000 €
Eigenkapital:
600.000 €
Monatliche Rate
0 €
Effektiver Jahreszins
0 %
Sollzinsbindung
10 Jahre
Bausubstanz & Energieausweis
| Baujahr | 1908 |
|---|---|
| Letzte Sanierung | 2018 |
| Denkmalschutzobjekt | Ja |
| Objektzustand | Gepflegt |
| Wesentliche Energieträger | Gas |
| Energieausweis | liegt vor |
| Energieausweistyp | Verbrauchsausweis |
| Energieverbrauchskennwert | 64,5 kWh/(m²*a) |
| Energieeffizienzklasse | B |
64,5
kWh/(m²*a)
Energieeffizienzklasse B
- A+
- A
- B
- C
- D
- E
- F
- G
- H
- 0
- 25
- 50
- 75
- 100
- 125
- 150
- 175
- 200
- 225
- >250
Beschreibung des Objekts
Ausstattung
Einbauküche
Dielenboden
Fliesen
Teppich
Vollunterkellert
Kamin
Lage
Die exklusive Immobilie befindet sich in einer der begehrtesten Lagen der Region. Naumburg, bekannt für seine reiche Geschichte und seine kulturellen Schätze, bietet eine einzigartige Mischung aus historischem Charme und modernem Komfort, die anspruchsvolle Käufer anzieht. Die Stadt ist berühmt für ihren beeindruckenden Dom aus der Spätromanik, der seit 2018 zum UNESCO-Weltkulturerbe gehört und nur wenige Minuten von der Immobilie entfernt liegt.
Die Infrastruktur in Naumburg ist hervorragend ausgebaut. Der Hauptbahnhof ist in nur etwa 10 Minuten mit dem Auto erreichbar und bietet direkte Verbindungen zu wichtigen Städten wie Leipzig und Halle. Für internationale Reisen ist der Flughafen Leipzig/Halle in etwa einer Stunde mit dem Auto erreichbar. Die Anbindung an die Autobahn A9 ermöglicht zudem eine bequeme Erreichbarkeit weiterer Metropolen.
Freizeitaktivitäten und kulturelle Erlebnisse sind in Hülle und Fülle vorhanden. Die malerische Saale-Unstrut-Region lädt zu Weinverkostungen und Wanderungen ein, während das nahegelegene Theater Naumburg und das Kunsthaus Apolda kulturelle Highlights bieten. Für Golfbegeisterte ist der renommierte Golfclub Leipzig in weniger als einer Stunde erreichbar.
Diese außergewöhnliche Lage vereint die Ruhe und Schönheit der Natur mit der Nähe zu urbanen Annehmlichkeiten und kulturellen Höhepunkten. Ein Wohnsitz in Naumburg verspricht nicht nur ein Zuhause, sondern ein Lebensgefühl von unvergleichlicher Eleganz und Raffinesse.
Sonstige Angaben
Der Makler-Vertrag mit uns kommt durch die Beauftragung der Maklertätigkeit in Textform (z.B. E-Mail mit Bestätigung der gewollten Inanspruchnahme) zustande. Die Höhe der Courtage richtet sich nach den ab dem 23.12.2020 in Kraft getretenen gesetzlichen Regelungen zur Teilung der Maklercourtage. Hiernach wird die Courtage regelmäßig für beide Parteien (Eigentümer und Käufer) jeweils in Höhe von 3 % zuzüglich Umsatzsteuer in jeweils geltender Höhe, derzeit also insgesamt 3,57 % des Kaufpreises einschließlich Umsatzsteuer bei notariellem Vertragsabschluss verdient und fällig. Die Höhe der Bruttocourtage unterliegt einer Anpassung bei Steuersatzänderung. Grunderwerbssteuer, Notar- und Gerichtskosten trägt der Käufer. Alle Angaben sind ohne Gewähr und basieren ausschließlich auf Informationen, die uns von unserem Auftraggeber übermittelt wurden. Wir übernehmen keine Gewähr für die Vollständigkeit, Richtigkeit und Aktualität dieser Angaben. Zwischenverkauf bleibt vorbehalten. Sollte das von uns nachgewiesene Objekt bereits bekannt sein, teilen Sie uns dieses bitte unverzüglich mit. Die Weitergabe dieses Exposees an Dritte ohne unsere Zustimmung löst gegebenenfalls Courtage- bzw. Schadensersatzansprüche aus. Im Übrigen gelten die beigefügten allgemeinen Geschäftsbedingungen für die Rechtsbeziehung zwischen Ihnen und der Saxonia Metropol GmbH (Lizenznehmer der Engel & Völkers Residential GmbH).
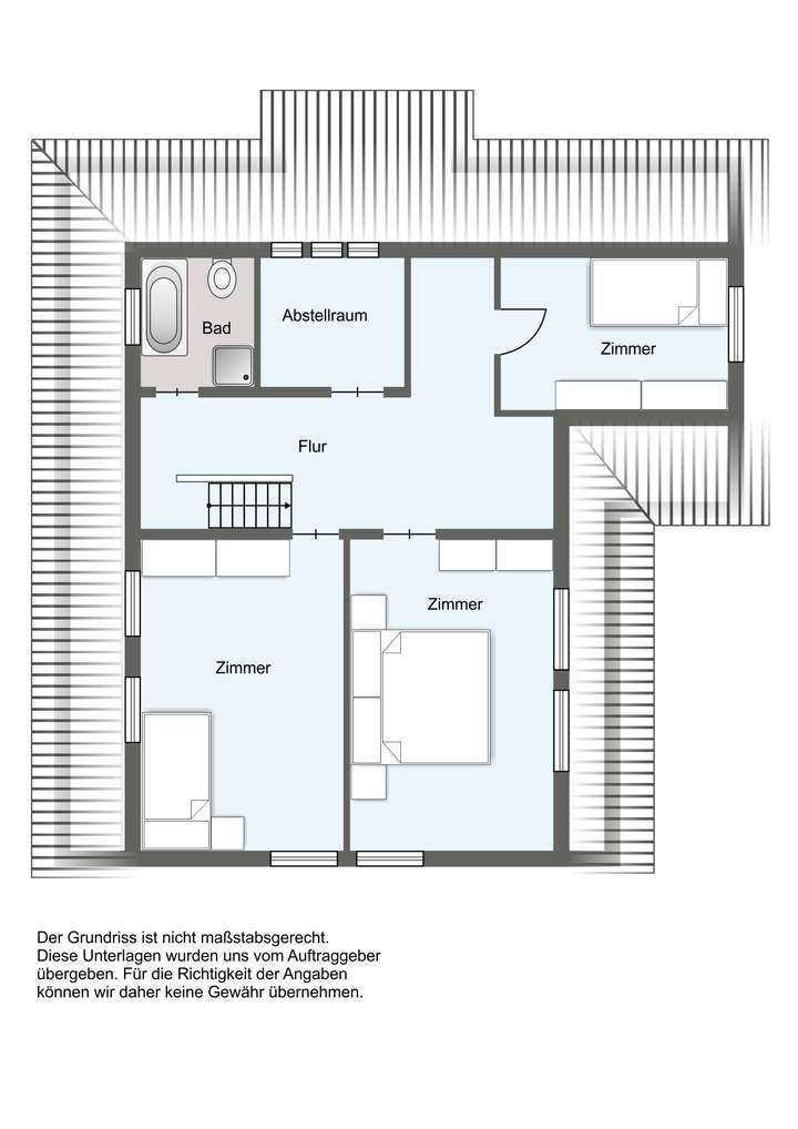
Grundriss
Erdgeschoss
>
>
Obergeschoss
>
>
Dachgeschoss
>
>
Keller
>
>
Adresse
06618 Naumburg (Saale)
Interessante Orte
Preis- und Lageinformationen
Preistrend für Bestandsimmobilien in Naumburg (Saale)