Die Wohnung mit insgesamt 214 m² Wohnfläche wurde 2021 umfassend saniert und modern ausgebaut. Dabei erhielt das historische Erdgeschoss neue Anbauten in Holzständerbauweise, die den Grundriss großzügiger und offener gestalteten. Der gesamte untere Bereich der Wohnung verfügt über eine Fußbodenheizung, gespeist durch eine Luft-Wasser-Wärmepumpe. Alle Fenster und Türen sind mit elektrischen Rollos ausgestattet und sorgen für helle, lichtdurchflutete Räume.
Über die Eingangstür betritt man einen großen Loungebereich, der sich nahtlos an den offenen Küchen-, Ess- und Wohnbereich anschließt. An kühlen Abenden sorgt ein Kamin für wohlige Wärme und gemütliche Stunden. Die moderne Küche mit Kochinsel, zahlreichen Einbauschränken und hochwertigen Geräten lässt keine Wünsche offen. Der angrenzende Essbereich geht in das helle Wohnzimmer über, von dem aus man einen wunderbaren Blick in den Garten mit Pool hat und direkten Zugang zur Terrasse erhält.
Das Hauptschlafzimmer verfügt über ein großzügiges Ankleidezimmer mit direktem Zugang zum stilvollen Masterbad, das mit Dusche und Wanne ausgestattet ist. Insgesamt gibt es zwei weitere Zimmer sowie einen Hauswirtschaftsraum. Beide Bäder bestechen durch ihre hochwertige Ausstattung und modernes Design mit Blick auf die Weinberge und das Spitzhaus.
Im gesamten Haus wurden ausschließlich hochwertige Materialien verwendet und besondere Details geschickt in Szene gesetzt. Großflächige Fliesen im Format 1,20 m x 1,20 m sorgen – außer in den Schlafräumen – für ein elegantes Wohngefühl. Das ausgeklügelte Lichtkonzept setzt weitere Akzente.
Die Wohnung zeichnet sich durch eine äußerst energieeffiziente Bauweise aus. Eine Luft-Wasser-Wärmepumpe und eine Solaranlage zur Warmwasseraufbereitung sorgen für niedrige Betriebskosten.
Der Garten wurde bereits grob angelegt. Die Materialien für die Wege- und Terrassenbeläge sind vorhanden und müssen nur noch verlegt werden. Allein dieser Posten hat einen hohen fünfstelligen Wert. Der Pool befindet sich im Rohbau und wartet auf die Fertigstellung.
EINE LUXURIÖSE WOHNUNG WIE IHR EIGENES HAUS MIT EINBAUSCHRÄNKEN EINBAUKÜCHE KAMIN UND WEINKELLER
01445 Radebeul
Die vollständige Adresse der Immobilie erhalten Sie vom Anbieter.
Auf Karte anzeigen
Die vollständige Adresse der Immobilie erhalten Sie vom Anbieter.
Finanzierungszertifikat
In nur zwei Minuten zu Ihrem persönlichen Finanzierungszertifkat.
Infos
| Haustyp | Bungalow |
|---|---|
| Etagenzahl | 1 |
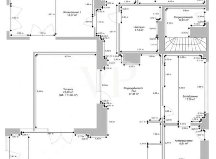
| Wohnfläche ca. | 215 m2 |
| Grundstücksfläche | 707 m2 |
| Zimmer | 5 |
| Badezimmer | 2 |
| Garage/Stellplatz | Carport |
| Anzahl Garage/Stellplatz | 1 |
Kosten
| Kaufpreis |
722.000 € |
|---|---|
| Provision |
Käuferprovision beträgt 3,57 % (inkl. MwSt.) des beurkundeten Kaufpreises |
Finanzierungsrechner:
Kaufpreis:
600.000 €
Eigenkapital:
600.000 €
Monatliche Rate
0 €
Effektiver Jahreszins
0 %
Sollzinsbindung
10 Jahre
Bausubstanz & Energieausweis
| Baujahr | 2021 |
|---|---|
| Bauphase | Haus fertig gestellt |
| Objektzustand | Neuwertig |
| Qualität der Austattung | Gehoben |
| Heizungsart | Zentralheizung |
| Energieausweis | liegt vor |
| Energieausweistyp | Bedarfsausweis |
| Energieverbrauchskennwert | 65,9 kWh/(m²*a) |
| Energieeffizienzklasse | B |
65,9
kWh/(m²*a)
Energieeffizienzklasse B
- A+
- A
- B
- C
- D
- E
- F
- G
- H
- 0
- 25
- 50
- 75
- 100
- 125
- 150
- 175
- 200
- 225
- >250
Beschreibung des Objekts
Ausstattung
*Stilvolle Eigentumswohnung*
*moderne Luft Wasser Wärmepumpe*
*Fußbodenheizung in allen Räumen*
*großflächige Fliesen im 1,20m x 1,20 m Format*
*inkl. moderne Einbauküche*
*Pool und Terrasse im Rohbau*
*großer Garten mit Spitzhausblick*
*ca 707 m² Grundstücksanteil*
*Fertigstellung der Außenanlagen muss vom Erwerber erbracht werden*
Lage
Das Anwesen befindet sich in einer schönen Wohnlage, vorzugsweise am Stadtrand und somit im alten Dorfkern von Radebeul, Gemarkung Alt-Radebeul. Die Gemarkung wurde 1349 erstmal erwähnt und hatte im Jahr 1900 eine Größe von 242 Hektar. Nach Zusammenschluss mit den umliegenden Gemarkungen erhielt Radebeul 1924 das Stadtrecht. Der alte Dorfkern von Radebeul ist ein westslawisches Rundlingsdorf mit ursprünglich acht, später zwölf Bauernhöfen. Als Mitglieder der Altgemeinde wurden diese zwölf Bauerngutsbesitzer die Zwölf Apostel genannt.
Sonstige Angaben
GELDWÄSCHE: Als Immobilienmaklerunternehmen ist die von Poll Immobilien GmbH nach § 2 Abs. 1 Nr. 14 und § 11 Abs. 1, 2 Geldwäschegesetz (GwG) dazu verpflichtet, bei der Begründung einer Geschäftsbeziehung die Identität des Vertragspartners festzustellen und zu überprüfen, bzw. sobald ein ernsthaftes Interesse an der Durchführung des Immobilienkaufvertrages besteht. Hierzu ist es erforderlich, dass wir nach § 11 Abs. 4 GwG die relevanten Daten Ihres Personalausweises festhalten (wenn Sie als natürliche Person handeln) – beispielsweise mittels einer Kopie. Bei einer juristischen Person benötigen wir eine Kopie des Handelsregisterauszugs, aus welchem der wirtschaftlich Berechtigte hervorgeht. Das Geldwäschegesetz sieht vor, dass der Makler die Kopien bzw. Unterlagen fünf Jahre aufbewahren muss. Als unser Vertragspartner haben Sie auch eine Mitwirkungspflicht nach § 11 Abs. 6 GwG.
HAFTUNG: Wir weisen darauf hin, dass die von uns weitergegebenen Objektinformationen, Unterlagen, Pläne etc. vom Verkäufer bzw. Vermieter stammen. Eine Haftung für die Richtigkeit oder Vollständigkeit der Angaben übernehmen wir daher nicht. Es obliegt daher unseren Kunden, die darin enthaltenen Objektinformationen und Angaben auf ihre Richtigkeit hin zu überprüfen. Alle Immobilienangebote sind freibleibend und vorbehaltlich Irrtümer, Zwischenverkauf- und Vermietung oder sonstiger Zwischenverwertung.
UNSER SERVICE FÜR SIE ALS EIGENTÜMER:
Planen Sie den Verkauf oder die Vermietung Ihrer Immobilie, so ist es für Sie wichtig, deren Marktwert zu kennen. Lassen Sie kostenfrei und unverbindlich den aktuellen Wert Ihrer Immobilie professionell durch einen unserer Immobilienspezialisten einschätzen. Unser bundesweites und internationales Netzwerk ermöglicht es uns, Verkäufer bzw. Vermieter und Interessenten bestmöglich zusammenzuführen.
Adresse
01445 Radebeul
Interessante Orte
Preis- und Lageinformationen
Preistrend für Bestandsimmobilien in Radebeul