Willkommen in Ihrem potenziellen neuen Zuhause im schönen Meerane.
Das charmante Anwesen in der idyllischen Gemeinde bietet Ihnen die perfekte
Kombination aus Komfort und ländlicher Ruhe. Die hier angebotene Doppelhaushälfte wurde ca. im Jahr 1930 auf einem 520,00 m² großen Grundstück erbaut. Das Haus, mit Anbau, verfügt über zwei Etagen mit insgesamt 99,57 m² Wohnfläche. Weiterhin bietet das Haus einen begrünten Garten, einen kleinen Vorgarten und eine Garage.
Finanzierungszertifikat
In nur zwei Minuten zu Ihrem persönlichen Finanzierungszertifkat.
Infos
| Haustyp | Doppelhaushaelfte |
|---|---|
| Etagenzahl | 2 |
| Wohnfläche ca. | 99 m2 |
| Grundstücksfläche | 520 m2 |
| Bezugsfrei ab | sofort |
| Zimmer | 4 |
| Schlafzimmer | 3 |
| Badezimmer | 1 |
| Garage/Stellplatz | Garage |
| Anzahl Garage/Stellplatz | 1 |
Kosten
| Kaufpreis |
85.000 € |
|---|---|
| Provision |
5,95% inkl. MwSt. jedoch mind. 3.570,00€ inkl. MwSt. |
Finanzierungsrechner:
Kaufpreis:
600.000 €
Eigenkapital:
600.000 €
Monatliche Rate
0 €
Effektiver Jahreszins
0 %
Sollzinsbindung
10 Jahre
Bausubstanz & Energieausweis
| Baujahr | 1930 |
|---|---|
| Letzte Sanierung | 1930 |
| Bauphase | Haus fertig gestellt |
| Objektzustand | Gepflegt |
| Heizungsart | Gas-Heizung |
| Wesentliche Energieträger | Gas |
| Energieausweis | liegt vor |
| Energieausweistyp | Verbrauchsausweis |
Beschreibung des Objekts
Ausstattung
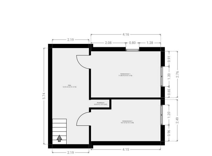
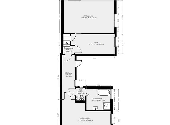
Im Erdgeschoss des Haupthauses befindet sich die Küche sowie das Wohnzimmer. Der Keller ist von der Küche aus begehbar. Im Obergeschoss befinden sich zwei kleinere Schlafzimmer. Der Anbau verfügt über ein Badezimmer sowie ein weiteres, größeres Schlafzimmer.
Über die letzten Jahre wurde eine neue Gastherme eingebaut (2021) sowie das
Dach des Haupthauses neu gedeckt (2006).
Auf Grund der bestehenden Ausstattungsmerkmale eignet sich das
Einfamilienhaus perfekt für junge Familien, die ihr Eigenheim nach eigenen
Wünschen und Vorstellungen gestalten möchten.
Sprechen Sie uns gern für einen unverbindlichen Besichtigungstermin an.
Lage
Die Einfamilienhaus befindet sich in einer ruhigen, familienfreundlichen
Wohngegend am Stadtrand von Meerane. Die Lage bietet viel Grün und eine
angenehme Nachbarschaft, ideal für Familien mit Kindern. Schulen, Kindergärten und Einkaufsmöglichkeiten sind gut erreichbar. Die Verkehrsanbindung ist ebenfalls vorteilhaft: Die Autobahn A4 ist in wenigen Minuten erreichbar, was eine schnelle Verbindung nach Zwickau, Chemnitz oder Leipzig ermöglicht.
Grundriss
Grundriss Obergeschoss
>
>
Grundriss Erdgeschoss
>
>
Adresse
Am Fuchsberg 48, 08393 Meerane
Interessante Orte
Preis- und Lageinformationen
Preistrend für Bestandsimmobilien in Meerane