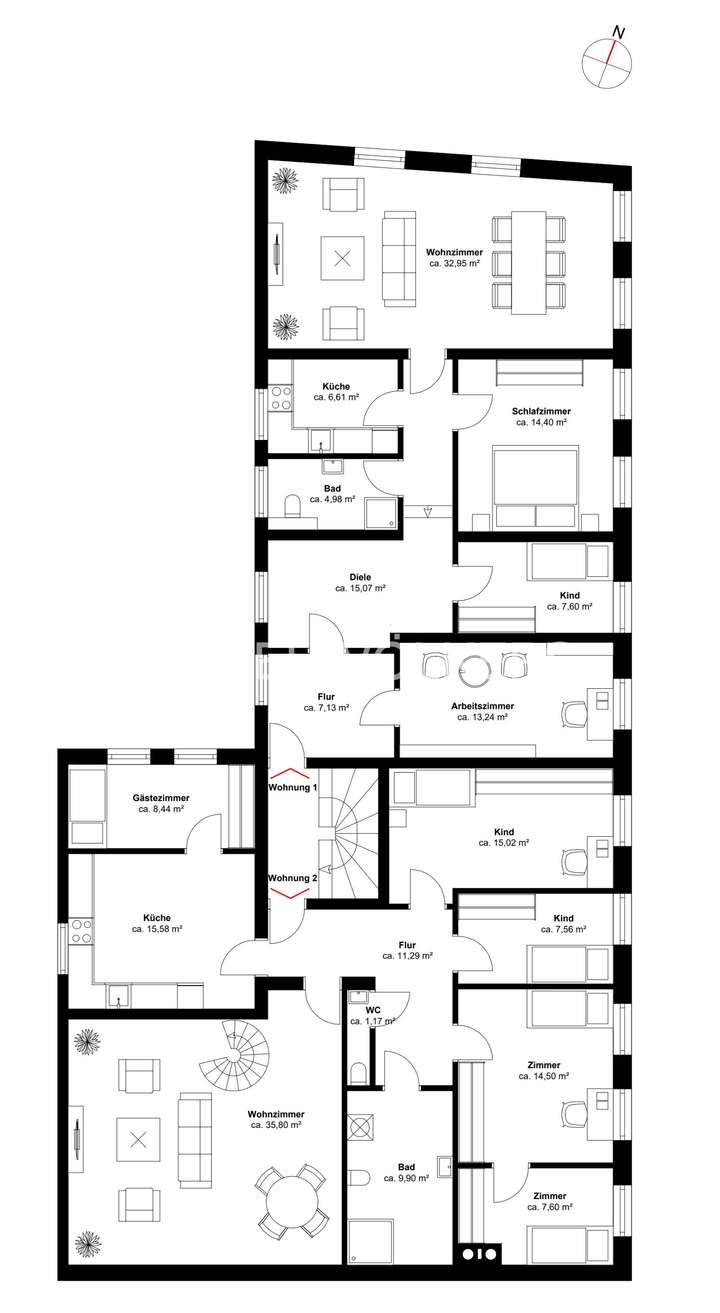
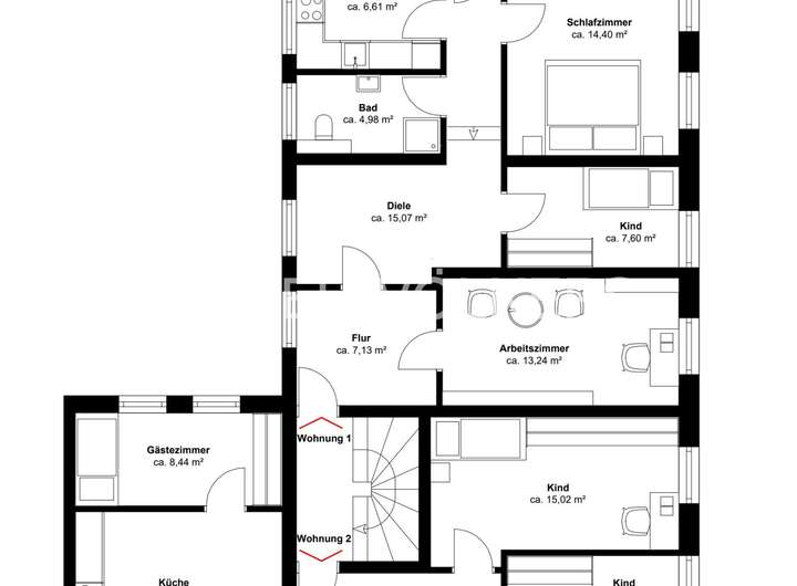
Dieses großzügige Wohn- und Geschäftshaus bietet ein einmaliges Potential in zentraler Lage von Grimmen: Drei Wohnungen, vier Ladeneinheiten und ein Produktionsgebäude auf dem ca. 870 m² großen Grundstück bieten diverse Möglichkeiten, Wohnen und Arbeiten zu verbinden oder komplett extern zu vermieten. Die Gesamtnutzfläche der Gebäude von etwa 1.253 m² teilt sich in ca. 417 m² Wohnfläche und ca. 836 m² Nutzfläche auf. Die Ladeneinheiten sind jeweils ca. 29 bis 80 m² groß, während die drei Wohnungen eine Größe von ca. 102 bis 173 m² haben. Das teilunterkellerte Produktionsgebäude bietet insgesamt eine Nutzfläche von ca. 580 m². Das Hauptgebäude mit den Wohn- und Geschäftseinheiten wurde 1993 in massiver Bauweise errichtet. Hier verkauften noch bis Mai 2023 unter anderem ein Imbiss und eine Fleischerei ihre Waren. Es besteht auch die Möglichkeit, zwei oder drei Läden zu einer größeren Ladeneinheit zusammenzuschließen. Das Produktionsgebäude, in dem ebenfalls bis Mai 2023 die Fleischerei ihre Waren herstellte, wurde um 1985 errichtet. Die Einrichtungen der Läden der ehemaligen Fleischerei und des Imbisses sind noch weitgehend erhalten. Dazu zählen zum Beispiel Kühlzellen, Verkaufstheken inklusive der Ladeneinrichtungen und diverse Gerätschaften zur Fleischverarbeitung. Die drei großen Wohnungen, die sich im ersten und zweiten Obergeschoss befinden, bieten viele Möglichkeiten für Gestaltung und Nutzung. Es handelt sich um 4 - bis 6 -Raum-Wohnungen, wobei eine Einheit sogar in eine Maisonette-Wohnung umgebaut wurde. Aktuell ist nur eine Ladeneinheit von ca. 29 m² für eine monatliche Kaltmiete von 300,00 € vermietet. Alle Einheiten werden durch eine Gasheizungsanlage mit mehreren regelbaren Heizkreisen versorgt und auf dem Innenhof stehen sieben eigene Stellplätze zur Verfügung. Somit eignet sich diese Immobilie besonders für Investoren, Anleger und ambitionierte Unternehmer, die zum Beispiel im Bereich Catering tätig sind oder es werden wollen.
Wohn- und Geschäftshaus im Herzen von Grimmen
18507 Grimmen
Die vollständige Adresse der Immobilie erhalten Sie vom Anbieter.
Auf Karte anzeigen
Die vollständige Adresse der Immobilie erhalten Sie vom Anbieter.
Finanzierungszertifikat
In nur zwei Minuten zu Ihrem persönlichen Finanzierungszertifkat.
Infos
| Haustyp | Sonstige |
|---|---|
| Wohnfläche ca. | 417 m2 |
| Nutzfläche | 836 m2 |
| Grundstücksfläche | 870 m2 |
| Bezugsfrei ab | sofort verfügbar |
| Zimmer | 16 |
| Schlafzimmer | 12 |
| Badezimmer | 5 |
| Anzahl Garage/Stellplatz | 7 |
Kosten
| Kaufpreis |
320.000 € |
|---|---|
| Provision |
7.14 % inkl. gesetzl. MwSt. |
Finanzierungsrechner:
Kaufpreis:
600.000 €
Eigenkapital:
600.000 €
Monatliche Rate
0 €
Effektiver Jahreszins
0 %
Sollzinsbindung
10 Jahre
Bausubstanz & Energieausweis
| Baujahr | 1993 |
|---|---|
| Heizungsart | Zentralheizung |
| Wesentliche Energieträger | Gas |
| Energieausweis | liegt vor |
| Energieausweistyp | Verbrauchsausweis |
| Energieverbrauchskennwert | 131,6 kWh/(m²*a) |
| Energieeffizienzklasse | E |
131,6
kWh/(m²*a)
Energieeffizienzklasse E
- A+
- A
- B
- C
- D
- E
- F
- G
- H
- 0
- 25
- 50
- 75
- 100
- 125
- 150
- 175
- 200
- 225
- >250
Beschreibung des Objekts
Ausstattung
Einbauküche
verbaut
Fliesen
Laminat
PVC
Teilunterkellert
Lage
Das Objekt befindet sich im Zentrum der Kleinstadt Grimmen im Landkreis Vorpommern-Rügen. Grimmen hat etwa 10.000 Einwohner und liegt zwischen Stralsund und Greifswald, zwei wirtschaftlich wichtigen Zentren Mecklenburg-Vorpommerns. Die Stadt hat zwei Grundschulen, eine Regionalschule sowie weitere Sonderschulen. Nahegelegene Hochschulen befinden sich in Greifswald (Universität) und Stralsund (Hochschule). Somit bietet die Region ein hohes Fachkräftepotential und gute Bildungsmöglichkeiten. Mehrere Einkaufs- und Versorgungsmöglichkeiten sowie Restaurants befinden sich in unmittelbarer Nähe des Objekts. Das Krankenhaus Grimmen ist ca. fünf km entfernt. Des Weiteren bietet Grimmen viele Freizeitangebote, wie einen Tierpark oder ein Naturschwimmbad. Im unmittelbaren Umkreis von Grimmen haben sich vor allem Unternehmen der Branchen Energie und Fertigung etabliert sowie diverse weitere Arbeitgeber. Die Stadt Grimmen wird auch gern von vielen Pendlern als Wohnort genutzt. Die Hansestädte Greifswald und Stralsund als nächstgrößere Städte sind mit dem Auto weniger als ca. 30 Minuten entfernt. Die Autobahn A20 befindet sich in unmittelbarer Nähe zu Grimmen und ist über zwei Anschlussstellen in etwa fünf km erreichbar. Dadurch ist Grimmen gut an alle größeren Städte angebunden. Die Großstädte Hamburg und Berlin sind ca. 230 bzw. ca. 250 km entfernt. Somit bietet die Umgebung des Objekts gute Voraussetzungen sowohl für Senioren als auch für Familien und junge Menschen.
Sonstige Angaben
Der Makler-Vertrag mit uns kommt durch schriftliche Vereinbarung oder durch die Inanspruchnahme unserer Maklertätigkeit auf der Basis des Objekt-Exposés und seiner Bedingungen zustande. Die Käufercourtage in Höhe von 7,14 % auf den Kaufpreis einschließlich gesetzlicher Mehrwertsteuer ist bei notariellem Vertragsabschluss verdient und fällig. Die Höhe der Bruttocourtage unterliegt einer Anpassung bei Steuersatzänderung. EuV Ostsee GmbH erhält einen unmittelbaren Zahlungsanspruch gegenüber dem Käufer. Grunderwerbssteuer, Notar- und Gerichtskosten trägt der Käufer.
Grundriss
Erdgeschoss
>
>
Obergeschoss
>
>
Dachgeschoss
>
>
Adresse
18507 Grimmen
Interessante Orte
Preis- und Lageinformationen
Preistrend für Bestandsimmobilien in Grimmen