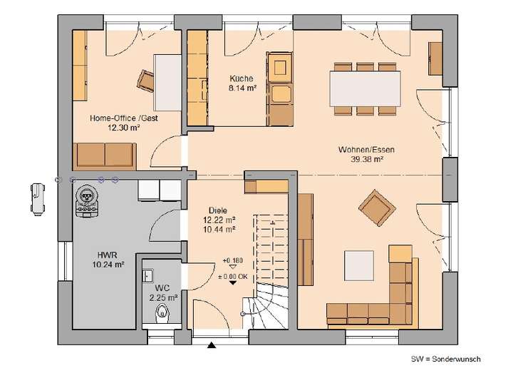
Dieses außergewöhnliche Architektenhaus wartet auf Sie. Architektenhaus Anto präsentiert sich vielfältig auf zwei Etagen mit einem innovativen Grundriss, der Wünsche wahr werden lässt. Im Erdgeschoss betreten Sie das Haus durch eine geräumige Diele, die offen in die Küche übergeht. Die Küche wird zum Mittelpunkt des Wohnbereiches. Direkt daneben befindet sich der Esstisch, wo man gemeinsam isst und Zeit verbringt. Der Wohnbereich mit Couch und TV schließt daran an und lädt zum Entspannen ein. Neben der Küche führt eine Tür in das praktische Home-Office. Ebenfalls im Erdgeschoss sind ein Hauswirtschaftsraum und ein Gäste-WC vorhanden.
Abgerundet wird das Satteldachhaus im Dachgeschoss mit einem Elternschlafzimmer mit einer Ankleide, zwei Kinderzimmer und einem geräumigen Familienbad.
Dieses Haus wird nach Ihren individuellen Wünschen geplant und ausgestattet!
Ein echter Blickfang!
01683 Nossen
Die vollständige Adresse der Immobilie erhalten Sie vom Anbieter.
Auf Karte anzeigen
Die vollständige Adresse der Immobilie erhalten Sie vom Anbieter.
Finanzierungszertifikat
In nur zwei Minuten zu Ihrem persönlichen Finanzierungszertifkat.
Infos
| Haustyp | Einfamilienhaus |
|---|---|
| Wohnfläche ca. | 143 m2 |
| Grundstücksfläche | 1.341 m2 |
| Zimmer | 5 |
| Schlafzimmer | 3 |
| Badezimmer | 1 |
| Anzahl Garage/Stellplatz | 2 |
Kosten
| Kaufpreis |
484.683 € |
|---|---|
| Provision | Nein |
Finanzierungsrechner:
Kaufpreis:
600.000 €
Eigenkapital:
600.000 €
Monatliche Rate
0 €
Effektiver Jahreszins
0 %
Sollzinsbindung
10 Jahre
Bausubstanz & Energieausweis
| Baujahr | 2025 |
|---|---|
| Bauphase | Haus in Planung (projektiert) |
| Objektzustand | Erstbezug |
| Qualität der Austattung | Gehoben |
| Heizungsart | Wärmepumpe |
| Wesentliche Energieträger | Strom |
| Energieausweis | liegt vor |
| Energieausweistyp | Bedarfsausweis |
| Energieverbrauchskennwert | 16,8 kWh/(m²*a) |
| Energieeffizienzklasse | A+ |
16,8
kWh/(m²*a)
Energieeffizienzklasse A+
- A+
- A
- B
- C
- D
- E
- F
- G
- H
- 0
- 25
- 50
- 75
- 100
- 125
- 150
- 175
- 200
- 225
- >250
Beschreibung des Objekts
Ausstattung
5 Zimmer, offene Küche, Diele, Flur, Bad, WC, Ankleide, Hauswirtschaftsraum
Das gezeigte Traumhaus im Überblick:
+ Schlüsselfertiges Massivhaus im Sinne der Ausstattungsbeschreibung "Edition 25"
+ Zukunftsorientierte Energieausstattung in Form einer Luft-Wasser-Wärmepumpe und Fußbodenheizung sowie einer kontrollierten Wohnraumlüftung mit Wärmerückgewinnung
+ Inklusive Bodenplatte
Beste Markenausstattung in jedem Kern-Haus:
+ Zimmermannsmäßiger Dachstuhl aus Konstruktionsvollholz
+ Dacheindeckung mit Betondachsteinen von Braas
+ Hochwertiger Kunstharz-Außenputz für eine langlebige Fassade
+ Vollständige Badausstattung von Villeroy & Boch mit Badewanne und flacher Duschwanne sowie einer Echtglasduschkabine
+ Fliesen von Villeroy & Boch in Bad und WC
+ Haustür mit 5-fach-Sicherheitsverriegelung
+ Erstklassige Innentüren der Marke Herholz
+ Fenster mit 3-Scheiben-Wärmeschutzverglasung und Rollläden
+ Stahl-Holz-Treppe mit individueller Farbgestaltungsmöglichkeit
+ Vollständige und überdurchschnittliche Elektroausstattung inklusive Klingelanlage und Netzwerkdosen
+ Rauchmelder für Ihre Sicherheit
+ Alle Leistungen aus einer Hand
+ Alle Planungs- und Architektenleistungen
+ Einsatz regionaler Handwerksbetriebe
+ Baubegleitende 5-Phasen-TÜV-Prüfung und Blower-Door-Test
+ Individuelle Anpassung auf Ihre Bedürfnisse
+ Auf Wunsch mit Keller erhältlich
+ Auf Wunsch mit weiteren Energietechniken erhältlich
Lage
Am Rande des charmanten Nossener Ortsteils Eula erwartet Sie ein großzügiges Baugrundstück mit viel Potenzial für Ihre Wohnideen. Mit einer Fläche von 1.341m² bietet das Grundstück ideale Voraussetzungen für den Bau eines Ein- oder Zweifamilienhauses – ganz nach Ihren individuellen Vorstellungen.
Die Lage überzeugt durch ihre ruhige, ländliche Umgebung und gleichzeitig durch eine hervorragende Anbindung: Über das nahegelegene Nossener Dreieck (A4/A14) erreichen Sie Dresden, Leipzig oder Chemnitz in kurzer Zeit. Damit ist der Standort besonders attraktiv für Pendler, die das Leben im Grünen mit städtischer Nähe verbinden möchten.
Das Grundstück befindet sich in einer gewachsenen Wohngegend und kann im Rahmen der Lückenbebauung bebaut werden. Möglich ist eine 1,5- bis 2-geschossige Bauweise – auch ein Keller ist realisierbar. Die Erschließung ist nahezu vollständig: Strom, Wasser und Abwasser liegen bereits an. Ein Gasanschluss ist nicht vorhanden, was den Weg für moderne, zukunftsorientierte Heizsysteme wie Wärmepumpen frei macht. Hochspannungsleitungen verlaufen nicht über das Grundstück.
Das Grundstück ist derzeit unbebaut und sofort verfügbar. Es eignet sich ideal für Bauherren, die in naturnaher Umgebung ein neues Zuhause schaffen möchten – sei es für sich selbst oder als Generationenprojekt.
Nutzen Sie diese Gelegenheit, in einer attraktiven Region mit hohem Lebenswert und ausgezeichneter Infrastruktur Ihren Wohntraum zu verwirklichen.
Sonstige Angaben
Kern-Haus
Kern-Haus baut individuelle und massive Architektenhäuser zu einem attraktiven Preis-Leistungs-Verhältnis – und das bereits mit einer Erfahrung seit 1980. Bei Kern-Haus erhalten Sie unter anderem 10 Jahre Gewährleistung auf die wesentlichen Bauleistungen, bis zu 24 Monate Preissicherheit sowie eine dokumentierte 5-Phasen-TÜV-Prüfung während der Bauphase. Jedes Kern-Haus als Effizienzhaus 40 ist bereits QNG-zertifiziert durch die Deutsche Gesellschaft für nachhaltiges Bauen (DGNB).
40 Jahre Expertise für das massive, energieeffiziente Bauen: Kern-Haus realisiert Massivhäuser in Ziegel, Bims, Porenbeton oder Stahlbeton (DuoTherm).
Kern-Haus setzt auf eine hohe Bauqualität der Handwerker und auf eine große Auswahl starker Marken. So verwendet Kern-Haus beim Bau Ihres Hauses nur hochwertige Markenprodukte renommierter Hersteller – wie etwa Produkte von Villeroy & Boch.
Preise und Auszeichnungen von Kern-Haus:
- German Brand Award in den Jahren 2018 und 2021
- Hausbau Design Award: Sieger in den Jahren 2017, 2018, 2019, 2020, 2021, 2022 und 2023
- Deutscher Traumhauspreis: Sieger in den Jahren 2014, 2015, 2016 und 2018 und Silber 2017, 2020 und 2021
- Mittelstandspreis "Top 100" in den Jahren 2014, 2016, 2018, 2020 und 2022
- German Design Award im Jahr 2018
Weitere Informationen
Der gezeigte Preis versteht sich inklusive Grundstück und exklusive der Baunebenkosten.
Ihre Ansprechpartnerin Nicole Ulbricht vom Kern-Haus-Team in Dresden freut sich darauf Ihre Fragen zu beantworten. Jetzt anrufen: 0351 / 8391319
Grundriss
Grundriss Erdgeschoss
>
>
Grundriss Dachgeschoss
>
>
Adresse
01683 Nossen
Interessante Orte
Preis- und Lageinformationen
Preistrend für Bestandsimmobilien in Nossen