Keine Schönrechnerei! Bestechend gute Fakten! (Siehe anliegende Beispielberechnungen)
Lassen Sie sich Ihr zukünftiges Mehrfamilienhaus exemplarisch für rd. 3.000 €/m² Wohnfläche bauen – so amortisiert sich Ihre Investition 'weit' unter 20 Jahren während Sie zusätzliche Rücklagen bilden! - Ohne Schönrechnerei: Bei dieser Angabe wurden weder zukünftige Mietsteigerungen der nächsten Jahre angenommen, noch spekulierte Wertentwicklungen oder steuerliche Vorteile berücksichtigt wie die aktuell gültige degressive Sonder-AfA in Höhe von 5%.
WAS SO VIEL BEDEUTET SOLL WIE: NACH OBEN IST NOCH LUFT !
(Für steuerliche Angaben wird keine Gewähr übernommen, Sie basieren auf §7 Absatz 5a EStG. Die AfA ist laut EStG für alle Neubauten mit KfW40 Standard, die bis 2029 erbaut werden, zu Ihren Gunsten für alle Baukosten gültig!)
Zusätzlich profitieren Sie von satten ca. 762.000 € KfW-Fördermitteln, die Ihre Baukosten erheblich senken können, sowie von den attraktiven
Effizienzhaus-Standard KfW 40 garantiert Ihnen niedrige Betriebskosten – und maximale Rendite. Jetzt investieren – langfristig profitieren.
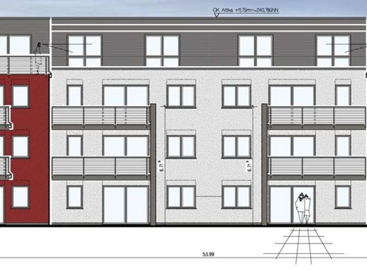
Das Grundstück wurde bereits in 22 Wohneinheiten und 21 TG-Stellplätze unterteilt und baugenehmigt. Es wartet auf den Spatenstich von einem neuen Eigentümer.
Endlich ein Neubauprojekt das sich rechnet!
Wir freuen uns Ihnen hiermit ein überraschend rentables Neubauprojekt vorstellen zu dürfen, das bereits samt Baugenehmigung & KfW‑Fördermittelzusage in Höhe von 763.000€ zum Spatenstich auf Sie wartet.
Ganz gleich ob Sie daran interessiert sind es am Ende selbst zu vermieten od. aber direkt abverkaufen möchten, beide Varianten kommen auf sehr gute Renditechance, selbst bei konservativsten Berechnungsweisen! Überzeugen Sie sich selbst! Fragen Sie einfach an. Wir stellen Ihnen gerne weitere umfangreiche Berechnungsvarianten zur Verfügung, die verschiedenen Situationen in Hinblick auf die Baukosten vs. Vermietung od. Abverkauf mit deren Renditen beleuchten. Gerne möchten wir Ihnen ermöglichen sich zusammen mit den vollzählig vorhandenen Bauunterlagen ein detailliertes Bild von den Renditemöglichkeiten zu verschaffen. Mit dem überraschenden Ergebnis, dass die Wahrscheinlichkeit sehr hoch ist, die hier im Folgenden kurz dargelegten Zahlen im Hinblick auf die Renditen noch weit übertroffen werden können.
Da wir ein Freund von Transparenz sind, haben wir uns bewusst dazu entschlossen in unserem Exposé hier lediglich auf die konservativ berechneten Erfolgschancen einzugehen. Gerne legen wir Ihnen sämtliches Potential in einer Videokonferenz oder persönlichem Treffen offen und stellen Ihnen im Anschluss alle Unterlagen zur Verfügung, damit Sie sich von diesen genialen Chancen selbst ein Bild machen können!
Sie streben eine Nettorendite von mind. 5,5% im Neubau bei Vermietung an? – ohne dabei auf Rücklagenbildungen zu verzichten - Dann investieren Sie jetzt in den Bau dieses modernen KfW‑40‑Hauses – und sichern sich nachhaltige Erträge.
Wir haben Ihnen im Langexposé, das wir Ihnen auf Anfrage gerne zuschicken, erste Berechnungsbeispiele zusammengestellt die zum einen den Abverkauf beleuchten und zum anderen die Nettorendite im eigenen Bestand!
Das Baugrundstück im Jenneweg, Stadtbezirk Mitte in Malstatt, liegt nur einen Steinwurf vom repräsentativen Stadtteil St. Johann – dem pulsierenden Herzen der Landeshauptstadt Saarbrücken – entfernt. Es bietet ein überzeugendes Gesamtpaket für Kapitalanleger und das zu attraktiven Zahlen und Wohnungsgrößen von 2-3 Zimmer. Die Lage in der vorletzten Bebauungsreihe garantiert zusätzlich den Penthousewhg einen Panoramablick über ganz Saarbrücken ohne dabei mit dem Fahrrad länger als ca. 5 Minuten bis in die Innenstadt zu brauchen.
Die klar planbaren Kosten‑Nutzen-Kalkulationen & das positive Risikoprofil machen dieses Projekt zu einer sicheren Investition – selbst in wirtschaftlich herausfordernden Zeiten.
Sicheres Risikoprofil! Chance auf min. 5,5%Nettorendi od. real erzielbare 30-40%Gewinn bei Abverkauf
66113 Saarbrücken
Die vollständige Adresse der Immobilie erhalten Sie vom Anbieter.
Auf Karte anzeigen
Die vollständige Adresse der Immobilie erhalten Sie vom Anbieter.
Finanzierungszertifikat
In nur zwei Minuten zu Ihrem persönlichen Finanzierungszertifkat.
Infos
| Vermarktungsart | Kaufen |
|---|---|
| Grundstücksfläche | 1.765 m2 |
Kosten
| Miete pro Jahr |
690.000 € |
|---|---|
| Provision |
2,98% inkl. MwSt |
Finanzierungsrechner:
Kaufpreis:
600.000 €
Eigenkapital:
600.000 €
Monatliche Rate
0 €
Effektiver Jahreszins
0 %
Sollzinsbindung
10 Jahre
Beschreibung des Objekts
Lage
Das zu bebauende Immogrundstück in Burbach, Jenneweg 58-60, bietet ein überzeugendes Gesamtpaket für Kapitalanleger und anspruchsvolle Wohnkonzepte – und das zu attraktiven Zahlen. Bereits baugenehmigt sowie mittels Teilungserklärung in 22 Wohneinheiten und 21 Tiefgaragenstellplätze aufgeteilt, steht das Projekt mit zugesicherten KfW‑Fördermitteln in Höhe von 763.000 € bereit, die aktuell für etwa vier weitere Jahre gelten. Investoren profitieren von angestrebten Nettorenditen von ca. 6 % (bei einer Miete von 14 €/m²) sowie zusätzlichen Einnahmen ab mindestens 69 € pro Monat pro Garagenstellplatz. Erste Rechenbeispiele deuten zudem bei Baukosten zwischen 2.900 € und 3.000 € pro m² auf realistische Abverkaufsrenditen zwischen 28 % und 35 % hin.
Mikrolage:
Die unmittelbare Umgebung des Grundstücks besticht durch ihre ruhige, dennoch dynamische Atmosphäre. Burbach bietet als begehrte Wohngegend einen charmanten Mix aus urbanem Flair und naturnaher Idylle. Die Lage zeichnet sich durch eine gute Infrastruktur, kurze Wege zu Einkaufsmöglichkeiten, Schulen und Freizeiteinrichtungen sowie eine ausgezeichnete Anbindung an den öffentlichen Nahverkehr aus. Diese Rahmenbedingungen sorgen nicht nur für hohe Wohnqualität, sondern bieten auch stabile Mieterträge.
Makrolage:
Saarbrücken als Landeshauptstadt und wirtschaftliches sowie kulturelles Zentrum der Großregion punktet durch vielfältige Arbeits-, Bildungs- und Freizeitmöglichkeiten. Die exzellente Anbindung an wichtige Verkehrsachsen sowie die Präsenz renommierter Institutionen und Unternehmen machen die Region zu einem attraktiven Standort für Investments. Insbesondere die zukünftigen Penthousewohnungen profitieren von dieser Makrolage: Die obersten Geschosse bieten einen atemberaubenden Ausblick über ganz Saarbrücken – ein exklusives Merkmal, das den Wohnwert und die Renditechancen zusätzlich steigert.
Diese Kombination aus soliden Investmentkonditionen, herausragender Mikrolage und der attraktiven Makrolage macht das Grundstück im Jenneweg 58-60 zu einer idealen Adresse – sei es für renditestarke Vermietungen oder gewinnbringende Abverkäufe.
Sonstige Angaben
**Vertraulichkeit / Weitergabeverbot**
Die Weiterleitung dieses Angebots inklusive der dazugehörigen Unterlagen darf ausschließlich durch von Frau Nele Sophie Rabba ausgewählte Einzelkontakte erfolgen. Die Weiterleitung bedarf vorab der schriftlichen Zustimmung von Frau Nele Sophie Rabba.
Sofern Ihnen diese Zustimmung nicht vorliegt, ist eine Weiterleitung dieses Angebots sowie der dazugehörigen Unterlagen strengstens untersagt.
Die von der W&W Gruppe, Wüstenrot Immobilien und Frau Nele Sophie Rabba übersandten Angebote und Informationen – insbesondere das Exposé und dessen Inhalt – sind vertraulich.
Verstößt der Kunde gegen diese Verpflichtung und schließt der Dritte oder eine andere Person, an die der Dritte seinerseits die Informationen weitergegeben hat, den Hauptvertrag ab, der nach Maßgabe dieser Bedingungen provisionspflichtig wäre, so verpflichtet sich der Kunde, die entsprechende Provision als Schadenersatz zu zahlen.
**Geltung**
Mit der Verwendung des im nachfolgenden Exposé enthaltenen Angebots – beispielsweise durch Aufnahme von Verhandlungen oder Besichtigungen – kommt zwischen dem Angebotsempfänger (Maklerkunde) und Wüstenrot Immobilien ein Maklervertrag über das angebotene Objekt zustande, dessen Bestandteil diese AGB sind und der hiermit vom Maklerkunden anerkannt wird.
Grundriss
Seitenanicht(Nord-Süd)
>
>
1b9f1671-dfea-44de-89ea-c24067
>
>