Dieses charmante Fachwerkhaus mit angrenzender Scheune befindet sich in ruhiger Dorflage von Mittenaar-Bicken. Das ca. im 18. Jahrhundert errichtete Gebäudeensemble steht unter Denkmalschutz und bietet mit etwa 227 m² Wohnfläche und einer Grundstücksgröße von insgesamt ca. 2.100 m² (inkl. Gartenflächen) viel Raum für individuelle Wohnträume oder kreative Nutzungskonzepte. Der angegebene Kaufpreis bezieht sich auf das vollständige Grundstück. Auf Wunsch des Käufers kann jedoch ein Teil von bis zu 1.640 m² als separate Gartenfläche aus dem Kauf ausgeschlossen werden – in diesem Fall wäre eine entsprechende Anpassung des Kaufpreises möglich.
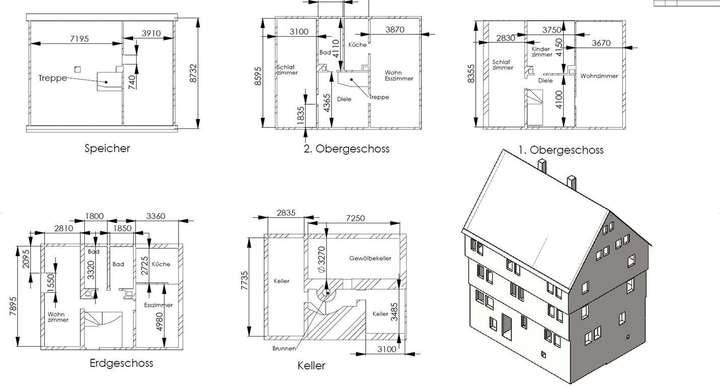
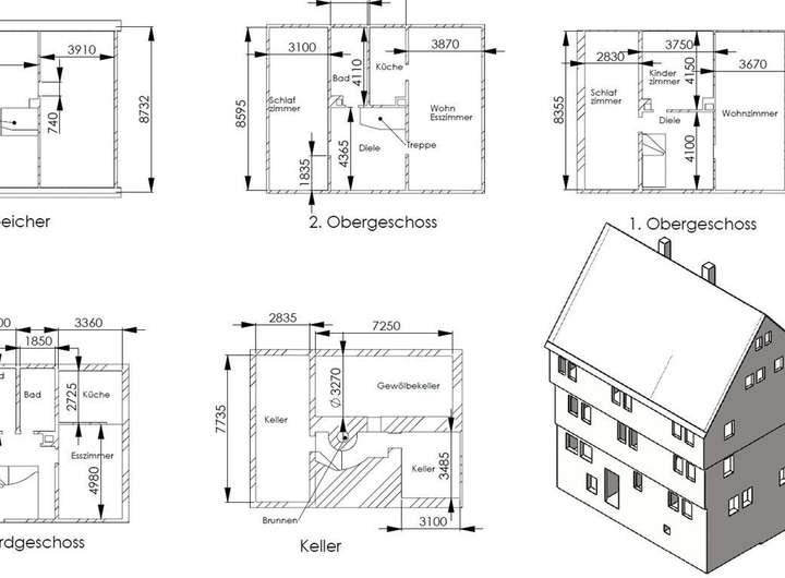
Das Haus erstreckt sich über drei Vollgeschosse sowie ein ausgebautes Dachgeschoss. Im Inneren erwarten Sie insgesamt 8 Zimmer, drei Badezimmer, zwei Küchenbereiche, ein Gewölbekeller sowie zahlreiche erhaltene historische Details – darunter ein eigener Brunnen, ein Webstuhl und antike Geräte.
Die angrenzende Scheune (ca. 118 m²) und eine Garage (ca. 24 m²) eröffnen weitere Nutzungsmöglichkeiten – ob als Werkstatt, Atelier, Lager oder Eventraum. Das Ensemble wurde bis ca. 1997 aufwändig saniert. Das Objekt steht seit 2019 leer und weist insbesondere an der Ostfassade einen Sanierungsbedarf auf.
Viele historische Details, darunter ein originaler Webstuhl im Dachgeschoss und landwirtschaftliche Geräte aus dem frühen 20. Jahrhundert sind noch vorhanden und können übernommen werden.
Auf dem Grundstück befinden sich eine Garage und eine große Scheune mit vielseitigen Nutzungsmöglichkeiten.
Es ist das ideale Zuhause für Liebhaber historischer Bausubstanz, Selbstversorger, Künstler oder Investoren mit Sinn für das Besondere. Es eignet sich sowohl Mehrgenerationenwohnen, kreative Nutzungskonzepte oder Ferienvermietung.
Denkmalgeschütztes Fachwerkhaus mit Scheune in Mittenaar – großzügiges Anwesen mit Geschichte
35756 Mittenaar
Die vollständige Adresse der Immobilie erhalten Sie vom Anbieter.
Auf Karte anzeigen
Die vollständige Adresse der Immobilie erhalten Sie vom Anbieter.
Finanzierungszertifikat
In nur zwei Minuten zu Ihrem persönlichen Finanzierungszertifkat.
Infos
| Etagenzahl | 3 |
|---|---|
| Wohnfläche ca. | 227 m2 |
| Nutzfläche | 142 m2 |
| Grundstücksfläche | 2.100 m2 |
| Zimmer | 8 |
| Schlafzimmer | 3 |
| Badezimmer | 3 |
| Garage/Stellplatz | Außenstellplatz |
| Anzahl Garage/Stellplatz | 1 |
Kosten
| Kaufpreis |
239.000 € |
|---|---|
| Provision |
3,57 % inkl. MwSt. |
Finanzierungsrechner:
Kaufpreis:
600.000 €
Eigenkapital:
600.000 €
Monatliche Rate
0 €
Effektiver Jahreszins
0 %
Sollzinsbindung
10 Jahre
Bausubstanz & Energieausweis
| Baujahr | 1780 |
|---|---|
| Denkmalschutzobjekt | Ja |
| Objektzustand | Renovierungsbedürftig |
| Qualität der Austattung | Normal |
| Energieausweis | laut Gesetz nicht erforderlich |
Beschreibung des Objekts
Ausstattung
- denkmalgeschütztes Fachwerkhaus aus dem 18. Jahrhundert
- 3 Vollgeschosse + ausgebautes Dachgeschoss
- 8 Zimmer, 3 Bäder, 2 Küchen mit Option auf eine dritte
- Gewölbekeller, eigener Brunnen
- teilweise möbliert mit antiken Möbeln und Geräten
- Parkettböden in allen Wohn- und Dielenbereichen
- Fliesen in den Bädern
- Holzfenster, teilweise mit Sprossen
- Propangas-Einzelöfen als Heizung
- Garage (nicht denkmalgeschützt)
- großzügige Scheune mit Anbau (ca. 118 m²)
Lage
Die denkmalgeschützte Haus- und Hofanlage befindet sich im Herzen von Mittenaar-Bicken im mittelhessischen Lahn-Dill-Kreis. Der Ortsteil bietet eine ruhige, naturnahe Lage mit gleichzeitig guter Infrastruktur.
In der direkten Umgebung befinden sich eine Apotheke, eine Hausarztpraxis, eine Kindertageseinrichtung und eine Schule. Eine Bäckerei, eine Metzgerei, Banken und die Gemeindeverwaltung sind ebenfalls vorhanden.
Eine Bushaltestelle liegt nur wenige Schritte entfernt. Der nächste Bahnhof ist in wenigen Fahrminuten erreichbar. Die Städte Herborn, Wetzlar und Gießen sind in ca. 20–40 Minuten mit dem Auto gut zu erreichen.
Die Umgebung mit ihren Wäldern und Wegen lädt zu Erholung und Naturgenuss ein – ideal für Familien und Ruhesuchende.
Sonstige Angaben
Ein Energieausweis ist aufgrund des Denkmalschutzes nicht erforderlich.
Wir freuen uns auf Ihre Kontaktaufnahme.
Wir vermitteln - mit Sicherheit.
Grundriss
Grundriss Erdgeschoss
>
>
Grundriss 1. Obergeschoss
>
>
Grundriss 2. Obergeschoss
>
>
Grundriss Keller
>
>
Grundriss Speicher
>
>
Grundriss Überblick
>
>
Adresse
35756 Mittenaar
Interessante Orte
Preis- und Lageinformationen
Preistrend für Bestandsimmobilien in Mittenaar