Leben, wie es sein soll.
OPUS.G ist ein Quartier, das durch seine vielfältigen Qualitätsbausteine, sein nachhaltiges, durchdachtes Konzept, sorgfältige und attraktive Planung sowie Präzision in der Ausführung ein offener und sympathischer Ort mitten in Geretsried und Lebensmittelpunkt für seine Bewohner wird. Und OPUS.G ist noch mehr: In der idyllischen Umgebung des bayerischen Voralpenlands ist es ein Wohnkonzept, dass die Elemente der Natur aufgreift und daraus einen Ort kreiert, an dem es sich mit ihr in Einklang leben lässt. Die drei Bauabschnitte SILVA, AQUA und VIVA stehen sinnbildlich für diese Verbindung und für ein stimmiges Gesamtwerk.
SILVA, der erste Bauabschnitt von OPUS.G, ist geprägt durch den Waldplatz, ein mit heimischen Bäumen und durch harmonische Freiflächen gekennzeichnetes Areal.
Das identitätsstiftende Konzept von OPUS.G berücksichtigt in besonderem Maß, was eine lebenswerte Wohnzukunft ausmacht und setzt auf vier Qualitätsbausteine. Immer im Mittelpunkt: die Bewohner und Nutzer. Immer im Blick: die Anforderungen der Zukunft. Urban wohnen im Grünen, Nachhaltigkeit, Gemeinschaft und Mobilität - angelehnt an „opus", lateinisch für „das Werk", „die Handarbeit", „die Kunst" oder auch „die Mühe", steht der Name OPUS.G für die vier zentralen Qualitätsbausteine, die die Quartiersentwicklung maßgeblich prägen und zu einem Gesamtwerk für Geretsried und die Region werden lassen.
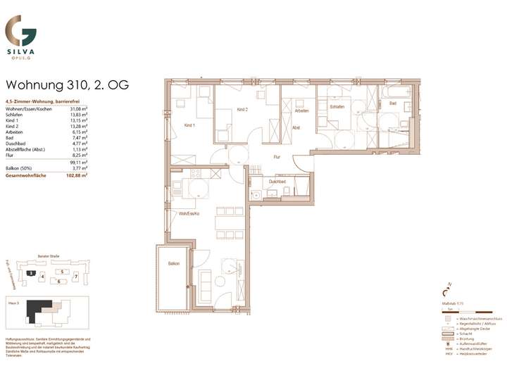
Barrierefreie 4,5-Zimmerwohnung - komfortabel heute, sicher im Alter
82538 Geretsried
Die vollständige Adresse der Immobilie erhalten Sie vom Anbieter.
Auf Karte anzeigen
Die vollständige Adresse der Immobilie erhalten Sie vom Anbieter.
Finanzierungszertifikat
In nur zwei Minuten zu Ihrem persönlichen Finanzierungszertifkat.
Infos
| Wohnungskategorie | Etagenwohnung |
|---|---|
| Etage | 2 von |
| Wohnfläche ca. | 102 m2 |
| Bezugsfrei ab | Spätsommer 2025 |
| Zimmer | 4,5 |
| Schlafzimmer | 3 |
| Badezimmer | 2 |
| Garage/Stellplatz | Tiefgarage |
| Anzahl Garage/Stellplatz | 2 |
Kosten
| Kaufpreis |
649.900 € |
|---|---|
| Provision | Nein |
Finanzierungsrechner:
Kaufpreis:
600.000 €
Eigenkapital:
600.000 €
Monatliche Rate
0 €
Effektiver Jahreszins
0 %
Sollzinsbindung
10 Jahre
Bausubstanz & Energieausweis
| Baujahr | 2025 |
|---|---|
| Objektzustand | Erstbezug |
Beschreibung des Objekts
Ausstattung
Natürliche Eleganz prägt OPUS.G SILVA und besticht durch einen zurückhaltenden, reduzierten Stil von zeitloser Schönheit. Unsere Interior-Design-Experten haben alle Wohnungen individuell bemustert und für Sie ein Zuhause kreiert, das von modern-elegantem Flair und hoher Wertigkeit geprägt ist und auch noch morgen höchsten Ansprüchen genügen wird.
HIGHLIGHTS
CLEANES SKANDI-DESIGN TRIFFT
AUF WARMES WOHLFÜHLFLAIR
•Hochwertige Parkettböden aus Eiche: Diele, Natur, geölt
•Großformatige Wand- und Bodenfliesen (Mirage, Linie Glocal)
•Edle weiße Badkeramik der Qualitätsmarken Laufen und Kaldewei
•Designarmaturen von Hansgrohe in Chrom
•Bodengleiche Dusche mit teilgerahmter Echtglasabtrennung
•Natürlicher, heller und klassisch-skandinavischer Look
•Handtuchheizkörper
•Balkon
•Außenbeleuchtung
•Community Bereiche
•Glasfaseranschluss
•Barrierefreier Personenaufzug
•Fußbodenheizung
•Modernes Mobilitätskonzept (mit Car- und Bike-Sharing)
•Tiefgarage mit Einzelstellplätzen, Lademöglichkeit für E-Mobilität auf Wunsch möglich
•barrierefrei
Lage
LEICHT, GRÜN, VISIONÄR
Diese Merkmale kennzeichnen OPUS.G, das sich zwischen Banater Straße und Elbestraße erstreckt. Das Quartier wird ein neuer Lebens-, Wohn- und Arbeitsmittelpunkt, der sich zum Stadtzentrum hin öffnet.
ZWISCHEN METROPOLE UND BERGEN
Geretsried ist Teil der Metropolregion München. Die Stadt liegt rund 38 km von der bayerischen Landeshauptstadt entfernt. Die Nähe zur Großstadt macht die rund 26.000 Einwohner zählende Isarstadt Geretsried ebenso attraktiv wie die Lage inmitten der idyllischen Voralpenlandschaft mit Wiesen und Wäldern, Bergen und Seen.
Bei aller Beschaulichkeit bietet Geretsried eine dynamische Wirtschaft, dazu lebendige, urbane Vielfalt und beste Verbindungen: Der Autobahnanschluss an die A 95 Garmisch-Partenkirchen–München ist in wenigen Minuten erreichbar, die B11 verbindet Geretsried als zentrale Verkehrsachse nach Süden hin mit Walchensee, Kochelsee und Innsbruck sowie nach Norden mit Wolfratshausen und München. Parallel bietet der ÖPNV gute Alternativen – verschiedene Buslinien fahren regelmäßig in alle Richtungen, auch direkt zum S-Bahnhof Wolfratshausen. Zudem bietet Geretsried ein gut ausgebautes, weit verzweigtes Radwegenetz – inklusive Anbindung an den idyllischen Isarradweg.
WEITERES PLUS
Die S-Bahn-Verlängerung mit drei Haltepunkten und damit ein direkter Anschluss Geretsrieds an das S-Bahn-Netz München ist bereits in konkreter Planung. Der zentrale Haltepunkt in Geretsried Mitte befindet sich weniger als 1.000 m entfernt.
Sonstige Angaben
Weihnachtsaktion:
Jetzt 25.000€ sparen!
Rabatt gültig beim Kauf einer selbstgenutzten 4-Zimmer-Wohnung mit einziehenden Kindern und eingegangener Wohnungsreservierung bis spätestens 15.01.2026.
Grundriss
BAN_2023-10-10_BA1-E1_OG2_WE 1
>
>
Adresse
82538 Geretsried
Interessante Orte
Preis- und Lageinformationen
Preistrend für Bestandsimmobilien in Geretsried