Lassen Sie sich inspirieren von diesem einladenden 3-Familienhaus und seinem Potenzial durch große Wohnflächen und vielseitigen Nutzungsmöglichkeiten.
Nach dem Betreten des Hauses durch den hellen und freundlichen Eingangsbereich, der durch eine großzügige Glasfront viel Tageslicht hereinlässt, gelangen Sie in die gemütliche Erdgeschosswohnung. Diese bietet auf 75 qm Wohnfläche ein komfortables Schlafzimmer, das ausreichend Platz für ein großes Bett und zusätzliche Möbelstücke bereit hält. Das Tageslichtbad ist mit einer Badewanne ausgestattet, die auch flexibel als Dusche genutzt werden kann. Der großzügige Wohn- und Essbereich ist das Herzstück der Wohnung. Hier finden Sie eine tolle Einbauküche, die mit allen notwendigen Geräten ausgestattet ist und viel Stauraum bietet. Der Essbereich bietet genügend Platz für einen großen Esstisch, an dem die ganze Familie zusammenkommen kann. Vom Wohnbereich aus haben Sie direkten Zugang zur Terrasse, die sich ideal für entspannte Stunden im Freien eignet. Die Wohnung verfügt außerdem über einen praktischen Abstellraum der zusätzlichen Stauraum für Haushaltsgegenstände und Vorräte sichert.
Über das helle und freundliche Treppenhaus, das auch Zugang zum hinteren Hof des Hauses bietet, gelangen Sie in die geräumige 155 qm große Obergeschosswohnung. Diese Etage beeindruckt mit einem beachtlichen Wohn- und Essbereich mit Kamin, der ebenfalls über eine moderne Einbauküche verfügt. Die Küche ist mit hochwertigen Geräten ausgestattet und bietet viel Stauraum sowie Arbeitsfläche für Ihre Kochkünste. Vom Essbereich aus haben Sie direkten Zugang zu einem Balkon, der zusätzlichen Außenraum bietet und perfekt für entspannte Stunden im Freien ist. Hier können Sie den Tag bei einem gemütlichen Frühstück starten oder einem Glas Wein ausklingen lassen.
Das Badezimmer ist ebenfalls ein Tageslichtbad und mit einer Eckbadewanne ausgestattet. Zusätzlich gibt es ein gemütliches Schlafzimmer, mit ausreichend Platz. Ein Gäste-WC mit Dusche sorgt für zusätzlichen Komfort und Flexibilität, besonders wenn Gäste zu Besuch sind.
Ein weiterer schöner Wohnraum bietet die Möglichkeiten zur individuellen Gestaltung, sei es als zweites Wohnzimmer, Bibliothek oder Spielzimmer. Der große nebenan liegende Hobbyraum ist auch ideal als Kinderzimmer geeignet. Ein geräumiges Büro sorgt für einen ruhigen und komfortablen Arbeitsplatz, der sich perfekt für Homeoffice oder kreative Projekte eignet.
Diese fünf Zimmer erlauben vielfältige Nutzungsmöglichkeiten und können nach Ihren individuellen Bedürfnissen angepasst werden. Die Obergeschosswohnung ist somit ideal für Familien oder Paare, die viel Platz und Komfort suchen.
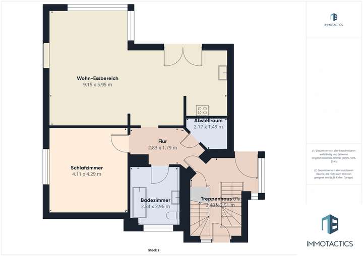
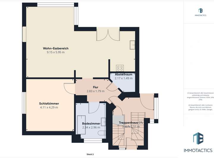
Auch die Dachgeschosswohnung verfügt mit 103 qm Wohnfläche über einen großzügigen Wohn- und Essbereich, der wiederum mit einer Einbauküche ausgestattet ist. Das Tageslichtbad ist nicht nur mit einer Wanne, sondern auch mit einer Duschfunktion versehen, was für zusätzlichen Komfort sorgt. Ein gemütliches Schlafzimmer und ein praktisches Büro halten weitere Nutzungsmöglichkeiten für Sie bereit. Das absolute Highlight dieser Wohnung ist jedoch der große Rundbalkon, mit herrlichen Ausblick auf die Umgebung. Zusätzlich gibt es einen weiteren kleinen Balkon der Außenraum schafft und die Wohnung noch attraktiver macht.
Der Keller des Hauses wartet mit einer Vielzahl von Räumen, die unterschiedlich genutzt werden können und somit viel Flexibilität bieten. Der Heizungsraum sorgt mit einer Öl-Zentralheizung für eine gute Wärmeversorgung des gesamten Hauses. Die große Waschküche bietet ausreichend Platz für mehrere Waschmaschinen und Trockner und ermöglicht eine bequeme Wäschepflege. Darüber hinaus gibt es drei weitere Räume, die viel Abstellfläche bereit halten und somit ausgezeichnet für die Lagerung von Haushaltsgegenständen, Werkzeugen oder saisonalen Dekorationen sind. Diese Räume können auch als Hobbyräume oder
Großes 3-Familienhaus mit modernem Komfort - Mehrgenerationentraum auf 314 qm Wohnfläche
55606 Kirn
Die vollständige Adresse der Immobilie erhalten Sie vom Anbieter.
Auf Karte anzeigen
Die vollständige Adresse der Immobilie erhalten Sie vom Anbieter.
Finanzierungszertifikat
In nur zwei Minuten zu Ihrem persönlichen Finanzierungszertifkat.
Infos
| Haustyp | Mehrfamilienhaus |
|---|---|
| Etagenzahl | 3 |
| Wohnfläche ca. | 333 m2 |
| Grundstücksfläche | 586 m2 |
| Bezugsfrei ab | nach Vereinbarung |
| Zimmer | 11 |
| Schlafzimmer | 4 |
| Badezimmer | 3 |
| Anzahl Garage/Stellplatz | 3 |
Kosten
| Kaufpreis |
599.000 € |
|---|---|
| Provision |
3,57% inkl. gesetzlicher Umsatzsteuer. |
Finanzierungsrechner:
Kaufpreis:
600.000 €
Eigenkapital:
600.000 €
Monatliche Rate
0 €
Effektiver Jahreszins
0 %
Sollzinsbindung
10 Jahre
Bausubstanz & Energieausweis
| Baujahr | 1994 |
|---|---|
| Bauphase | Haus fertig gestellt |
| Objektzustand | Modernisiert |
| Qualität der Austattung | Normal |
| Heizungsart | Zentralheizung |
| Wesentliche Energieträger | Öl |
| Energieausweis | liegt vor |
| Energieausweistyp | Verbrauchsausweis |
| Energieverbrauchskennwert | 143,0 kWh/(m²*a) |
| Energieeffizienzklasse | E |
143,0
kWh/(m²*a)
Energieeffizienzklasse E
- A+
- A
- B
- C
- D
- E
- F
- G
- H
- 0
- 25
- 50
- 75
- 100
- 125
- 150
- 175
- 200
- 225
- >250
Beschreibung des Objekts
Ausstattung
• 333 qm moderne Wohnfläche
• 11 Zimmer
• drei abgeschlossene Wohnungen
• 3 Einbauküchen
• 3 Tageslichtbäder
• 6 Stellplätze
• Balkon
• Terrasse
• 586 qm Grundstück
• gemauerter Grill mit Pizzaofen und überdachter Sitzecke
Lage
Diese Immobilie befindet sich in Kirn, einem charmanten Städtchen im Landkreis Bad Kreuznach, Rheinland-Pfalz. Diese Adresse liegt im Stadtteil Kallenfels, der für seine historische Bedeutung und malerische Umgebung bekannt ist.
Die Lage zeichnet sich durch ihre Nähe zu den beeindruckenden Ruinen der ehemaligen Ganerbenburg Steinkallenfels aus, die auf drei steilen Felsen thronen und einen faszinierenden Blick auf die Umgebung bieten.
Die Straße ist gut an das Verkehrsnetz angebunden und bietet eine ruhige Wohngegend mit einer Mischung aus historischen und modernen Gebäuden.
In unmittelbarer Nähe befinden sich verschiedene Einkaufsmöglichkeiten, Schulen und Freizeiteinrichtungen, die den Alltag bequem und abwechslungsreich gestalten. Die idyllische Landschaft rund um Kirn lädt zu Spaziergängen und Outdoor-Aktivitäten ein, während die Stadt selbst mit ihrem historischen Charme und kulturellen Angeboten überzeugt.
Sonstige Angaben
Sonstiges (lang):
Die in unserem Exposé enthaltenen Aussagen basieren ausschließlich auf Informationen, die uns vom Verkäufer und von Handwerkern zur Verfügung gestellt wurden.
Wir übernehmen daher keine Gewähr für die Vollständigkeit und Richtigkeit der Angaben.
Das Immobilienangebot ist freibleibend.
Irrtum und Zwischenverkauf bleiben vorbehalten.
Weitere Details zum Objekt erläutern wir Ihnen gerne bei einem Besichtigungstermin.
Wir bitten um Ihr Verständnis dafür, dass wir nur Anfragen mit vollständigen Adressdaten inklusive Vor- und Zuname, Anschrift, Telefon-/Mobilnummer und Email Adresse bearbeiten können.
Sie suchen nach der passenden Finanzierung? Wir finden sie!
Als ungebundene Finanzierungsvermittler vergleichen wir über 900 Banken und finden einen optimalen Kredit für Sie.
Sparen Sie Geld und Zeit! Mit Sicherheit günstiger als Ihre Hausbank.
Informieren Sie sich jetzt hier, kostenfrei und unverbindlich über Finanzierungsmöglichkeiten zu dieser Immobilie. Fördermittelberatung inklusive.
Wir freuen uns auf den Kontakt zu Ihnen.
Immotactics GmbH
0671 – 20272030
info@immotactics.de
Grundriss
EG
>
>
OG
>
>
DG
>
>
Keller
>
>
Adresse
55606 Kirn
Interessante Orte
Preis- und Lageinformationen
Preistrend für Bestandsimmobilien in Kirn