Offener Wohnbereich, Dachterrasse und Platz für Rückzug – entdecken Sie Ihr neues Zuhause mit Wohlfühlatmosphäre.
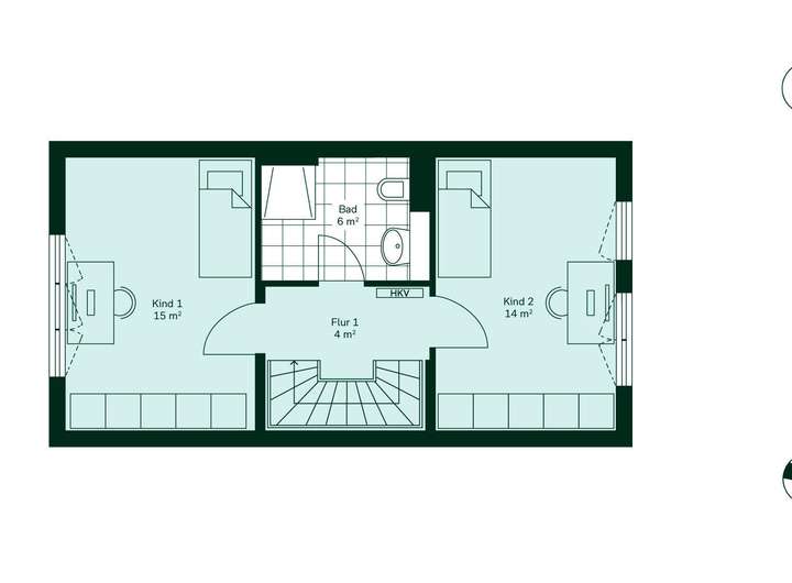
Stellen Sie sich vor, wie Sie durch den offenen Wohnbereich direkt auf Ihre Terrasse treten – bereit für entspannte Stunden im Freien. Die offene Küche schafft Raum für gemeinsame Genussmomente, während das Gäste-WC im Erdgeschoss praktisch im Alltag unterstützt. Im Obergeschoss erwarten Sie zwei großzügige Schlafzimmer und ein Badezimmer mit bodengleicher Dusche – ideal für einen bequemen Start in den Tag. Oben angekommen, wird das Schlafzimmer im Dachgeschoss zu Ihrem persönlichen Rückzugsort. Von hier aus geht es direkt auf die Dachterrasse – ein Platz, der jeden Tag besonders macht.
Finanzierungszertifikat
In nur zwei Minuten zu Ihrem persönlichen Finanzierungszertifkat.
Infos
| Haustyp | Reihenmittelhaus |
|---|---|
| Wohnfläche ca. | 104 m2 |
| Nutzfläche | 4,02 m2 |
| Grundstücksfläche | 0 m2 |
| Bezugsfrei ab | Dezember 2026 |
| Zimmer | 4 |
| Schlafzimmer | 3 |
| Badezimmer | 1 |
| Garage/Stellplatz | Außenstellplatz |
| Anzahl Garage/Stellplatz | 2 |
Kosten
| Kaufpreis |
339.900 € |
|---|---|
| Provision | Nein |
Finanzierungsrechner:
Kaufpreis:
600.000 €
Eigenkapital:
600.000 €
Monatliche Rate
0 €
Effektiver Jahreszins
0 %
Sollzinsbindung
10 Jahre
Bausubstanz & Energieausweis
| Baujahr | 2025 |
|---|---|
| Bauphase | Haus in Planung (projektiert) |
| Objektzustand | Erstbezug |
| Qualität der Austattung | Gehoben |
| Heizungsart | Fußbodenheizung |
Beschreibung des Objekts
Ausstattung
- bodentiefe Fenster
- Gäste-WC
- pflegeleichter Designboden
- offener Wohn- und Essbereich
- Dachterrasse
- Rollläden
- zwei Außenstellplätze
. kleiner Gartenanteil
- Effizienzhaus 55 mit Fußbodenheizung
- inklusive Luft-Wärmepumpe
- Quartierstreffpunkt mit Leseecke
Lage
Mitten in einer idyllischen Landschaft aus schattigen Kiefernwäldern und zahlreichen Seen entsteht unser familienfreundliches Neubauquartier - das Fontaneviertel. Es liegt in der Waldstadt, die früher zu Wünsdorf gehörte – einem Teil des historischen kurfürstlichen Amtes Zossen. Zur nächsten Grundschule sind es 600 m und zum Bus nur 300 m. Im nahen Umfeld gibt es mehrere Supermärkte.
Sonstige Angaben
Wir übernehmen Ihre Notarkosten
Bei Reservierung Ihrer Wunschimmobilie im Fontaneviertel bis 31.08.2025 übernehmen wir die Notarkosten* für Sie. Der Notar spielt eine große Rolle bei der Vertragserläuterung. So sind Sie rechtlich bestens abgesichert. Bis dahin unterstützen wir Sie gerne bei allen Fragen rund um Ihren Immobilienkauf bei uns. *Gilt für die Notarkosten auf den beurkundeten Kaufpreis, bei Reservierung bis zum 31.08.2025. Keine Kostenübernahme für etwaige Grundschuldbestellungen.
Adresse
Emilie-Fontane-Straße 23, 15806 Zossen
Interessante Orte
Preis- und Lageinformationen
Preistrend für Bestandsimmobilien in Zossen