Das Familienhaus Jara bietet mit rund 140 m² Wohnraum für die ganze Familie. Es definiert Lebensfreude neu.
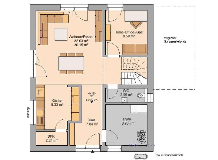
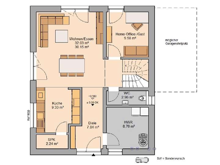
Das Erdgeschoss erstreckt sich über 70 m². Aufgeteilt ist es in einen großen Wohn- und Essbereich mit offener Küche und Speisekammer, ein WC, Diele und ein Home-Office, welches alternativ auch als Gästezimmer genutzt werden kann. Der Hauswirtschaftsraum befindet sich ebenfalls im Erdgeschoss und lässt sich über die Diele betreten.
Eine u-förmige Treppe führt ins Dachgeschoss, welches über drei Schlafzimmer, eine Ankleide und ein großes Familienbad verfügt. Erreichbar sind alle Räume über den Flur. Zu dem Elternschlafzimmer zählt eine ganz persönliche Ankleide.
Das Massivhaus Jara schafft somit ein Refugium, welches jedem Familienmitglied seinen ganz persönlichen Raum ermöglicht.
Dieses Haus wird nach Ihren individuellen Wünschen geplant und ausgestattet!
Auszeit im eigenen Zuhause!
64859 Eppertshausen
Die vollständige Adresse der Immobilie erhalten Sie vom Anbieter.
Auf Karte anzeigen
Die vollständige Adresse der Immobilie erhalten Sie vom Anbieter.
Finanzierungszertifikat
In nur zwei Minuten zu Ihrem persönlichen Finanzierungszertifkat.
Infos
| Haustyp | Einfamilienhaus |
|---|---|
| Wohnfläche ca. | 141 m2 |
| Grundstücksfläche | 560 m2 |
| Zimmer | 5 |
| Schlafzimmer | 3 |
| Badezimmer | 1 |
| Anzahl Garage/Stellplatz | 2 |
Kosten
| Kaufpreis |
737.900 € |
|---|---|
| Provision | Nein |
Finanzierungsrechner:
Kaufpreis:
600.000 €
Eigenkapital:
600.000 €
Monatliche Rate
0 €
Effektiver Jahreszins
0 %
Sollzinsbindung
10 Jahre
Bausubstanz & Energieausweis
| Baujahr | 2025 |
|---|---|
| Bauphase | Haus in Planung (projektiert) |
| Objektzustand | Erstbezug |
| Qualität der Austattung | Gehoben |
| Heizungsart | Wärmepumpe |
| Wesentliche Energieträger | Strom |
| Energieausweis | liegt vor |
| Energieausweistyp | Bedarfsausweis |
| Energieverbrauchskennwert | 18,0 kWh/(m²*a) |
| Energieeffizienzklasse | A+ |
18,0
kWh/(m²*a)
Energieeffizienzklasse A+
- A+
- A
- B
- C
- D
- E
- F
- G
- H
- 0
- 25
- 50
- 75
- 100
- 125
- 150
- 175
- 200
- 225
- >250
Beschreibung des Objekts
Ausstattung
5 Zimmer, offene Küche, Diele, WC, Flur, Bad, Ankleide, Speisekammer, Hauswirtschaftsraum
Das gezeigte Traumhaus im Überblick:
+ Schlüsselfertiges Massivhaus im Sinne der Ausstattungsbeschreibung "Edition 25"
+ Zukunftsorientierte Energieausstattung in Form einer Luft-Wasser-Wärmepumpe und Fußbodenheizung sowie einer kontrollierten Wohnraumlüftung mit Wärmerückgewinnung
+ Inklusive Bodenplatte
Beste Markenausstattung in jedem Kern-Haus:
+ Zimmermannsmäßiger Dachstuhl aus Konstruktionsvollholz
+ Dacheindeckung mit Betondachsteinen von Braas
+ Hochwertiger Kunstharz-Außenputz für eine langlebige Fassade
+ Vollständige Badausstattung von Villeroy & Boch mit Badewanne und flacher Duschwanne sowie einer Echtglasduschkabine
+ Fliesen von Villeroy & Boch in Bad und WC
+ Haustür mit 5-fach-Sicherheitsverriegelung
+ Erstklassige Innentüren der Marke Herholz
+ Fenster mit 3-Scheiben-Wärmeschutzverglasung und Rollläden
+ Stahl-Holz-Treppe mit individueller Farbgestaltungsmöglichkeit
+ Vollständige und überdurchschnittliche Elektroausstattung inklusive Klingelanlage und Netzwerkdosen
+ Rauchmelder für Ihre Sicherheit
+ Alle Leistungen aus einer Hand
+ Alle Planungs- und Architektenleistungen
+ Einsatz regionaler Handwerksbetriebe
+ Baubegleitende 5-Phasen-TÜV-Prüfung und Blower-Door-Test
+ Individuelle Anpassung auf Ihre Bedürfnisse
+ Auf Wunsch mit Keller erhältlich
+ Auf Wunsch mit weiteren Energietechniken erhältlich
Lage
Eppertshausen liegt ideal in der Mitte des Rhein-Main Gebietes, ca. 15 km nordöstlich von Darmstadt in der Untermainebene, nördlich des Odenwalds.
Eppertshausen besitzt eine gute Verkehrsanbindung in alle Richtungen, gute Bus- und Bahnanbindungen sowie zahlreiche Einkaufsmöglichkeiten.
Im Ort gibt es zwei Kindertagesstätten mit jeweils einer U3 Betreuung, eine Grundschule und eine Sprachheilschule sowie zahlreiche Spielplätze, wo sich die Jüngsten austoben können. Weiterführende Schulen befinden sich in den umliegenden Gemeinden.
Das reichhaltige Freizeit- und Kulturangebot wird durch mehr als 40 Vereine, Verbände und Kirchen vorbildlich mitgestaltet und bietet für jeden etwas.
Die Natur kann beim Spazierengehen, Radfahren, Walken oder zur Erholung in den Wäldern genossen werden.
Sonstige Angaben
Kern-Haus baut individuelle und massive Architektenhäuser zu einem attraktiven Preis-Leistungs-Verhältnis – und das bereits mit einer Erfahrung seit 1980. Bei Kern-Haus erhalten Sie unter anderem 10 Jahre Gewährleistung auf die wesentlichen Bauleistungen, bis zu 24 Monate Preissicherheit sowie eine dokumentierte 5-Phasen-TÜV-Prüfung während der Bauphase. Jedes Kern-Haus als Effizienzhaus 40 ist bereits QNG-zertifiziert durch die Deutsche Gesellschaft für nachhaltiges Bauen (DGNB).
40 Jahre Expertise für das massive, energieeffiziente Bauen: Kern-Haus realisiert Massivhäuser in Ziegel, Bims, Porenbeton oder Stahlbeton (DuoTherm).
Kern-Haus setzt auf eine hohe Bauqualität der Handwerker und auf eine große Auswahl starker Marken. So verwendet Kern-Haus beim Bau Ihres Hauses nur hochwertige Markenprodukte renommierter Hersteller – wie etwa Produkte von Villeroy & Boch.
Preise und Auszeichnungen von Kern-Haus:
- German Brand Award in den Jahren 2018 und 2021
- Hausbau Design Award: Sieger in den Jahren 2017, 2018, 2019, 2020, 2021, 2022 und 2023
- Deutscher Traumhauspreis: Sieger in den Jahren 2014, 2015, 2016 und 2018 und Silber 2017, 2020 und 2021
- Mittelstandspreis "Top 100" in den Jahren 2014, 2016, 2018, 2020 und 2022
- German Design Award im Jahr 2018
Weitere Informationen
Der gezeigte Preis versteht sich inklusive Grundstück und exklusive der Baunebenkosten. Auf den Grundstückspreis wird eine Maklerprovision fällig.
Grundriss
Grundriss Erdgeschoss
>
>
Grundriss Dachgeschoss
>
>
Adresse
64859 Eppertshausen
Interessante Orte
Preis- und Lageinformationen
Preistrend für Bestandsimmobilien in Eppertshausen