Entwicklungsgrundstück mit vielen Möglichkeiten!
Bei dem Verkaufsobjekt handelt es sich um ein Grundstück in sehr zentraler Lage von Leingarten.
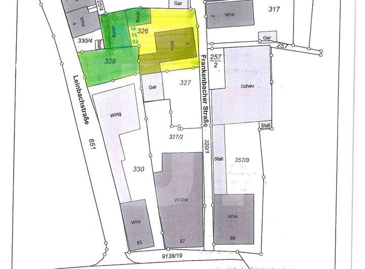
Das Grundstück wird nach Absprache neu entstehen:
Flurstücke: 329 + Teilstück 329
Grundstücksgröße: ca. 179 m² + ca. 121 m² = gesamt ca. 300 m²
Die genaue Teilung ist beim Kauf abzustimmen und wird dann auch vorab vermessen + offiziell geteilt.
Die bestehende Scheue und der Pferdestall gehören bisher zu Flurstück 326, werden aber dem Flur 329 zur Vergrößerung zugeteilt. Diese werden vss. zugunsten eines Neubaus abgerissen werden müssen. Hier kann ein Doppelhaus oder ein 2 – 3-Familienhaus entstehen.
Bestandsgebäude: Scheune mit ca. 100 m² Grundfläche und Pferdestall mit 3 Boxen.
Entwicklungsgrundstück in zentraler Lage von Leingarten zu verkaufen!
74211 Leingarten
Die vollständige Adresse der Immobilie erhalten Sie vom Anbieter.
Auf Karte anzeigen
Die vollständige Adresse der Immobilie erhalten Sie vom Anbieter.
Finanzierungszertifikat
In nur zwei Minuten zu Ihrem persönlichen Finanzierungszertifkat.
Infos
| Vermarktungsart | Kaufen |
|---|---|
| Grundstücksfläche | 300 m2 |
| Verfügbar ab | Sofort verfügbar! |
Kosten
| Miete pro Jahr |
215.200 € |
|---|---|
| Provision |
4,76 % inkl. gesetzlicher MwSt. Zahlbar direkt nach Beurkundung vom notariell beurkundeten Kaufpreis. |
Finanzierungsrechner:
Kaufpreis:
600.000 €
Eigenkapital:
600.000 €
Monatliche Rate
0 €
Effektiver Jahreszins
0 %
Sollzinsbindung
10 Jahre
Beschreibung des Objekts
Lage
Ausgezeichnete Lage in Leingarten.
Die Grundstücke liegen in zentraler Lage von Leingarten. Die S-Bahn-Haltestellen Leingarten und Leingarten Ost sowie der Ortskern sind in wenigen Minuten zu Fuß zu erreichen.
Leingarten ist eine attraktive Stadt mit rund 12.000 Einwohnern und liegt ca. 6 km westlich von Heilbronn. Sie bietet hohe Wohnqualität, zahlreiche infrastrukturelle Einrichtungen und einen hohen Freizeitwert. Eingebettet in eine landschaftlich reizvolle Lage um den Heuchelbergmit Weinbau und vielen Sport- und Naherholungseinrichtungen garantiert Leingarten ein lebenswertes Umfeld. Die hervorragende Wohnqualität zeichnet sich vor allem durch die sehr guten infrastrukturellen Einrichtungen in Leingarten aus. Zahlreiche Ärzte, Apotheken, Gesundheits- und Pflegeeinrichtungen haben sich in Leingarten niedergelassen. Mehrere Bäckereien, Metzgereien, Supermärkte und Discounter garantieren eine Versorgung auf hohem Niveau. Insgesamt neun Kindergärten und zwei Schulen (Grund- und Gemeinschaftsschule) befinden sich in der Stadt.
Sonstige Angaben
Diese mündlich oder schriftlich an uns übermittelten Angaben sind nicht zwangsläufig durch uns auf ihre Richtigkeit hin überprüft worden. Eine Haftung für die Richtigkeit oder Vollständigkeit dieser Angaben übernehmen wir daher nicht.