Diese wunderschöne Villa bietet luxuriöses Wohnen auf insgesamt vier Etagen inkl. Keller und es besteht die Möglichkeit es in zwei separate Einheiten aufzuteilen- ideal für Familien oder Mehrgenerationenhaus.
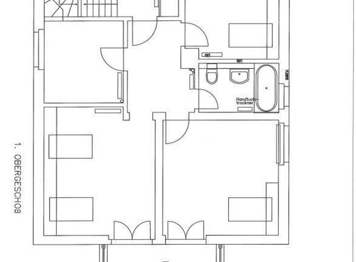
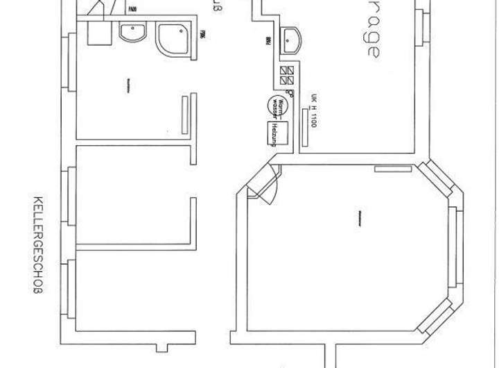
Das Haus wurde ca. 1936 erbaut und imponiert als Einfamilienhaus/Villa. Im Erdgeschoss finden Sie einen geräumigen Wohnbereich mit viel Platz für entspannte Abende und Zugang zum Garten wo sich das Highlight des Hauses befindet, der betonierte beheizte Salzwasserpool. Des Weiteren befinden sich im Erdgeschoss das Arbeitszimmer, die Küche mit dem Esszimmer und das Gäste WC. Im ersten Obergeschoss befinden sich 4 Zimmer, eine große Terrasse in Südost-Ausrichtung, ein Bad mit Badewanne und ein Abstellraum. Das DG verfügt über ein Schlafzimmer, Ankleidezimmer und ein Bad. Das Kellerabteil des Hauses ist äußerst großzügig und in vier Räumen aufgeteilt, mit einen Duschbad und Zutritt zur Garage. Diese bieten Ihnen zusätzlich Stauraum und Flexibilität für verschiedene Nutzungsmöglichkeiten. Das Haus verfügt über einen gepflegte Garten direkt am Wald ,mit dem Pool und einem Gartenhaus( ohne Berechnung in der Wohnflächenberechnung) ,der Ihnen Raum für Entspannung und Freizeitaktivitäten im Freien bietet.
Ein/Zweifamilienhaus,Kinderparadies mit beheizten Salzwasserpool im Alleinauftrag
12527 Berlin
Die vollständige Adresse der Immobilie erhalten Sie vom Anbieter.
Auf Karte anzeigen
Die vollständige Adresse der Immobilie erhalten Sie vom Anbieter.
Finanzierungszertifikat
In nur zwei Minuten zu Ihrem persönlichen Finanzierungszertifkat.
Infos
| Haustyp | Villa |
|---|---|
| Etagenzahl | 4 |
| Wohnfläche ca. | 238 m2 |
| Nutzfläche | 300 m2 |
| Grundstücksfläche | 668 m2 |
| Bezugsfrei ab | sofort |
| Zimmer | 10 |
| Schlafzimmer | 5 |
| Badezimmer | 4 |
| Garage/Stellplatz | Garage |
| Anzahl Garage/Stellplatz | 1 |
Kosten
| Kaufpreis |
890.000 € |
|---|---|
| Preis für Garage/Stellplatz | 1 € |
| Provision |
3,57 % inkl. 19% Umsatzsteuer Das Angebot erfolgt für den Käufer provisionspflichtig. Die Höhe der Courtage beträgt 3,57% (inkl. 19% Mehrwertsteuer) vom notariellen Kaufpreis. Der Maklervertrag mit uns kommt durch Bestätigung der Inanspruchnahme unserer Maklertätigkeit in Textform zustande. Die Höhe der Courtage richtet sich nach den ab dem 23.12.2020 in Kraft getretenen gesetzlichen Reglungen. |
Finanzierungsrechner:
Kaufpreis:
600.000 €
Eigenkapital:
600.000 €
Monatliche Rate
0 €
Effektiver Jahreszins
0 %
Sollzinsbindung
10 Jahre
Bausubstanz & Energieausweis
| Baujahr | 1936 |
|---|---|
| Letzte Sanierung | 2018 |
| Objektzustand | Modernisiert |
| Qualität der Austattung | Gehoben |
| Heizungsart | Gas-Heizung |
| Wesentliche Energieträger | Gas |
| Energieausweis | liegt zur Besichtigung vor |
Beschreibung des Objekts
Ausstattung
Großer, gepflegter Garten
Große Sonnenterrasse im 1.OG
Einbauküche mit Geräten
Wannenbad
Duschbad
Gäste-WC
Hauswirtschaftsraum
Garage
Alarmanlage
Beheizbarer betonierter Salzwasserpool
Hochwertige Ausstattungen und Materialen
Fliesenboden/u.a. Marmor
und vieles mehr
Lage
Die Liegenschaft befindet sich in einer besonders attraktiven, familienfreundlichen Wohngegend im ruhigen renommierten Stadtteil von Grünau nahe der Dahme und dem Grünauer-Forst. Umgeben von weitläufigen Grünflächen (direkt angrenzender Grünauer-Forst), Parks, Villen, Wasser und Strandbad Grünau.Die Umgebung ist geprägt von einer angenehmen Wohnatmosphäre und einer ausgezeichneten Infrastruktur (u.a. Bruno-Traut-Passage, Netto, Lidl und Edeka).Ein Highlight ist zweifellos der nahegelegene ca. 874 Hektar große Grünauer Forst und das nahe liegende Strandbad Grünau. Eine Grundschule, eine Kindertagesstätte sowie eine weiterführende Schule sind fußläufig erreichbar. Der Flughafen BER ist in ca. 10 Autominuten erreichbar und S-Bahnhof Grünau in ca. 5 Gehminuten. Sie genießen die Ruhe und die Privatsphäre des Grünauer Forstes und haben dennoch eine ausgezeichnete Anbindung an alle Annehmlichkeiten der Großstadt.
Sonstige Angaben
Alle Angaben sind ohne Gewähr und basieren ausschließlich auf Informationen, die uns vom Auftraggeber zur Verfügung gestellt wurden. Wir übernehmen keine Gewähr und Haftung für die Vollständigkeit, Richtigkeit und Aktualität dieser Angaben. Unsere Angebote erfolgen freibleibend und unverbindlich. Irrtum, Auslassung und Zwischenverkauf bleiben vorbehalten. Die Möblierungen sind im Kaufpreis nicht enthalten. Darstellungen dienen der Illustration. Bei Interesse Ihrerseits bitte wir um vollständige Angaben Ihrer Anschrift inkl. Telefonnummer, da wir Ihre Anfrage ansonsten leider nicht bearbeiten können.
Adresse
12527 Berlin
Interessante Orte
Preis- und Lageinformationen
Preistrend für Bestandsimmobilien in Grünau (Köpenick)