Objektbeschreibung :
Dieses Haus ist bereits im Standard für die
Effizienzhaus-Klasse KfW40 ausstattet. Das heißt
die Dämmung der Fundamentplatte ist im
Grundpreis bereits enthalten.
Die Außenwände im Passiv-Haus-Standard und eine
sparsame Heiztechnik mit integrierter
Wohnraumlüftung und Wärmerückgewinnung
garantieren einen geringen Energieverbrauch und ein
fantastisches Raumklima, das insbesondere Allergiker
aufatmen lässt.
Gebäudetyp: Einfamilienhaus
Wohnfläche: ca. 143 m²
Grundstück ca. 700 m²
Natürlich können wir im Rahmen der Bebauungsmöglichkeiten
das Haus auf Ihre individuellen Wünsche und Größe anpassen !
NEUBAU - EINFAMILIENHAUS IN ALSBACH / HÄHNLEIN MIT GRUNDSTÜCK
64665 Alsbach-Hähnlein
Die vollständige Adresse der Immobilie erhalten Sie vom Anbieter.
Auf Karte anzeigen
Die vollständige Adresse der Immobilie erhalten Sie vom Anbieter.
Finanzierungszertifikat
In nur zwei Minuten zu Ihrem persönlichen Finanzierungszertifkat.
Infos
| Haustyp | Einfamilienhaus |
|---|---|
| Etagenzahl | 2 |
| Wohnfläche ca. | 143 m2 |
| Grundstücksfläche | 700 m2 |
| Bezugsfrei ab | SOFORT |
| Zimmer | 5 |
| Schlafzimmer | 4 |
| Badezimmer | 2 |
| Anzahl Garage/Stellplatz | 0 |
Kosten
| Kaufpreis |
874.000 € |
|---|---|
| Provision | Nein |
Finanzierungsrechner:
Kaufpreis:
600.000 €
Eigenkapital:
600.000 €
Monatliche Rate
0 €
Effektiver Jahreszins
0 %
Sollzinsbindung
10 Jahre
Bausubstanz & Energieausweis
| Baujahr | 2026 |
|---|
Beschreibung des Objekts
Ausstattung
Ausstattung :
Folgende Leistungen sind MEHR WERT - schon im
Grundpreis enthalten!
- Inkl. individuelle Grundrissgestaltung
- Inkl. gedämmte Fundamentplatte
- Inkl. Frischluft-Wärmepumpen- Technologie
mit integrierter Lüftungsanlage mit
Wärmerückgewinnung
- Inkl. Elektroinstallation
- Inkl. Transport- und Montageversicherung
- Inkl. Baustellen WC und Bauschuttentsorgung
- Inkl. Baubetreuung u.v.m.
Der Angebotspreis ist inklusive Grundstück und bezieht
sich beim Haus auf die Standard-Ausbaustufe „Fast
fertig plus“ (FFplus). Ihre Eigenleistungen: Spachtel-
Tapezier- und Malerabreiten, Bodenbeläge, Innentüren.
Bilder können evtl. Anbauteile wie z.B. Carports,
Balkone, Gauben enthalten, die nicht im Angebotspreis
enthalten sind. Gerne machen wir Ihnen ein Angebot.
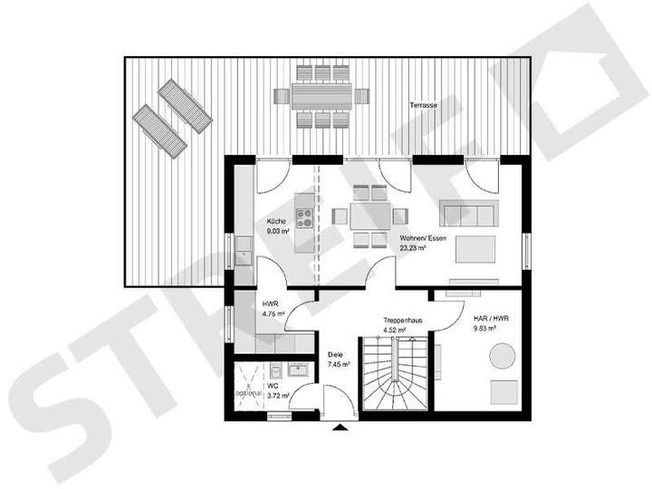
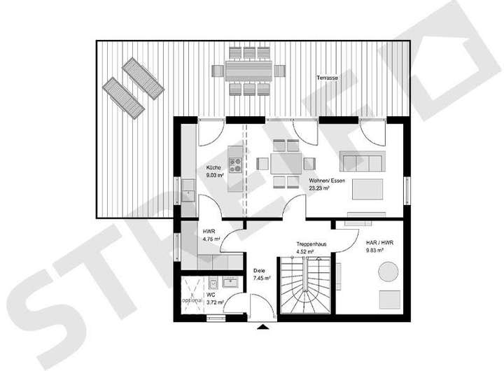
Die Grundrisse sind als Beispiel zu sehen und können nach
Ihren Wünschen und Vorstellungen verändert werden
sowohl in dem Zuschnitt als auch in der Größe und in der Hausform.
Lage
Alsbach liegt an der nördlichen Bergstraße, am Rand des Odenwaldes.
Alsbach grenzt im Uhrzeigersinn an Bickenbach, Jugenheim, Balkhausen (alle Landkreis Darmstadt-Dieburg), Auerbach, Rodau (beide Landkreis Bergstraße) und Hähnlein bzw. Sandwiese
Sonstige Angaben
Streif Hauspreis 345.000 €
Grundst.preis 529.000 €
Angebotspreis 874.000 €
Auf dem Grundstück befindet sich ein Haus was vom Käufer Abgerissen und entsorgt werden muss. Die Kosten sind mit ca. 60.000 € geschätzt worden. Unter dem Gebäude befindet sich ein Keller der erhalten bleiben kann.
Das Grundstück wird von einem Maklerkollegen von uns zur Verfügung gestellt, für das Grundstück ist an diesen Makler eine Courtage in Höhe von 3,57 % incl. 19 % MwSt. zu zahlen.
Zuzgl. der Baunebenkosten sowie die Notar und Grundbuchkosten und die Grunderwerbssteuer !
Weitere Dokumente
GR EGGR OG
Grundriss
GR EG
>
>
GR OG
>
>
Adresse
64665 Alsbach-Hähnlein
Interessante Orte
Preis- und Lageinformationen
Preistrend für Bestandsimmobilien in Alsbach-Hähnlein