- Einfamilienhaus zum Kauf in Vogtsburg im Kaiserstuhl / Oberrotweil mit zwei Gästezimmern
- Baujahr 1962, gepflegter Zustand
- Großzügige Grundstücksgröße von ca. 550 m²
- Wohnfläche von ca. 178 m² verteilt auf 4 Zimmer und zwei Gästezimmer
- Nutzfläche von ca. 211 m ²
- Ruhige Lage in einer idyllischen Seitenstraße
- Gemütlicher Balkon für entspannte Momente im Freien
- Einladender, gepflasterter Innenhof
- Garagen und weitere Nutzfläche
- Glasfaseranschluss
Sprechen Sie uns an für weitere Informationen!
IMMORath.de - Einfamilienhaus mit großzügiger Nutzfläche und Gästezimmern
79235 Vogtsburg im Kaiserstuhl
Die vollständige Adresse der Immobilie erhalten Sie vom Anbieter.
Auf Karte anzeigen
Die vollständige Adresse der Immobilie erhalten Sie vom Anbieter.
Finanzierungszertifikat
In nur zwei Minuten zu Ihrem persönlichen Finanzierungszertifkat.
Infos
| Haustyp | Einfamilienhaus |
|---|---|
| Etagenzahl | 2 |
| Wohnfläche ca. | 178 m2 |
| Nutzfläche | 211 m2 |
| Grundstücksfläche | 550 m2 |
| Bezugsfrei ab | Frei nach Absprache |
| Zimmer | 5 |
| Garage/Stellplatz | Garage |
| Anzahl Garage/Stellplatz | 3 |
Kosten
| Kaufpreis |
299.000 € |
|---|---|
| Provision |
3,57% |
Finanzierungsrechner:
Kaufpreis:
600.000 €
Eigenkapital:
600.000 €
Monatliche Rate
0 €
Effektiver Jahreszins
0 %
Sollzinsbindung
10 Jahre
Bausubstanz & Energieausweis
| Baujahr | 1962 |
|---|---|
| Objektzustand | Gepflegt |
| Qualität der Austattung | Einfach |
| Heizungsart | Zentralheizung |
| Wesentliche Energieträger | Öl |
| Energieausweis | liegt vor |
| Energieausweistyp | Verbrauchsausweis |
| Energieverbrauchskennwert | 156,0 kWh/(m²*a) |
| Energieeffizienzklasse | E |
156,0
kWh/(m²*a)
Energieeffizienzklasse E
- A+
- A
- B
- C
- D
- E
- F
- G
- H
- 0
- 25
- 50
- 75
- 100
- 125
- 150
- 175
- 200
- 225
- >250
Beschreibung des Objekts
Lage
Das charmante Einfamilienhaus befindet sich in Vogtsburg im Kaiserstuhl, im Ortsteil Oberrotweil, eingebettet in die wunderschönen Weinberge des Kaiserstuhls. Diese idyllische Lage bietet nicht nur traumhafte Naturlandschaften und ein angenehmes Klima, sondern auch eine hervorragend ausgebaute Infrastruktur.
In nur etwa einem Kilometer Entfernung finden Sie sowohl einen Kindergarten, eine Kita als auch eine Grundschule, ideal für Familien mit jungen Kindern. Weiterführende Schulen befinden sich in Breisach.
In Oberrotweil finden sie alles für den täglichen Bedarf - Apotheke, Hausarzt, Zahnarzt und einen Edeka.
Genießen Sie die Ruhe und Erholung, die Ihnen diese einzigartige Lage bietet, während Sie dennoch von einer exzellenten Anbindung an die städtische Infrastruktur profitieren. Tauchen Sie ein in die Natur und erleben Sie die einzigartige Lebensqualität am Kaiserstuhl.
Sonstige Angaben
Sie haben Interesse und möchten zeitnah die Immobilie besichtigen? Kein Problem! Schicken Sie uns gerne Ihre Anfrage, Sie werden von der Immobilie begeistert sein!
Alle vom Eigentümer bereitgestellten Informationen werden als zuverlässig erachtet, aber nicht garantiert und sollten unabhängig verifiziert werden. Wir übernehmen keinerlei Gewähr für die Richtigkeit der Angaben.
Der Courtageanteil des Käufers beträgt 3,57% des tatsächlichen Kaufpreises inklusive der gesetzlichen Mehrwertsteuer.
Der Courtageanteil ist im Kaufpreis nicht enthalten und ist vom Käufer an uns zu zahlen. Er ist fällig und zahlbar bei Notariat.
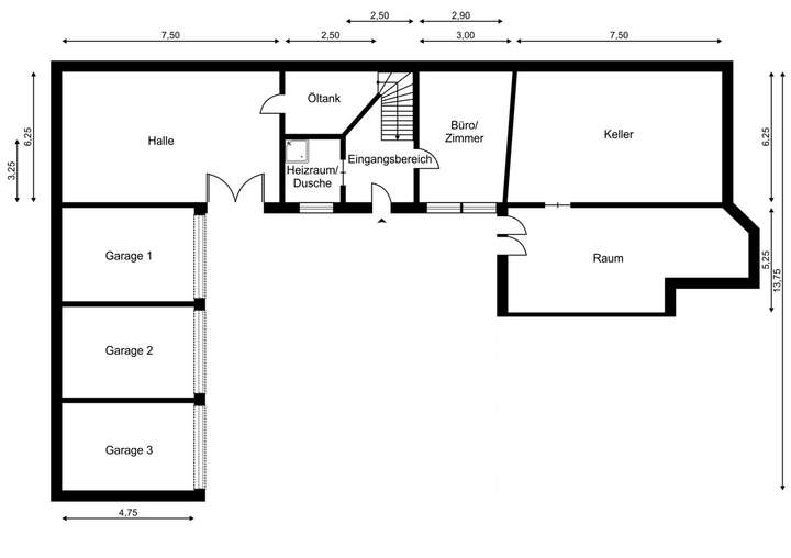
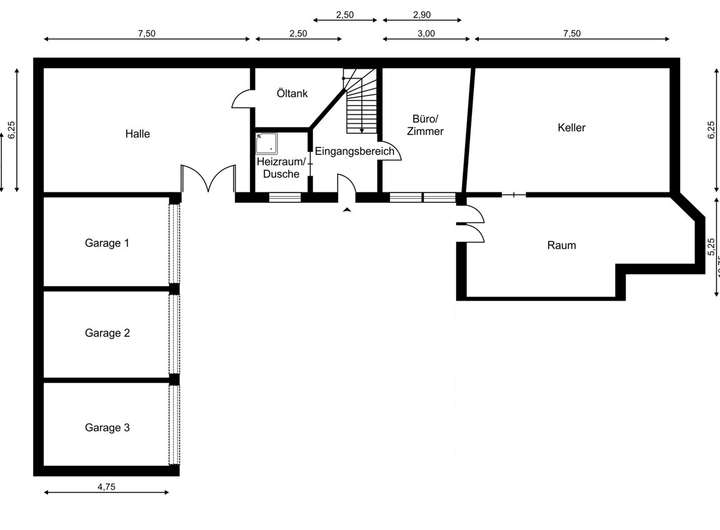
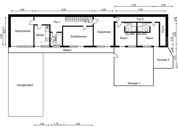
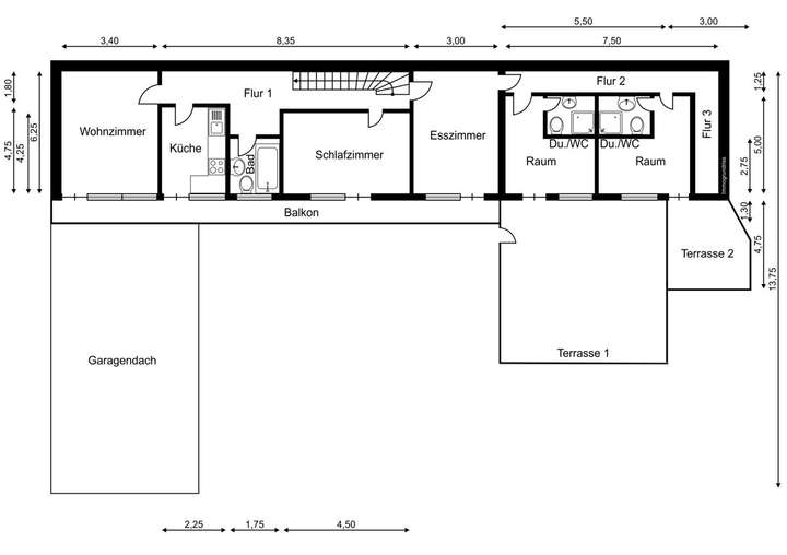
Grundriss
Erdgeschoss
>
>
Obergeschoss
>
>
Adresse
79235 Vogtsburg im Kaiserstuhl
Interessante Orte
Preis- und Lageinformationen
Preistrend für Bestandsimmobilien in Vogtsburg im Kaiserstuhl